Тип имот
Двустаен апартамент
Местоположение
кв. Кръстова вада / София / България
Етажност
6
Етаж
2
Асансьор
да
Спални
1
Бани
1
да
Обща площ
65.94 м²
Общи части
10.17 м²
Застроена площ
55.77 м²
Цена Цена при запитване
Цена при запитване
Запитване за повече информация или оглед
Консултант / Офис Вишнева, София
Разстояния от имота до други важни обекти
- Център на града: 3.9 км
- Летище : 11.9 км
Гледки от имота
- Гледка към града
Отопление
- Парно на газ
Етап - Акт 14. Завършване – 2027 г.
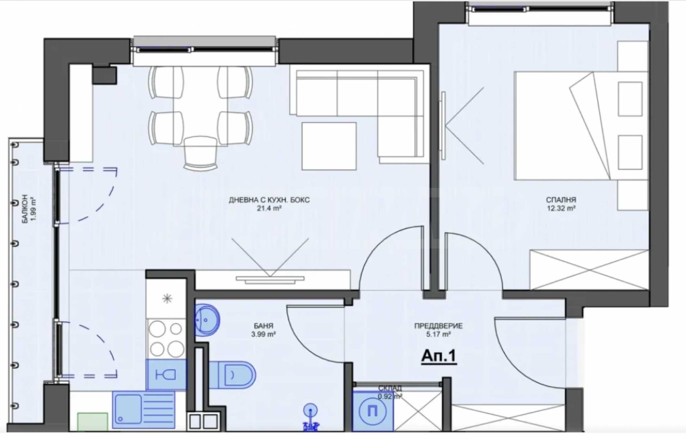
Имотът с обща площ от 65.94 кв.м се намира на 2-ри етаж и има южно изложение. Състои се от антре, склад, баня/тоалетна, дневна с кухня и с тераса, една спалня. Издава се в степен на завършеност по БДС (на шпакловка и замазка), с висок клас PVC дограма с троен стъклопакет.
На ключово място, на пешеходно разстояние:
• Мол Парадайс – 150 метра (1 минута);
• Метростанция "Витоша" – 400 метра (6 минути);
• BILLA – 300 метра (4 минути);
• Фитнес и басейн – 50 метра;
• Болница "Вита" – 750 метра (10 минути).
В продажба е лимитиран брой луксозни апартаменти - двустайни, тристайни жилища и супер просторен мезонет с три спални. Предлагаме и офис пространства на първото ниво в сградата, с опция за закупуването на гараж към тях, както и с прилежащи обширни дворни площи.
Има възможност за закупуването на паркоместа и гаражи.
Сградата е проектирана с внимание към детайла и включва висок клас материали и технологии:
• Окачена фасада от широкоформатен гранитогрес и 12 см топлоизолация;
• Висококачествена ПВЦ дограма с троен стъклопакет;
• Зидария с керамични тухли за по-добра топло- и звукоизолация;
• Испански асансьор ORONA с подемник, Uniken;
• Настилки в общите части от естествен камък и гранитни стъпала;
• Отопление на газ с радиатори (с възможност за подово отопление при желание на клиента);
• Климатизация на всички апартаменти.
Предимства:
• Сградата се състои само от 10 бр. апартаменти, с функционално разпределение и просторни, светли стаи;
• Търсена и ключова локация до най-популярния търговски център и метростанция;
• Част от портфолиото на утвърден строител и инвеститор с дългогодишен опит;
• Висококачествени материали и елегантна архитектурна визия.
Схеми на плащане
Вариант 1:
• 30% при подписване на Предварителен договор (възможност за отстъпки по договаряне);
• 20% при Акт 14;
• 40% до 30 дни след Акт 15;
• 10% при Акт 16 или нотариално прехвърляне.
Вариант 2:
• 90% при подписване на Предварителен договор (възможност за отстъпки по договаряне);
• 10% при Акт 16 или нотариално прехвърляне.
Очакваме Вашето запитване
Ако желаете да организирате оглед на имот, който Ви интересува, или да посетите някой от нашите офиси, моля свържете се с нас. За да уговорите ден и час за среща или оглед, можете да се обадите на посочения в обявата телефон или да изпратите запитване чрез електронната поща. Нашият консултант ще Ви съдейства с всички необходими подробности и ще уговори удобно за Вас време.
Търсите подходящия за Вас имот?
Не се колебайте да се свържете с нас и да ни разкажете за Вашите нужди и предпочитания. Нашият екип ще проведе задълбочено проучване на пазара, за да Ви предложи имоти, които точно отговарят на Вашите критерии. Разполагаме с изключително портфолио от висококачествени и ексклузивни жилища, които са достъпни само за нашите клиенти. За да сте първите, които ще получите информация за тях – свържете се с нас.
Допълнителни услуги
Като ценен клиент на нашата компания, Вие ще имате привилегията да ползвате напълно безплатно услугите на нашия опитен юридически екип. В допълнение, предлагаме комплексни решения, включващи имуществена застраховка, безплатна финансова консултация, както и изгодни условия за финансиране. Нашите услуги се разпростират и в сферата на препродажбата, отдаването под наем и управлението на имоти. Осигуряваме висококачествени ремонтни дейности и обзавеждане чрез специализирани фирми, които са част от нашата корпоративна група и са наши дългогодишни професионални партньори.
На картата с червен маркер е указано приблизителното местоположение на имота/комплекса.
Покупка с ипотечен кредит от SUPER CREDIT
За покупка на този имот с ипотечен кредит ние препоръчваме услугите на нашия специализиран кредитен център SUPER CREDIT! “Супер Кредит” ООД с ЕИК205405378 е лицензиран кредитен консултант, регистриран с №BCI000038 от 12.02.2019 г., по реда на чл. 51 от Закона за кредитите за недвижими имоти на потребители (ЗКНИП).
SUPER CREDIT е част от нашата корпоративната група STOYANOV ENTERPRISES, в която участват редица водещи български компании, работещи в областта на продажбите, наемите и управлението на недвижими имоти, строителното предприемачество, мебелната индустрия и туризма.
В качеството си на лицензиран кредитен посредник, SUPER CREDIT поддържа официални договорни отношения с почти всички водещи банки и небанкови кредитни институции в България. Избирайки SUPER CREDIT за свой доверен консултант по ипотечно или друг вид финансиране, всеки наш клиент получава компетентна кредитна консултация, както и няколко оферти от различни банки, с цел да може да направи информиран избор, при най-изгодните за него условия. Клиентите на SUPER CREDIT могат да разчитат на професионално съдействие, както за получаване на богат избор от оферти, предложени от различни финансиращи институции, така и на безпристрастно анализиране на предложените на клиентите оферти, с цел отсяване на офертите с най-добри добри условия за клиента. При анализа на офертите за кредит се вземат под внимание следните показатели: лихви, процент на самоучастие, общи разходи по кредита, застраховки, срок на погасяване, ясни и прозрачни условия на финансиране с цел максимална защита на интереса на клиента, както към момента на получаване на кредита, така и през целия срок до неговото пълно изплащане.
SUPER CREDIT може да осигури на клиентите на SUPER ИМОТИ, също и професионални консултации, както и пълно съдействие за получаване и на други видове кредити като потребителски, инвестиционни, лизингови и др.
SUPER CREDIT може да Ви съдейства и относно рефинансиране на Ваши съществуващи кредити и преместване на кредитната Ви експозиция в друга банка, при по-добри условия.
Всички услуги на SUPER CREDIT за клиентите-кредитополучатели са АБСОЛЮТНО БЕЗПЛАТНИ!
За повече информация относно ипотечното финансиране, моля свържете се с отговорния консултант по тази оферта или разгледайте сайта на SUPER CREDIT.

