Тип имот
Четиристаен апартамент
(Многостаен апартамент)
Местоположение
кв. Възраждане 2 / Варна / България
Клас на сградата/комплекса
Стандартен
Етажност
13
Етаж
3
Асансьор
да
Спални
3
Бани
1
Обща площ
142.22 м²
Общи части
26.02 м²
Застроена площ
116.20 м²
Цена 226 000 €
442 018 лв.
1 589 €/м²
3 108 лв./м²
Без комисиона от купувача
Запитване за повече информация или оглед
Консултант / Офис Варна
Разстояния от имота до други важни обекти
- Център на града: 4.4 км
- Летище : 6.7 км
Гледки от имота
- Гледка към града
Строителство
- Стоманобетонна конструкция
- Тухла
Отопление
- Климатици
В процес на строителство, Акт 16 се очаква в края на 2028 г.
Комплексът предлага двустайни, тристайни, четиристайни жилища, както и паркоместа на открит паркинг.
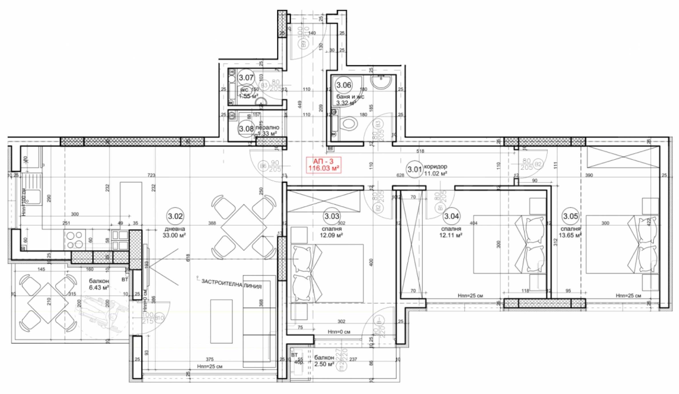
Жилището с обща площ от 142,22 кв.м е разположено на 3-ти етаж от 13.
Разпределение:
• входно антре;
• дневна с кухненски кът и трапезария;
• три спални;
• баня с тоалетна;
• тоалетна;
• перално помещение;
• две тераси.
Имотите се предават в степен на завършеност по БДС, на шпакловка и замазка.
Схеми на плащане - Вариант 1:
• 30% при подписване на предварителен договор;
• 30% кота 0;
• 20% при готова покривна плоча на втори етаж;
• 10% при подписан Акт 14;
• 10% при подписан Акт 15.
Схеми на плащане - Вариант 2:
• 40% при подписване на предварителен договор;
• 50% с/без кредит след подписан Акт 14;
• 10% при подписан Акт 15.
Схеми на плащане - Вариант 3:
• 30% при подписване на предварителен договор;
• 60% с/без кредит след подписан Акт 14;
• 10% при подписан Акт 15.
Схеми на плащане - Вариант 4:
• 20% при подписване на предварителен договор;
• 70% с/без кредит след подписан Акт 14;
• 10% при подписан Акт 15.
Очакваме Вашето запитване
Ако желаете да организирате оглед на имот, който Ви интересува, или да посетите някой от нашите офиси, моля свържете се с нас. За да уговорите ден и час за среща или оглед, можете да се обадите на посочения в обявата телефон или да изпратите запитване чрез електронната поща. Нашият консултант ще Ви съдейства с всички необходими подробности и ще уговори удобно за Вас време.
Търсите подходящия за Вас имот?
Не се колебайте да се свържете с нас и да ни разкажете за Вашите нужди и предпочитания. Нашият екип ще проведе задълбочено проучване на пазара, за да Ви предложи имоти, които точно отговарят на Вашите критерии. Разполагаме с изключително портфолио от висококачествени и ексклузивни жилища, които са достъпни само за нашите клиенти. За да сте първите, които ще получите информация за тях – свържете се с нас.
Допълнителни услуги
Като ценен клиент на нашата компания, Вие ще имате привилегията да ползвате напълно безплатно услугите на нашия опитен юридически екип. В допълнение, предлагаме комплексни решения, включващи имуществена застраховка, безплатна финансова консултация, както и изгодни условия за финансиране. Нашите услуги се разпростират и в сферата на препродажбата, отдаването под наем и управлението на имоти. Осигуряваме висококачествени ремонтни дейности и обзавеждане чрез специализирани фирми, които са част от нашата корпоративна група и са наши дългогодишни професионални партньори.
На картата с червен маркер е указано приблизителното местоположение на имота/комплекса.
Покупка с ипотечен кредит от SUPER CREDIT
За покупка на този имот с ипотечен кредит ние препоръчваме услугите на нашия специализиран кредитен център SUPER CREDIT! “Супер Кредит” ООД с ЕИК205405378 е лицензиран кредитен консултант, регистриран с №BCI000038 от 12.02.2019 г., по реда на чл. 51 от Закона за кредитите за недвижими имоти на потребители (ЗКНИП).
SUPER CREDIT е част от нашата корпоративната група STOYANOV ENTERPRISES, в която участват редица водещи български компании, работещи в областта на продажбите, наемите и управлението на недвижими имоти, строителното предприемачество, мебелната индустрия и туризма.
В качеството си на лицензиран кредитен посредник, SUPER CREDIT поддържа официални договорни отношения с почти всички водещи банки и небанкови кредитни институции в България. Избирайки SUPER CREDIT за свой доверен консултант по ипотечно или друг вид финансиране, всеки наш клиент получава компетентна кредитна консултация, както и няколко оферти от различни банки, с цел да може да направи информиран избор, при най-изгодните за него условия. Клиентите на SUPER CREDIT могат да разчитат на професионално съдействие, както за получаване на богат избор от оферти, предложени от различни финансиращи институции, така и на безпристрастно анализиране на предложените на клиентите оферти, с цел отсяване на офертите с най-добри добри условия за клиента. При анализа на офертите за кредит се вземат под внимание следните показатели: лихви, процент на самоучастие, общи разходи по кредита, застраховки, срок на погасяване, ясни и прозрачни условия на финансиране с цел максимална защита на интереса на клиента, както към момента на получаване на кредита, така и през целия срок до неговото пълно изплащане.
SUPER CREDIT може да осигури на клиентите на SUPER ИМОТИ, също и професионални консултации, както и пълно съдействие за получаване и на други видове кредити като потребителски, инвестиционни, лизингови и др.
SUPER CREDIT може да Ви съдейства и относно рефинансиране на Ваши съществуващи кредити и преместване на кредитната Ви експозиция в друга банка, при по-добри условия.
Всички услуги на SUPER CREDIT за клиентите-кредитополучатели са АБСОЛЮТНО БЕЗПЛАТНИ!
За повече информация относно ипотечното финансиране, моля свържете се с отговорния консултант по тази оферта или разгледайте сайта на SUPER CREDIT.

