Тип имот
Къща
(Вилa)
Местоположение
кв. Сарафово / Бургас / България
Клас на сградата/комплекса
Висок стандартен
Етажност
2
Спални
2
Бани
1
Паркоместа
1
Площ на сградата
111.85 м²
Площ на парцела
Без земя
Запитване за повече информация или оглед
Консултант / Офис Бургас
Разстояния от имота до други важни обекти
- Морето: 900 м
- Летище : 4 км
Строителство
- Тухла
Отопление
- Термопомпа
Представяме за продажба двуетажна къща с две спални в елитен комплекс, подходящ за целогодишно живеене, в тиха и спокойна среда, между Бургас и Поморие.
С включено паркомясто в цената.
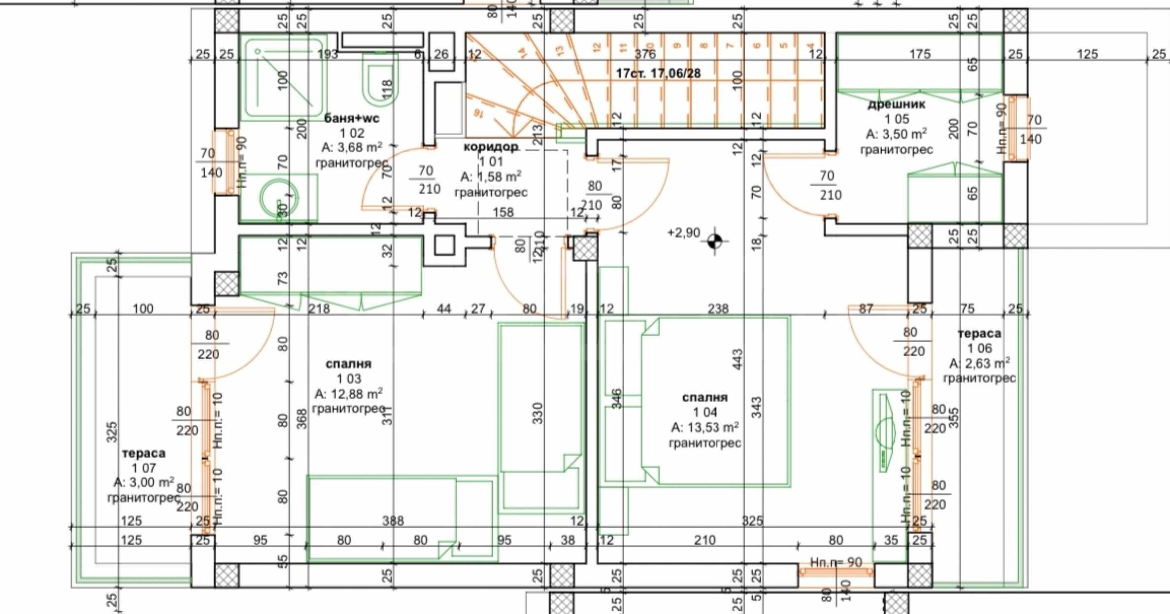
Къщата е с РЗП - 111,85 кв.м и се състои от:
• първи етаж - 55,18 кв.м - коридор, дневна с кухня, тоалетна, склад под стълбището;
• втори етаж - 56,67 кв.м - коридор, две спални, едната спалня с дрешник, баня с тоалет и две тераси.
Вилата се издава в степен на завършеност "до ключ":
• форма на покрива: скатен, с наклон от ~30 градуса с керемиди Kebe;
• носеща конструкция: стоманобетонна, монолитна скелето-гредова, с вертикални носещи елементи, стоманобетонни шайби и колони;
• покривна конструкция: дървена конструкция и керемиди или хидроизолация MAPEI за плоски покриви;
• външни стени: зидария с тухли - 25 см Wienerberger, с топлоизолация EPS 100 мм, мрежа, шпакловка, грунт и мазилка Weber;
• подово покритие: циментова замазка - 5 см, настилка от гранитогресни плочи на лепило;
• ламиниран паркет - 8 мм, 32-ри клас, върху PVC подложка от 3 мм, стълби - естествен камък от варовик;
• вътрешни стени: вътрешни преградни стени са от плътни единични тухли на 12 см Phoroterm, шпакловки с готова смес по стени и тавани, грундиране на тавани; боядисване с латекс на Caparol - стени и тавани - минимум 2 пъти;
• вътрешни врати: интериорни MDF-врати;
• външни врати: блиндирани, със секретно заключване;
• фасада: комбинация от измазана външна топлоизолация в два или три топли цвята;
• прозорци: 5-камерни PVC профили с троен стъклопакет, немски обков и система ENERGY; подпрозоречни первази - от естествен камък;
• домофонна система: 1 вътрешен видеодомофон, 1 външен домофон пред входа на комплекса;
• електрически системи: фасадно осветление – изпълнено по проект; осветление на стълбища и общи части; изградени електросилова, телефонна, интернет, видео-домофонна и кабелна инсталации; монтирани локални електромери, видеодомофони, ключове и контакти;
• отопление и климатизация - изграден първи етап от подово отопление с термопомпа;
• вентилационни вертикали за вентилация на кухня и санитарни възли;
• заобикаляща среда: озеленена.
Строителството е в съответствие с европейските стандарти за контрол на качеството.
Комплексът е разположен сред лозовите масиви, в екологично чист район, и от къщите ще се открива обширна морска панорама. Мястото е спокойно и удобно за живеене, на 10 мин с кола от центъра на Бургас, до Поморие е само 5 км, а на 20 км са Слънчев бряг и град Несебър. Локацията се характеризира с богата история и винарството, а климатът в района е доказано здравословен. На брега на морето, в района на комплекса е открит древен римски град.
Достъпът до комплекса е ограничен, сигурността е гарантирана чрез внедрените системи за контрола.
Удобства и услуги:
• 24 ч. рецепция;
• 24 ч. охрана;
• 24 ч. румсървис;
• открит басейн с детска част;
• ресторант, кафене;
• детска площадка;
• тенис на корт, баскетболно/волейболно игрище;
• отлична поддръжка и удобства за постоянен престой;
• зелени площи и пълна инфраструктура.
Имотът е подходящ както за лично ползване, така и за инвестиция с потенциал за възвръщаемост чрез отдаване под наем, силно търсене на имоти в комплекса от дългосрочни наематели.
Очакваме Вашето запитване
Ако желаете да организирате оглед на имот, който Ви интересува, или да посетите някой от нашите офиси, моля свържете се с нас. За да уговорите ден и час за среща или оглед, можете да се обадите на посочения в обявата телефон или да изпратите запитване чрез електронната поща. Нашият консултант ще Ви съдейства с всички необходими подробности и ще уговори удобно за Вас време.
Търсите подходящия за Вас имот?
Не се колебайте да се свържете с нас и да ни разкажете за Вашите нужди и предпочитания. Нашият екип ще проведе задълбочено проучване на пазара, за да Ви предложи имоти, които точно отговарят на Вашите критерии. Разполагаме с изключително портфолио от висококачествени и ексклузивни жилища, които са достъпни само за нашите клиенти. За да сте първите, които ще получите информация за тях – свържете се с нас.
Допълнителни услуги
Като ценен клиент на нашата компания, Вие ще имате привилегията да ползвате напълно безплатно услугите на нашия опитен юридически екип. В допълнение, предлагаме комплексни решения, включващи имуществена застраховка, безплатна финансова консултация, както и изгодни условия за финансиране. Нашите услуги се разпростират и в сферата на препродажбата, отдаването под наем и управлението на имоти. Осигуряваме висококачествени ремонтни дейности и обзавеждане чрез специализирани фирми, които са част от нашата корпоративна група и са наши дългогодишни професионални партньори.
На картата с червен маркер е указано приблизителното местоположение на имота/комплекса.
Покупка с ипотечен кредит от SUPER CREDIT
За покупка на този имот с ипотечен кредит ние препоръчваме услугите на нашия специализиран кредитен център SUPER CREDIT! “Супер Кредит” ООД с ЕИК205405378 е лицензиран кредитен консултант, регистриран с №BCI000038 от 12.02.2019 г., по реда на чл. 51 от Закона за кредитите за недвижими имоти на потребители (ЗКНИП).
SUPER CREDIT е част от нашата корпоративната група STOYANOV ENTERPRISES, в която участват редица водещи български компании, работещи в областта на продажбите, наемите и управлението на недвижими имоти, строителното предприемачество, мебелната индустрия и туризма.
В качеството си на лицензиран кредитен посредник, SUPER CREDIT поддържа официални договорни отношения с почти всички водещи банки и небанкови кредитни институции в България. Избирайки SUPER CREDIT за свой доверен консултант по ипотечно или друг вид финансиране, всеки наш клиент получава компетентна кредитна консултация, както и няколко оферти от различни банки, с цел да може да направи информиран избор, при най-изгодните за него условия. Клиентите на SUPER CREDIT могат да разчитат на професионално съдействие, както за получаване на богат избор от оферти, предложени от различни финансиращи институции, така и на безпристрастно анализиране на предложените на клиентите оферти, с цел отсяване на офертите с най-добри добри условия за клиента. При анализа на офертите за кредит се вземат под внимание следните показатели: лихви, процент на самоучастие, общи разходи по кредита, застраховки, срок на погасяване, ясни и прозрачни условия на финансиране с цел максимална защита на интереса на клиента, както към момента на получаване на кредита, така и през целия срок до неговото пълно изплащане.
SUPER CREDIT може да осигури на клиентите на SUPER ИМОТИ, също и професионални консултации, както и пълно съдействие за получаване и на други видове кредити като потребителски, инвестиционни, лизингови и др.
SUPER CREDIT може да Ви съдейства и относно рефинансиране на Ваши съществуващи кредити и преместване на кредитната Ви експозиция в друга банка, при по-добри условия.
Всички услуги на SUPER CREDIT за клиентите-кредитополучатели са АБСОЛЮТНО БЕЗПЛАТНИ!
За повече информация относно ипотечното финансиране, моля свържете се с отговорния консултант по тази оферта или разгледайте сайта на SUPER CREDIT.

