Тип имот
Офис
Местоположение
кв. Изгрев / София / България
Етажност
19
Етаж
2
Асансьор
да
Паркоместа
2
Обща площ
257 м²
Общи части
14.90 м²
Застроена площ
242.10 м²
Получен Акт 16
Цена 1 015 150 € (без ДДС)
1 985 461 лв. (без ДДС)
3 950 €/м² (без ДДС)
7 726 лв./м² (без ДДС)
Без комисиона от купувача
Запитване за повече информация или оглед
Тийм лидер / Офис BARNES Bulgaria (Асоцииран партньор)
Разстояния от имота до други важни обекти
- Планински лифт: 9 км
- Център на града: 4 км
- Летище : 9.5 км
- Магазин за хранителни стоки: 500 м
- Спирка: 700 м
- Болница: 1 км
Гледки от имота
- Гледка към града
- Гледка към планината
Строителство
- Стоманобетонна конструкция
- Тухла
Отопление
- ТЕЦ
Климатизация
- Климатизация
Този офис не е просто място за работа – той е символ на корпоративен престиж, устойчивост и висококачествен бизнес начин на живот. Разположен в една от най-престижните и развивани локации в столицата, сграда „Диамант 1“, която съчетава изтънчена архитектурна визия, функционалност на световно ниво и стандарти, които поставят нова перспектива в бизнес средата на София. Локацията предлага изключителен баланс между динамиката на големия град и спокойствието на природата – с Борисова градина и Ловния парк на крачка разстояние, без да се прави компромис с удобствата и инфраструктурата на централната градска зона.
Характеристики:
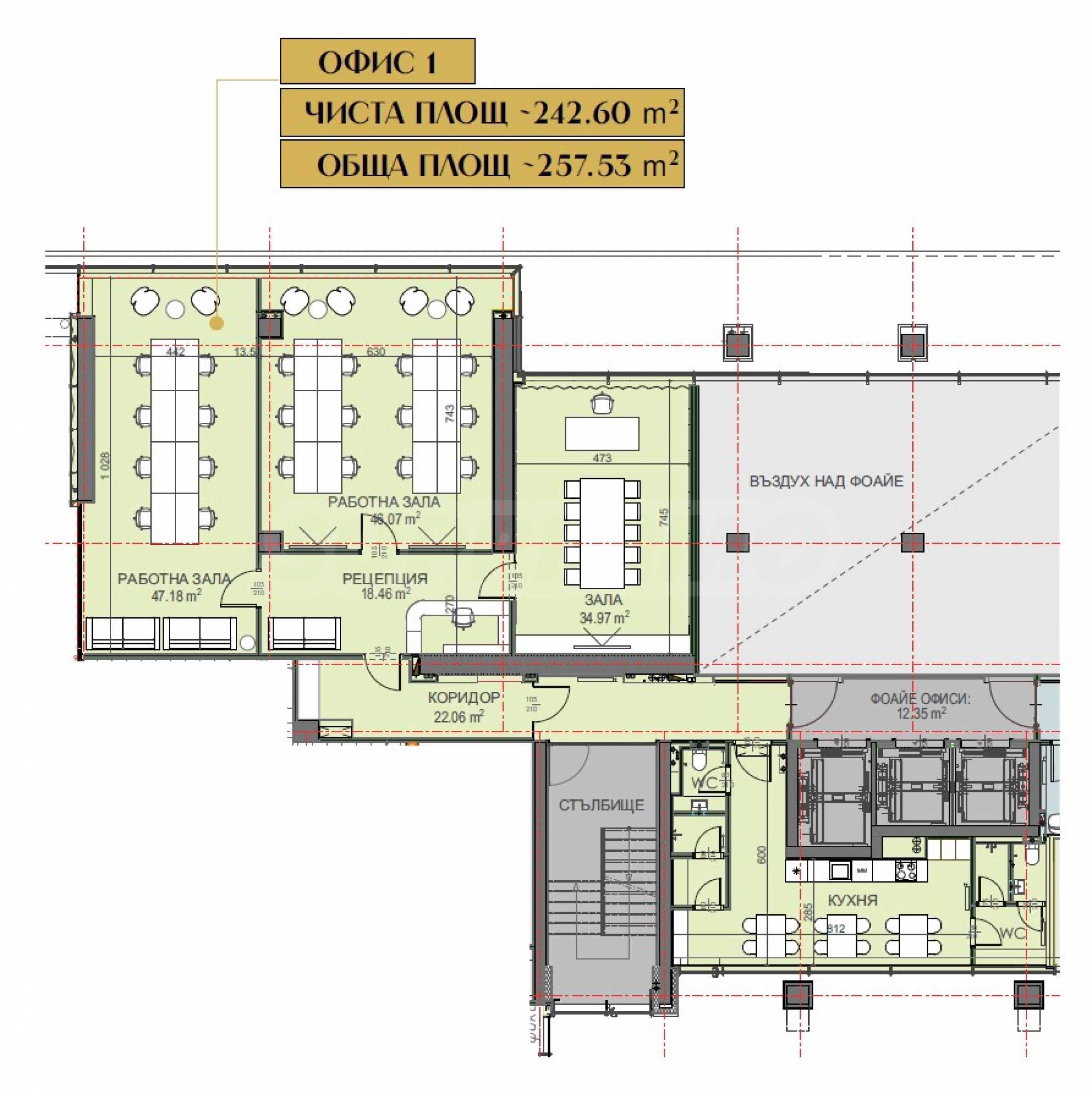
• Чиста площ: 242.6 кв.м
• Площ с общи части: 257.5 кв.м
• 2-ри етаж;
• Офисът има директен достъп от стълбищата и асансьорите на сградата.
Паркоместа:
• Две надземни паркоместа (точно до входа на сградата) - всяко на цена 49 900 евро.
Функционалност:
• Пространството е проектирано така, че да предоставя ясно разпределени и ефективни работни зони, подходящи за:
• Представителна бизнес централа;
• Лидерски екипи, които търсят среда с характер и пространствено качество;
• Естетичен център;
• IT академия;
• Образователен център;
• Адвокатско дружество и други.
Комфорт и технологично предимство:
Офисът е част от премиум среда, където вентилация с рекуперация на въздуха гарантира обмен на свеж въздух и значително повишава качеството на вътрешния климат – ключов елемент за комфорт, здравословна работна атмосфера и енергийна ефективност.
Тази система създава здравословен микроклимат, който подкрепя здравето и продуктивността на екипа, като същевременно редуцира енергийните разходи спрямо традиционните вентилационни решения.
Защо този офис е отлична инвестиция:
Този офис в сграда "Диамант 1" е много повече от имот - той е представителна локация, която комуникира престиж, стабилност и визия.
Инвестицията е обвързана с район, който вече привлича и развива луксозни проекти, носещи пазарно призната стойност.
Пространството може да се адаптира към широк спектър корпоративни нужди — от executive център до хибридна работна среда, фитнес и специализирани зони за срещи и обучение и е подходящ за компании, които искат да издигнат своята корпоративна среда на следващо ниво.
Корпоративното пространство е разделено на 2 офиса, които могат да бъдат закупени поотделно:
• Офис 1 с обща площ 313.50 кв.м
• Офис 2 с обща площ 257 кв. м.
На картата с червен маркер е указано приблизителното местоположение на имота/комплекса.
Покупка с ипотечен кредит от SUPER CREDIT
За покупка на този имот с ипотечен кредит ние препоръчваме услугите на нашия специализиран кредитен център SUPER CREDIT! “Супер Кредит” ООД с ЕИК205405378 е лицензиран кредитен консултант, регистриран с №BCI000038 от 12.02.2019 г., по реда на чл. 51 от Закона за кредитите за недвижими имоти на потребители (ЗКНИП).
SUPER CREDIT е част от нашата корпоративната група STOYANOV ENTERPRISES, в която участват редица водещи български компании, работещи в областта на продажбите, наемите и управлението на недвижими имоти, строителното предприемачество, мебелната индустрия и туризма.
В качеството си на лицензиран кредитен посредник, SUPER CREDIT поддържа официални договорни отношения с почти всички водещи банки и небанкови кредитни институции в България. Избирайки SUPER CREDIT за свой доверен консултант по ипотечно или друг вид финансиране, всеки наш клиент получава компетентна кредитна консултация, както и няколко оферти от различни банки, с цел да може да направи информиран избор, при най-изгодните за него условия. Клиентите на SUPER CREDIT могат да разчитат на професионално съдействие, както за получаване на богат избор от оферти, предложени от различни финансиращи институции, така и на безпристрастно анализиране на предложените на клиентите оферти, с цел отсяване на офертите с най-добри добри условия за клиента. При анализа на офертите за кредит се вземат под внимание следните показатели: лихви, процент на самоучастие, общи разходи по кредита, застраховки, срок на погасяване, ясни и прозрачни условия на финансиране с цел максимална защита на интереса на клиента, както към момента на получаване на кредита, така и през целия срок до неговото пълно изплащане.
SUPER CREDIT може да осигури на клиентите на SUPER ИМОТИ, също и професионални консултации, както и пълно съдействие за получаване и на други видове кредити като потребителски, инвестиционни, лизингови и др.
SUPER CREDIT може да Ви съдейства и относно рефинансиране на Ваши съществуващи кредити и преместване на кредитната Ви експозиция в друга банка, при по-добри условия.
Всички услуги на SUPER CREDIT за клиентите-кредитополучатели са АБСОЛЮТНО БЕЗПЛАТНИ!
За повече информация относно ипотечното финансиране, моля свържете се с отговорния консултант по тази оферта или разгледайте сайта на SUPER CREDIT.

