Тип имот
Двустаен апартамент
Местоположение
кв. Обеля / София / България
Клас на сградата/комплекса
Стандартен
Етажност
8
Етаж
5
Асансьор
да
Спални
1
Бани
1
Обща площ
74.41 м²
Общи части
10.01 м²
Застроена площ
64.40 м²
Цена 122 773 €
240 123 лв.
1 650 €/м²
3 227 лв./м²
Запитване за повече информация или оглед
Консултант / Офис Централен SUPRIMMO, София
Разстояния от имота до други важни обекти
- Център на града: 7.5 км
- Летище : 15.3 км
Строителство
- Стоманобетонна конструкция
Отопление
- ТЕЦ
Само на 35 метра от метростанция, локацията осигурява бърз и лесен достъп до центъра на София, както и до главните пътни артерии и спирки на градския транспорт. Районът предлага всички необходими удобства за комфортен живот – търговски обекти, училища, детски градини, спортни комплекси и здравни заведения в непосредствена близост.
ЕКСКЛУЗИВНИ ПРОДАЖБИ. БЕЗ КОМИСИОНА ОТ КУПУВАЧА!
Разрешение за строеж - в средата на лятото 2026 г.
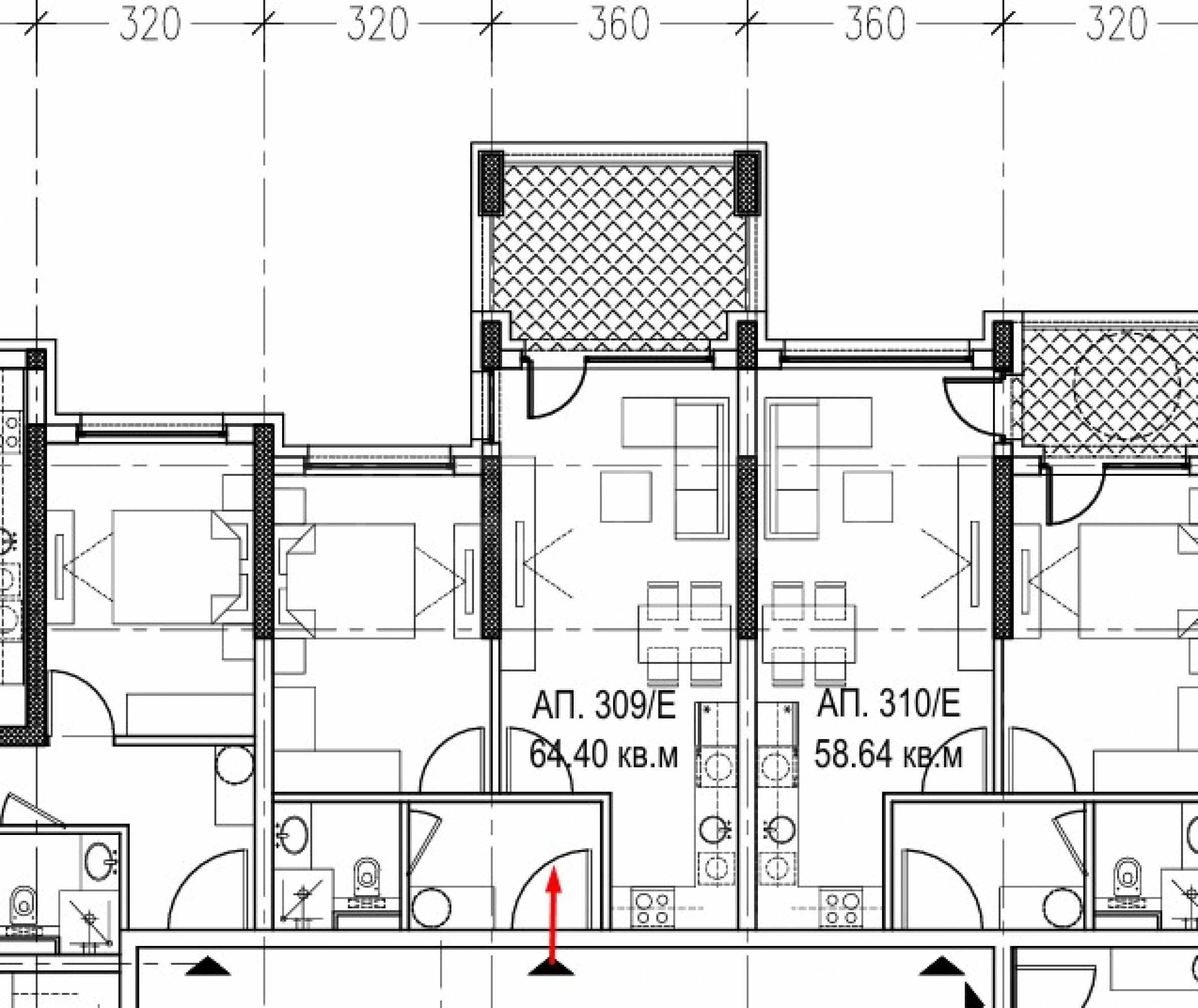
Имотът е разположен на 5-и етаж и е с обща площ 74,41 кв.м, чиста площ - 64,4 кв.м, върху които са разпределени: антре, баня с тоалетна, дневна с кухня и тераса, една спалня. Жилището се издава в степен на завършеност по БДС, с петкамерна PVC дограма Rehau, с троен стъклопакет и блиндирана входна врата.
Има възможност за закупуването на гаражи на цени от 40 000 евро (78 233.20 лв.), както и външни паркоместа на цени от 18 000 евро (35 205 лв.)
Новият комплекс е с финансово предимство – без индексация на цените след подписване на договор, както и с възможност за избор между две схеми на плащане.
Депозит:
Депозит за двустаен апартамент - 5 000 евро (9 779 лв.);
Депозит за тристаен или четиристаен имот - 10 000 евро (19 558.30 лв.).
Схема 1:
• При подписване на договор: 40%;
• При кота 0: 20%;
• 20% на Акт 14;
• 10% на Акт 15;
• 10% на Акт 16.
Схема 2:
• При подписване на договор: 20%;
• При кота 0: 10%;
• 50% - чл.181;
• 10% на Акт 15;
• 10% на Акт 16.
Концепция
Проектът ще се отличава с модерна визия, функционална архитектура и отлично съчетание между градски комфорт и локация. Разработен е с мисъл за различните нужди на съвременните домакинства и предлага богато разнообразие от апартаменти - двустайни, тристайни и четиристайни жилища, разположени в общо 7 входа и на 9 етажа, с общ брой 415 имота в комплекса. Апартаментите са проектирани с оптимални разпределения, просторни дневни и светли помещения, а от по-високите етажи ще се откриват красиви панорамни гледки към Витоша.
Жителите на комплекса ще разполагат с богато озеленен вътрешен двор с площ от 1500 кв.м – пространство, създадено за отдих, игри и социални контакти. На територията ще има търговски обекти, хранителни магазини, аптека, салон за красота и други ежедневни удобства.
Инвеститорът е утвърдена компания с над 15 години опит и успешно реализирани проекти в столицата.
Етапи и срокове на изпълнението:
• Разрешение за строеж – 30.06.2026 г.
• Кота 0.00 – 30.01.2027 г.
• Акт 14 – 30.03.2028 г.
• Чл. 181 – 30.06.2028 г.
• Акт 15 – 30.09.2029 г.
• Акт 16 – 30.12.2029 г.
Технически характеристики:
• Вид строителство: монолитно, стоманобетонна рамкова конструкция с тухлени ограждащи и разпределителни стени;
• Фасада: топлоизолирана, с минерална мазилка и модерен архитектурен облик;
• Подови настилки: фина изравнителна замазка;
• Стени и тавани: фина гипсова мазилка;
• Общи части: с настилки от естествен камък – мрамор и травертин, парапети и осветителни тела по проект;
• Дограма: немска петкамерна PVC дограма Rehau с троен стъклопакет;
• Входни врати: блиндирани, фурнирован MDF;
• ВиК инсталация: изградена до тапа, с лични водомери и връзка към градската мрежа;
• Електроинсталация: напълно изградена, с ключове, контакти и узаконено електрическо табло;
• Отопление: ТЕЦ;
• Интернет: оптичен кабел до апартаментите;
• Вентилация: отвори и комини, изпълнени по проект;
• Сутерени и гаражи: подове с циментова замазка, стени с гладка мазилка, метални врати на гаражите и рампите.
Очакваме Вашето запитване
Ако желаете да организирате оглед на имот, който Ви интересува, или да посетите някой от нашите офиси, моля свържете се с нас. За да уговорите ден и час за среща или оглед, можете да се обадите на посочения в обявата телефон или да изпратите запитване чрез електронната поща. Нашият консултант ще Ви съдейства с всички необходими подробности и ще уговори удобно за Вас време.
Търсите подходящия за Вас имот?
Не се колебайте да се свържете с нас и да ни разкажете за Вашите нужди и предпочитания. Нашият екип ще проведе задълбочено проучване на пазара, за да Ви предложи имоти, които точно отговарят на Вашите критерии. Разполагаме с изключително портфолио от висококачествени и ексклузивни жилища, които са достъпни само за нашите клиенти. За да сте първите, които ще получите информация за тях – свържете се с нас.
Допълнителни услуги
Като ценен клиент на нашата компания, Вие ще имате привилегията да ползвате напълно безплатно услугите на нашия опитен юридически екип. В допълнение, предлагаме комплексни решения, включващи имуществена застраховка, безплатна финансова консултация, както и изгодни условия за финансиране. Нашите услуги се разпростират и в сферата на препродажбата, отдаването под наем и управлението на имоти. Осигуряваме висококачествени ремонтни дейности и обзавеждане чрез специализирани фирми, които са част от нашата корпоративна група и са наши дългогодишни професионални партньори.
На картата с червен маркер е указано приблизителното местоположение на имота/комплекса.
Видео
Покупка с ипотечен кредит от SUPER CREDIT
За покупка на този имот с ипотечен кредит ние препоръчваме услугите на нашия специализиран кредитен център SUPER CREDIT! “Супер Кредит” ООД с ЕИК205405378 е лицензиран кредитен консултант, регистриран с №BCI000038 от 12.02.2019 г., по реда на чл. 51 от Закона за кредитите за недвижими имоти на потребители (ЗКНИП).
SUPER CREDIT е част от нашата корпоративната група STOYANOV ENTERPRISES, в която участват редица водещи български компании, работещи в областта на продажбите, наемите и управлението на недвижими имоти, строителното предприемачество, мебелната индустрия и туризма.
В качеството си на лицензиран кредитен посредник, SUPER CREDIT поддържа официални договорни отношения с почти всички водещи банки и небанкови кредитни институции в България. Избирайки SUPER CREDIT за свой доверен консултант по ипотечно или друг вид финансиране, всеки наш клиент получава компетентна кредитна консултация, както и няколко оферти от различни банки, с цел да може да направи информиран избор, при най-изгодните за него условия. Клиентите на SUPER CREDIT могат да разчитат на професионално съдействие, както за получаване на богат избор от оферти, предложени от различни финансиращи институции, така и на безпристрастно анализиране на предложените на клиентите оферти, с цел отсяване на офертите с най-добри добри условия за клиента. При анализа на офертите за кредит се вземат под внимание следните показатели: лихви, процент на самоучастие, общи разходи по кредита, застраховки, срок на погасяване, ясни и прозрачни условия на финансиране с цел максимална защита на интереса на клиента, както към момента на получаване на кредита, така и през целия срок до неговото пълно изплащане.
SUPER CREDIT може да осигури на клиентите на SUPER ИМОТИ, също и професионални консултации, както и пълно съдействие за получаване и на други видове кредити като потребителски, инвестиционни, лизингови и др.
SUPER CREDIT може да Ви съдейства и относно рефинансиране на Ваши съществуващи кредити и преместване на кредитната Ви експозиция в друга банка, при по-добри условия.
Всички услуги на SUPER CREDIT за клиентите-кредитополучатели са АБСОЛЮТНО БЕЗПЛАТНИ!
За повече информация относно ипотечното финансиране, моля свържете се с отговорния консултант по тази оферта или разгледайте сайта на SUPER CREDIT.

