Тип имот
Двустаен апартамент
Местоположение
кв. Тракия / Пловдив / България
Етажност
10
Етаж
9
Асансьор
да
Спални
1
Бани
1
Паркоместа на закрито
1
Обща площ
72 м²
Общи части
11.23 м²
Застроена площ
60.77 м²
Цена 130 000 €
254 258 лв.
1 806 €/м²
3 531 лв./м²
Запитване за повече информация или оглед
Консултант / Офис Пловдив
Разстояния от имота до други важни обекти
- Център на града: 5.7 км
- Летище : 15.6 км
Гледки от имота
- Гледка към града
Строителство
- Стоманобетонна конструкция
- Тухла
Разсрочено плащане!
Сградата е пред Акт 14, с поставена дограма, Акт 16 е предвиден през 2027 г. Високо качество на изпълнение от реномиран строител с множество реализирани обекти и отличия.
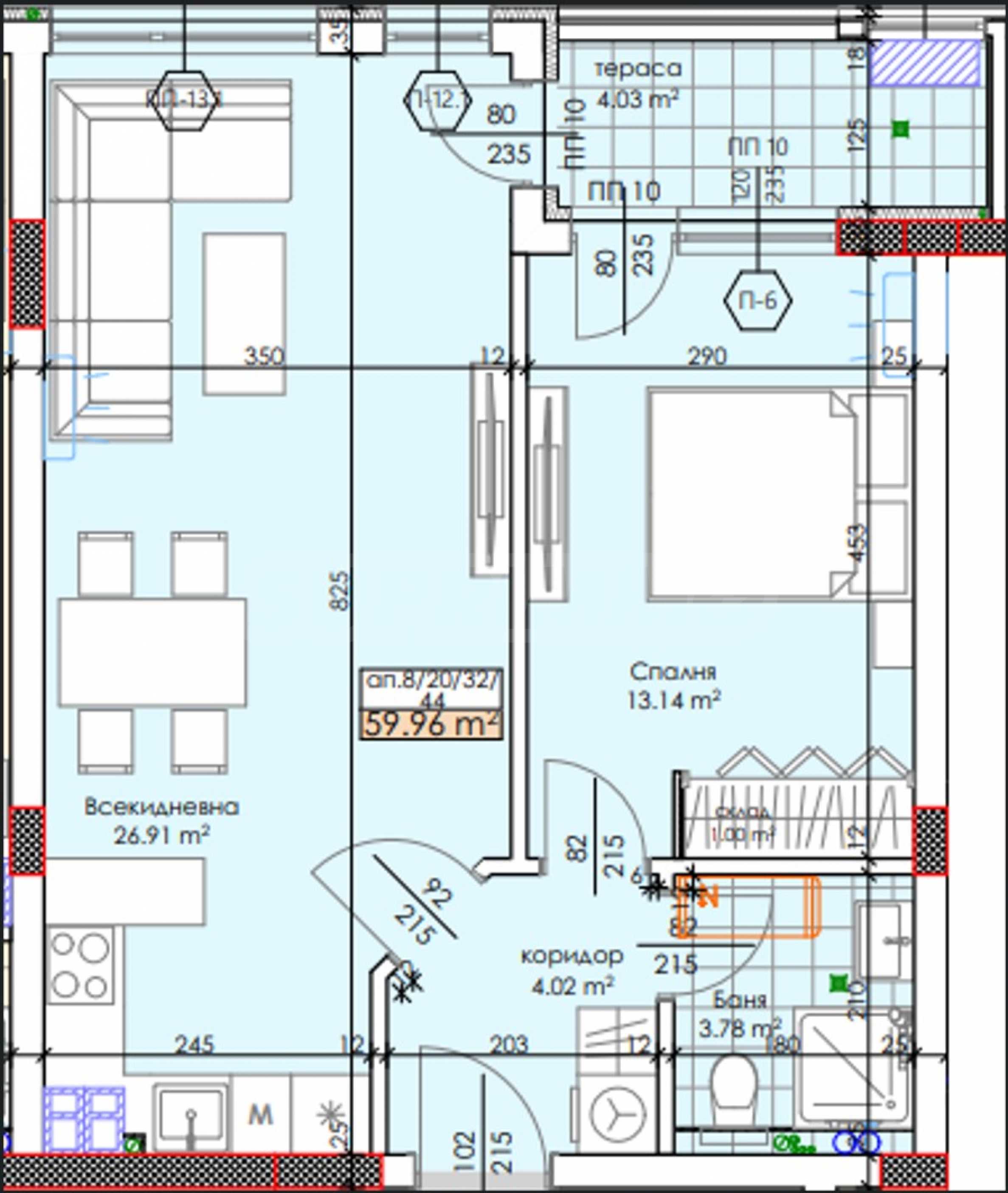
Жилището с обща площ от 72 кв.м е разположено на 9-и етаж от 10, с изложение изток, което осигурява приятна сутрешна светлина.
Практично организирано разпределение:
• входно антре;
• дневна с кухненски бокс – 27 кв.м;
• спалня;
• баня с тоалетна;
• тераса.
Разполага и с мазе с площ от 3 кв.м. Има възможност и за покупка на паркомясто/гараж.
Апартаментът се продава в степен на завършеност по БДС, на шпакловка и замазка. Подходящ е както за лично ползване, така и като инвестиция с висок потенциал за отдаване под наем.
Модерна градска среда с парк усещане
Едно от големите предимства на проекта е концепцията за вътрешно пространство, предназначено за живеене, а не просто за преминаване. Планиран е внушителен озеленен • вътрешен двор (13 700 кв.м) с:
• детски площадки;
• стрийт фитнес;
• зони за отдих и разходка.
Това създава среда, която добавя реална стойност – особено за семейства и хора, търсещи по-спокоен ритъм в града.
Локация
Имотът е разположен в една от най-предпочитаните части на кв. "Тракия", с удобства на пешеходно разстояние:
• детски градини, ясли и училища;
• хипермаркети и търговски центрове;
• лесен достъп с обществен транспорт и автомобил;
• на минути от парк "Лаута".
Свържете се с нас за оглед и детайли по разсрочената схема на плащане. Жилищата с източно изложение и гледка към улицата са сред най-търсените в района – подходящи както за комфортно живеене, така и за инвестиция. При интерес можем да предоставим схема на разпределението, актуален статус на строителството и информация за възможност за паркомясто/гараж.
Покупка с ипотечен кредит от SUPER CREDIT
За покупка на този имот с ипотечен кредит ние препоръчваме услугите на нашия специализиран кредитен център SUPER CREDIT! “Супер Кредит” ООД с ЕИК205405378 е лицензиран кредитен консултант, регистриран с №BCI000038 от 12.02.2019 г., по реда на чл. 51 от Закона за кредитите за недвижими имоти на потребители (ЗКНИП).
SUPER CREDIT е част от нашата корпоративната група STOYANOV ENTERPRISES, в която участват редица водещи български компании, работещи в областта на продажбите, наемите и управлението на недвижими имоти, строителното предприемачество, мебелната индустрия и туризма.
В качеството си на лицензиран кредитен посредник, SUPER CREDIT поддържа официални договорни отношения с почти всички водещи банки и небанкови кредитни институции в България. Избирайки SUPER CREDIT за свой доверен консултант по ипотечно или друг вид финансиране, всеки наш клиент получава компетентна кредитна консултация, както и няколко оферти от различни банки, с цел да може да направи информиран избор, при най-изгодните за него условия. Клиентите на SUPER CREDIT могат да разчитат на професионално съдействие, както за получаване на богат избор от оферти, предложени от различни финансиращи институции, така и на безпристрастно анализиране на предложените на клиентите оферти, с цел отсяване на офертите с най-добри добри условия за клиента. При анализа на офертите за кредит се вземат под внимание следните показатели: лихви, процент на самоучастие, общи разходи по кредита, застраховки, срок на погасяване, ясни и прозрачни условия на финансиране с цел максимална защита на интереса на клиента, както към момента на получаване на кредита, така и през целия срок до неговото пълно изплащане.
SUPER CREDIT може да осигури на клиентите на SUPER ИМОТИ, също и професионални консултации, както и пълно съдействие за получаване и на други видове кредити като потребителски, инвестиционни, лизингови и др.
SUPER CREDIT може да Ви съдейства и относно рефинансиране на Ваши съществуващи кредити и преместване на кредитната Ви експозиция в друга банка, при по-добри условия.
Всички услуги на SUPER CREDIT за клиентите-кредитополучатели са АБСОЛЮТНО БЕЗПЛАТНИ!
За повече информация относно ипотечното финансиране, моля свържете се с отговорния консултант по тази оферта или разгледайте сайта на SUPER CREDIT.

