REF#SOF-137814 / Къща / с. Гурмазово / Софийска област / България / Продажба На картата
Тип имот
Къща
Местоположение
Гурмазово / България
Етажност
3
Асансьор
не
Спални
3
Бани
3
Паркоместа
1
Площ на сградата
328 м²
Площ на парцела
480 м²
Цена 360 000 €
704 099 лв.
Без комисиона от купувача
Запитване за повече информация или оглед
Консултант / Офис BARNES Bulgaria (Асоцииран партньор)
Разстояния от имота до други важни обекти
Строителство
- Тухла
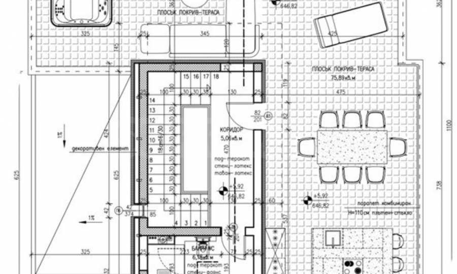
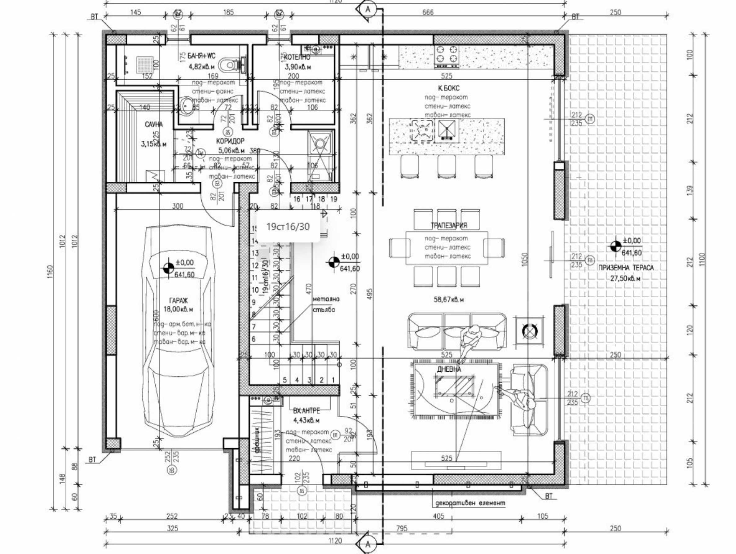
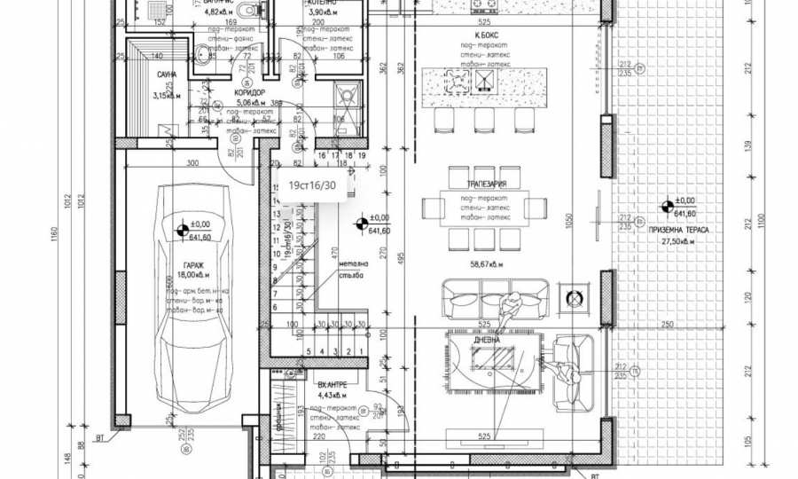
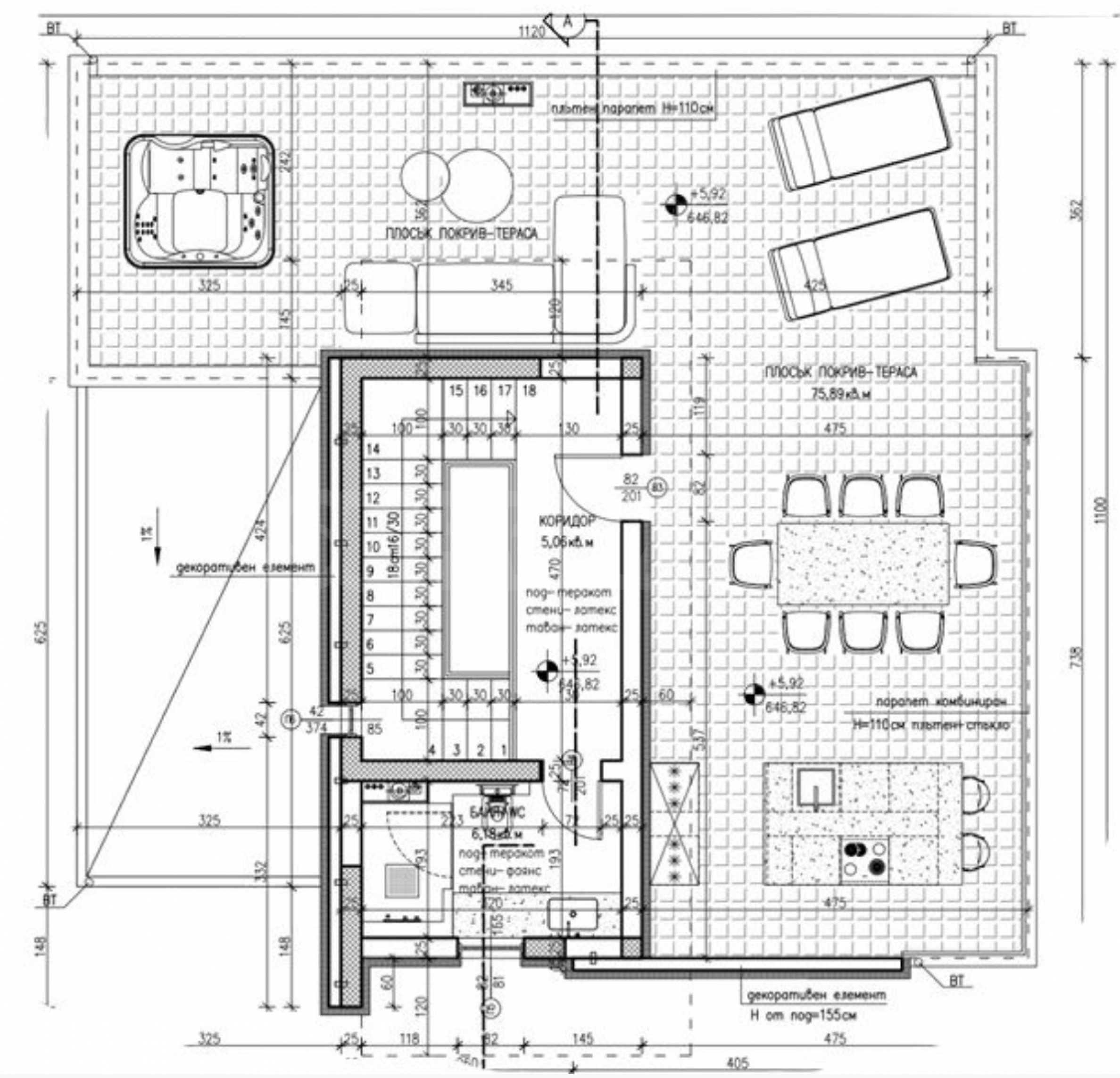
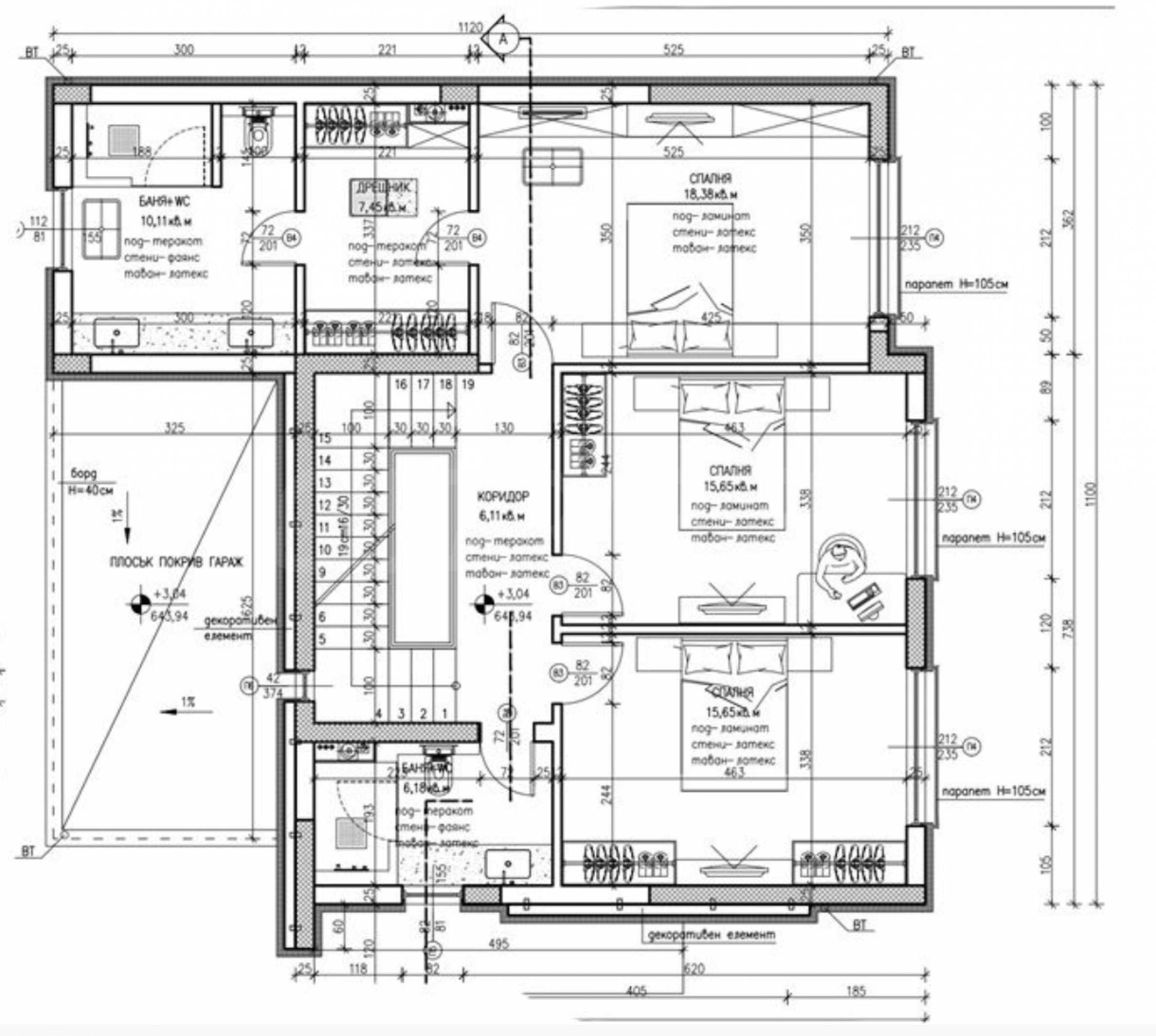
Къщата разполага със застроена площ от 120 кв.м и разгъната застроена площ от 328,10 кв.м, разпределена на функционални нива. Предлага се завършена до етап, който позволява довършване и интериорно решение според предпочитанията на бъдещия собственик.
Сградата е изпълнена с монолитна стоманобетонна конструкция, външни стени от тухли Wienerberger Porotherm 25 см и вътрешни преградни стени от Porotherm 12 см. Фасадното решение комбинира топлоизолационна система с дебелина 10 см и окачена фасада с каменна вата и HPL елементи с дървесен декор, допълнени от алуминиеви парапети. Покривът е плосък, изпълнен с PVC мембрана с UV защита.
Жилищните помещения са завършени с машинна гипсова мазилка по стени и тавани, подовете са на машинна циментова замазка, а балконите са изпълнени с мразоустойчив гранитогрес. Гаражът е със шлайфана циментова замазка, а входните и дворните врати са метални, с предвидени ролетни или тип „летящо крило“ гаражни врати. Дограмата е петкамерна PVC с троен стъклопакет и нискоемисионно стъкло.
Отоплителната инсталация включва изградена система за подово отопление и подготовка за конвектори за охлаждане, без монтирана термопомпа. Вентилацията е решена чрез PVC канали в санитарните помещения и коминни тела за кухненските абсорбатори.
Електроинсталацията е трифазна, с двойнотарифни електромери, изградено централно ел. табло, апартаментни табла с автоматични предпазители, TV-NET инсталации, гръмоотвод и подготовка за видеонаблюдение. Осветителни тела са монтирани по фасадите и терасите.
ВиК системата е изпълнена с PPR водопровод и PVC канализация до тапа, като към имота са изградени собствен сондаж с помпа на дълбочина над 50 м и пречиствателна станция с дренажни призми. Паркоустройството и вертикалната планировка са изпълнени изцяло съгласно одобрените проекти.
На картата с червен маркер е указано приблизителното местоположение на имота/комплекса.
Покупка с ипотечен кредит от SUPER CREDIT
За покупка на този имот с ипотечен кредит ние препоръчваме услугите на нашия специализиран кредитен център SUPER CREDIT! “Супер Кредит” ООД с ЕИК205405378 е лицензиран кредитен консултант, регистриран с №BCI000038 от 12.02.2019 г., по реда на чл. 51 от Закона за кредитите за недвижими имоти на потребители (ЗКНИП).
SUPER CREDIT е част от нашата корпоративната група STOYANOV ENTERPRISES, в която участват редица водещи български компании, работещи в областта на продажбите, наемите и управлението на недвижими имоти, строителното предприемачество, мебелната индустрия и туризма.
В качеството си на лицензиран кредитен посредник, SUPER CREDIT поддържа официални договорни отношения с почти всички водещи банки и небанкови кредитни институции в България. Избирайки SUPER CREDIT за свой доверен консултант по ипотечно или друг вид финансиране, всеки наш клиент получава компетентна кредитна консултация, както и няколко оферти от различни банки, с цел да може да направи информиран избор, при най-изгодните за него условия. Клиентите на SUPER CREDIT могат да разчитат на професионално съдействие, както за получаване на богат избор от оферти, предложени от различни финансиращи институции, така и на безпристрастно анализиране на предложените на клиентите оферти, с цел отсяване на офертите с най-добри добри условия за клиента. При анализа на офертите за кредит се вземат под внимание следните показатели: лихви, процент на самоучастие, общи разходи по кредита, застраховки, срок на погасяване, ясни и прозрачни условия на финансиране с цел максимална защита на интереса на клиента, както към момента на получаване на кредита, така и през целия срок до неговото пълно изплащане.
SUPER CREDIT може да осигури на клиентите на SUPER ИМОТИ, също и професионални консултации, както и пълно съдействие за получаване и на други видове кредити като потребителски, инвестиционни, лизингови и др.
SUPER CREDIT може да Ви съдейства и относно рефинансиране на Ваши съществуващи кредити и преместване на кредитната Ви експозиция в друга банка, при по-добри условия.
Всички услуги на SUPER CREDIT за клиентите-кредитополучатели са АБСОЛЮТНО БЕЗПЛАТНИ!
За повече информация относно ипотечното финансиране, моля свържете се с отговорния консултант по тази оферта или разгледайте сайта на SUPER CREDIT.

