REF#STO-137441 / Парцел в регулация / до Централна баня / гр. Банкя / Софийска област / България / Продажба На картата
Тип имот
Парцел в регулация
(Парцел с проект)
Местоположение
до Централна баня / Банкя / България
Обща площ
512 м²
Цена 365 000 €
713 878 лв.
713 €/м²
1 394 лв./м²
Запитване за повече информация или оглед
Яна Янчева
Тийм лидер / Офис Централен SUPRIMMO, София
Тийм лидер / Офис Централен SUPRIMMO, София
Инфо пакет
Разстояния
Разстояния от имота до други важни обекти
- Летище : 26 км
Представяме за продажба парцел в регулация с изключителна локация в топ центъра на гр. Банкя - отлична възможност за изграждане на луксозна фамилна къща в престижен курортен район с минерална вода, чист въздух и бърз достъп до София.
Имотът е с площ 512 кв.м, разположен е на асфалтова улица с широко лице от 26 метра, непосредствено срещу парк – разделени единствено от улицата. Парцелът се намира в старата, най-зелена и предпочитана част на Банкя.
Парцелът попада в зона ЖМ2 със следните параметри на застрояване:
• плътност – 30%;
• КИНТ – 1;
• кота корниз – до 10 м.
Всички комуникации са налични и изградени – ток, вода, централна канализация и газ.
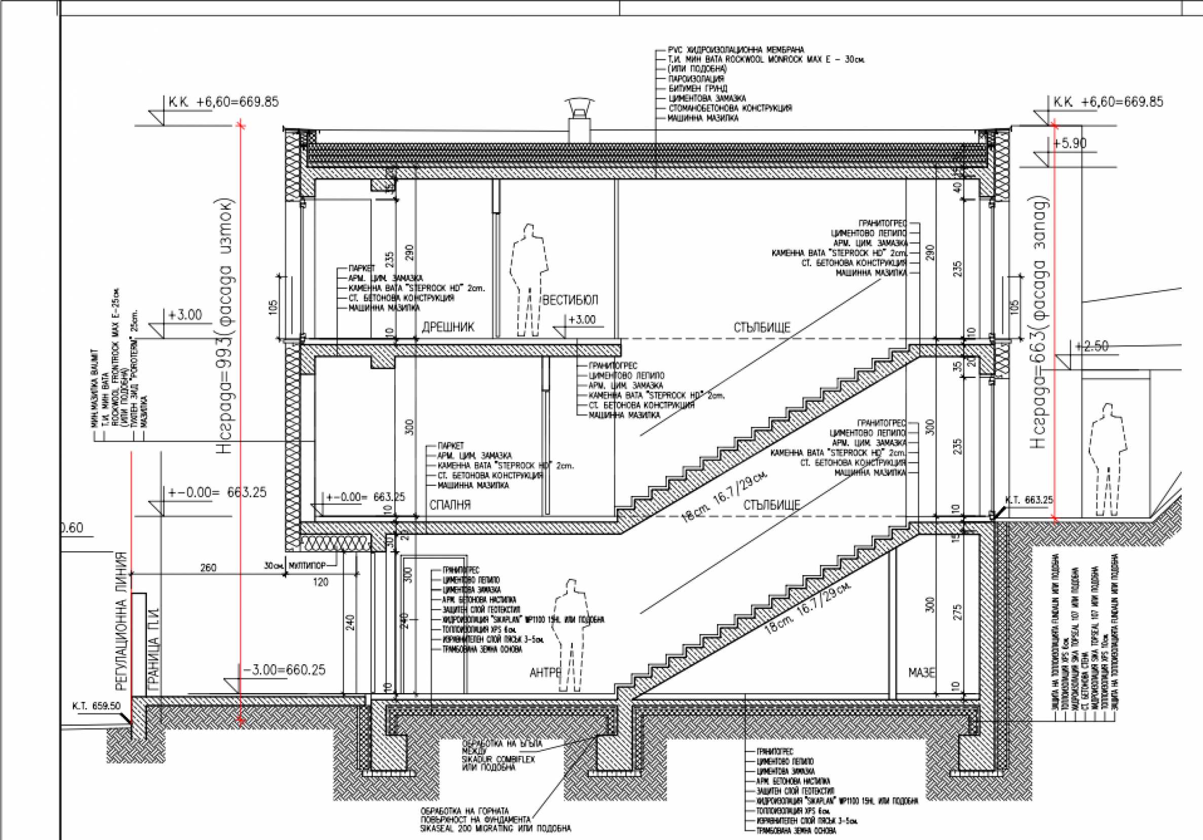
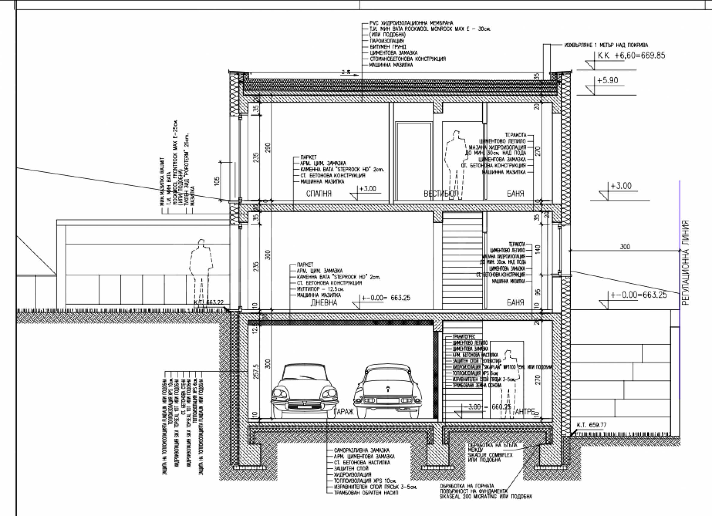
Имотът се продава с издадено разрешение за строеж за еднофамилна жилищна сграда.
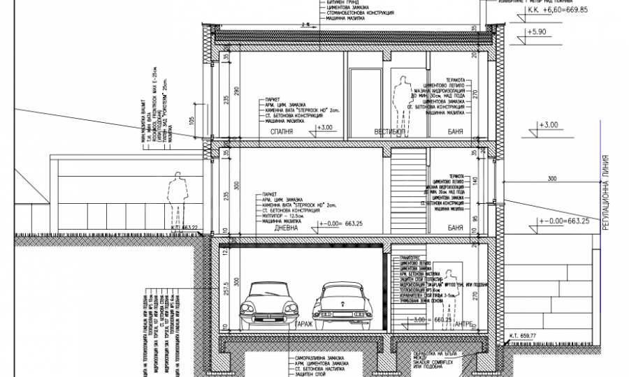
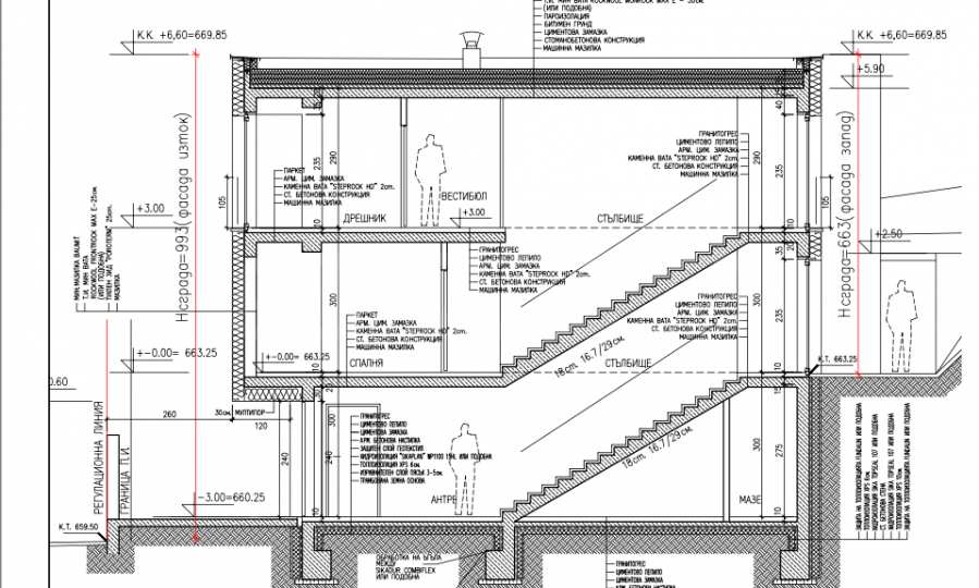
Сутеренен етаж:
• двоен гараж;
• котелно помещение;
• склад;
• стълбище с топла връзка към жилищната част;
• допълнително външно паркомясто в рамките на двора.
Първи етаж:
• входно антре;
• просторна дневна с кухненски бокс и трапезария;
• директен излаз към двора и връзка с лятна кухня / барбекю зона;
• спалня;
• баня с тоалетна;
• дрешник при входа на етажа.
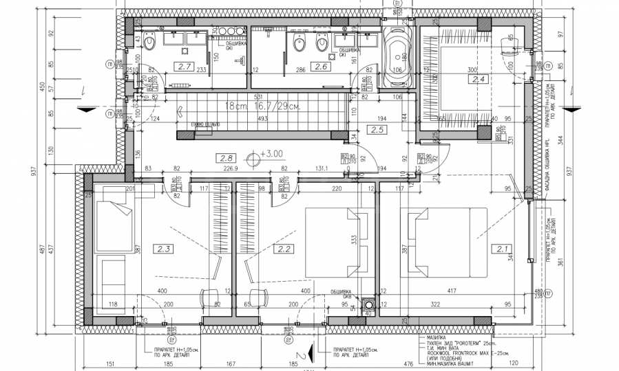
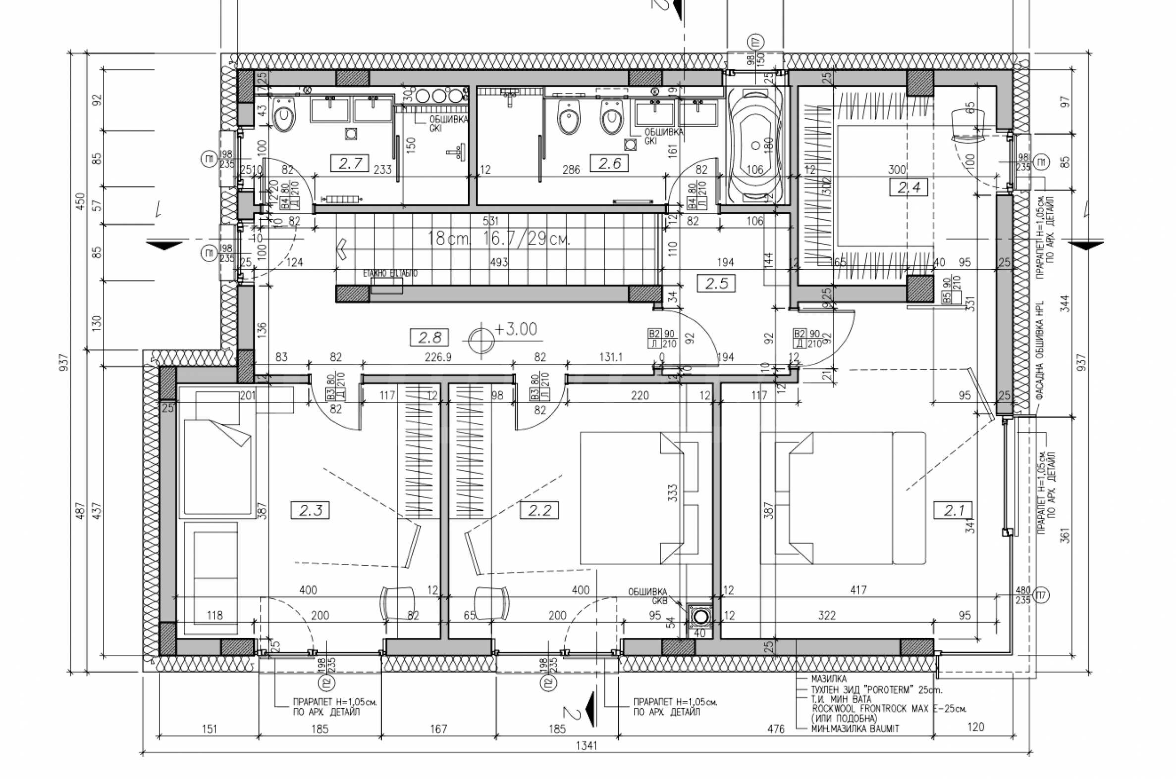
Втори етаж:
• три самостоятелни спални, една от които родителска;
• родителската спалня е с кабинет и собствена баня с тоалетна;
• втора баня с тоалетна, обслужваща останалите две спални.
Очакваме Вашето запитване
Ако желаете да организирате оглед на имот, който Ви интересува, или да посетите някой от нашите офиси, моля свържете се с нас. За да уговорите ден и час за среща или оглед, можете да се обадите на посочения в обявата телефон или да изпратите запитване чрез електронната поща. Нашият консултант ще Ви съдейства с всички необходими подробности и ще уговори удобно за Вас време.
Търсите подходящия за Вас имот?
Не се колебайте да се свържете с нас и да ни разкажете за Вашите нужди и предпочитания. Нашият екип ще проведе задълбочено проучване на пазара, за да Ви предложи имоти, които точно отговарят на Вашите критерии. Разполагаме с изключително портфолио от висококачествени и ексклузивни жилища, които са достъпни само за нашите клиенти. За да сте първите, които ще получите информация за тях – свържете се с нас.
Допълнителни услуги
Като ценен клиент на нашата компания, Вие ще имате привилегията да ползвате напълно безплатно услугите на нашия опитен юридически екип. В допълнение, предлагаме комплексни решения, включващи имуществена застраховка, безплатна финансова консултация, както и изгодни условия за финансиране. Нашите услуги се разпростират и в сферата на препродажбата, отдаването под наем и управлението на имоти. Осигуряваме висококачествени ремонтни дейности и обзавеждане чрез специализирани фирми, които са част от нашата корпоративна група и са наши дългогодишни професионални партньори.
Имотът е с площ 512 кв.м, разположен е на асфалтова улица с широко лице от 26 метра, непосредствено срещу парк – разделени единствено от улицата. Парцелът се намира в старата, най-зелена и предпочитана част на Банкя.
Парцелът попада в зона ЖМ2 със следните параметри на застрояване:
• плътност – 30%;
• КИНТ – 1;
• кота корниз – до 10 м.
Всички комуникации са налични и изградени – ток, вода, централна канализация и газ.
Имотът се продава с издадено разрешение за строеж за еднофамилна жилищна сграда.
Сутеренен етаж:
• двоен гараж;
• котелно помещение;
• склад;
• стълбище с топла връзка към жилищната част;
• допълнително външно паркомясто в рамките на двора.
Първи етаж:
• входно антре;
• просторна дневна с кухненски бокс и трапезария;
• директен излаз към двора и връзка с лятна кухня / барбекю зона;
• спалня;
• баня с тоалетна;
• дрешник при входа на етажа.
Втори етаж:
• три самостоятелни спални, една от които родителска;
• родителската спалня е с кабинет и собствена баня с тоалетна;
• втора баня с тоалетна, обслужваща останалите две спални.
Очакваме Вашето запитване
Ако желаете да организирате оглед на имот, който Ви интересува, или да посетите някой от нашите офиси, моля свържете се с нас. За да уговорите ден и час за среща или оглед, можете да се обадите на посочения в обявата телефон или да изпратите запитване чрез електронната поща. Нашият консултант ще Ви съдейства с всички необходими подробности и ще уговори удобно за Вас време.
Търсите подходящия за Вас имот?
Не се колебайте да се свържете с нас и да ни разкажете за Вашите нужди и предпочитания. Нашият екип ще проведе задълбочено проучване на пазара, за да Ви предложи имоти, които точно отговарят на Вашите критерии. Разполагаме с изключително портфолио от висококачествени и ексклузивни жилища, които са достъпни само за нашите клиенти. За да сте първите, които ще получите информация за тях – свържете се с нас.
Допълнителни услуги
Като ценен клиент на нашата компания, Вие ще имате привилегията да ползвате напълно безплатно услугите на нашия опитен юридически екип. В допълнение, предлагаме комплексни решения, включващи имуществена застраховка, безплатна финансова консултация, както и изгодни условия за финансиране. Нашите услуги се разпростират и в сферата на препродажбата, отдаването под наем и управлението на имоти. Осигуряваме висококачествени ремонтни дейности и обзавеждане чрез специализирани фирми, които са част от нашата корпоративна група и са наши дългогодишни професионални партньори.
Виж текста на други езици (автоматичен превод)
Местоположение
На картата с червен маркер е указано приблизителното местоположение на имота/комплекса.
Нашите топ оферти за продажба в Банкя, България

