Тип имот
Двустаен апартамент
Местоположение
кв. Христо Смирненски / Пловдив / България
Етажност
9
Етаж
2
Асансьор
да
Спални
1
Бани
1
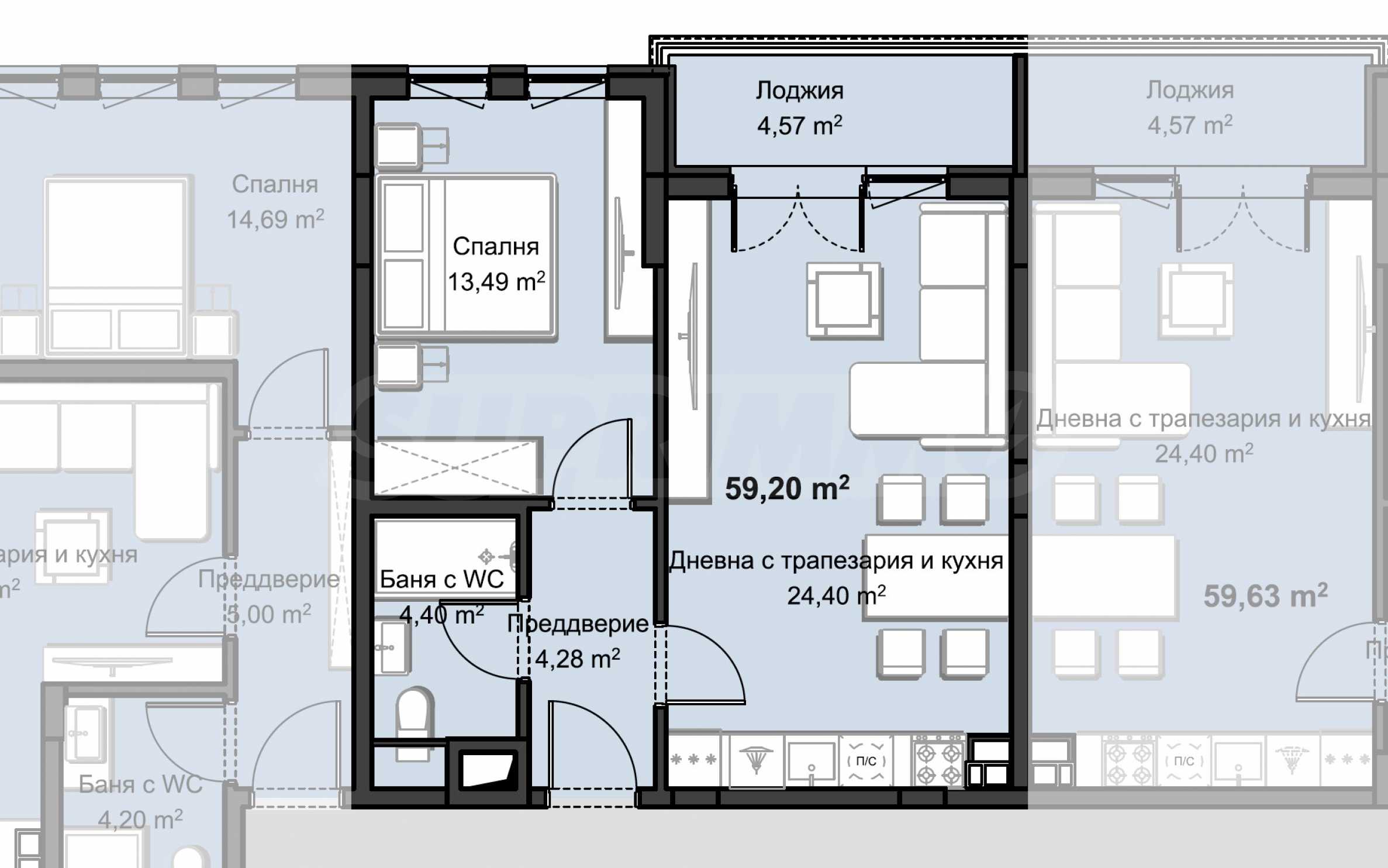
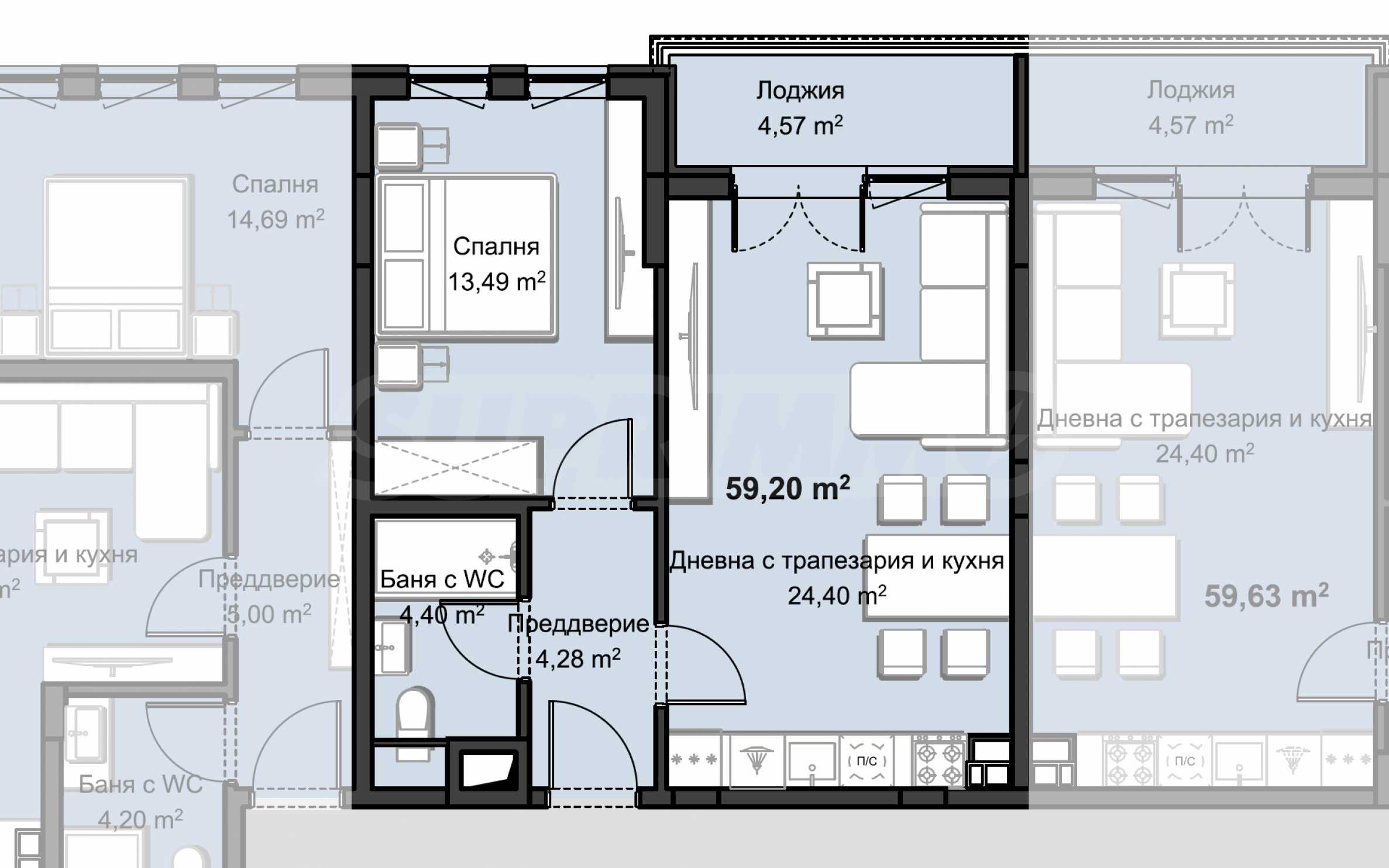
Обща площ
75.94 м²
Общи части
12 м²
Застроена площ
63.94 м²
Цена 112 391 €
219 818 лв.
1 480 €/м²
2 895 лв./м²
Без комисиона от купувача
Запитване за повече информация или оглед
Старши консултант / Офис Пловдив
Разстояния от имота до други важни обекти
- Център на града: 5.2 км
- Летище : 18.7 км
Гледки от имота
- Гледка към града
Строителство
- Стоманобетонна конструкция
- Тухла
Отопление
- Климатици
Представяме двустаен апартамент в иновативен и мащабен жилищен проект, разположен в един от най-предпочитаните и бързо развиващи се райони на Пловдив – кв. "Христо Смирненски". Локацията гарантира отлична свързаност – на пешеходно разстояние от Гребната база, Mall Plovdiv, големи болнични заведения, училища, детски градини и спирки на градския транспорт. В същото време предлага тишина, сигурност и усещане за отделен, спокоен свят в рамките на града.
В момента е в процес на строителство, Акт 16 е предвиден до май 2028 г.
БЕЗ КОМИСИОНА!
Комплексът съчетава изискан дизайн, високо качество на изпълнение и функционалност, отговаряща на съвременните нужди на модерния градски човек.
Проектиран с мисъл за пълноценен начин на живот, той предлага разнообразие от апартаменти – от практични едностайни до просторни многостайни жилища, с възможност за обединяване. Всички жилища са с отлично разпределение, изобилие от светлина и впечатляващи гледки към зеленина, градски пейзаж и дори Гребната база след 5-и етаж.
Параметри на имота
Жилището с обща площ от 75.94 кв.м се намира на 2-ри етаж от 9, с изложение запад.
Апартаментите се предават в степен на завършеност по БДС, на шпакловка и замазка.
Комплексът разполага с над 6000 кв.м озеленени площи, проектирани като парк с алеи, детски площадки и зони за отдих, които създават усещане за пространство, свобода и спокойствие. Паркирането е изцяло осигурено чрез надземни и подземни паркоместа и гаражи.
Съществено предимство е наличието на ритейл зона в рамките на комплекса, в която се подбират внимателно наематели и търговски обекти. В момента се сключват договори с подбрани брандове и доставчици на услуги – целта е да се осигурят всички ключови удобства на едно място: хранителен магазин, фитнес, аптека, ресторант, дентален център и други. Пространствата не се отдават на произволни търговци, а се подбират така, че да добавят реална стойност към имота и качеството на живот на живущите.
Техническото изпълнение е на ниво, което отговаря на най-високите стандарти:
• 6-камерна алуминиева дограма в цвят антрацит;
• Светла височина на помещенията - 2.75 м;
• Външна топлоизолация - 10 см каменна вата;
• Фасада - комбинация от еталбонд и HPL плоскости;
• Централна система за филтрация на питейната вода и хидрофор;
• Зарядни станции за електромобили;
• Блиндирана входна врата за всеки апартамент;
• Монтирани ключове, контакти и ВИК тапа;
• Скрито външно тяло за климатичната система – интегрирано във фасадата (без външни тела по терасите);
• Луксозно изпълнени общи части с едроплощен гранитогрес;
• По два висококласни асансьора във всяка секция;
• 24/7 видеонаблюдение и контролиран достъп;
• Професионален мениджмънт на комплекса с фокус върху безкомпромисна поддръжка и сигурност.
Посочените цени са по схема на плащане:
• 20% на предварителен договор;
• 80% на Акт 16.
ПРЕДЛАГАТ СЕ И ДРУГИ СХЕМИ НА ПЛАЩАНЕ С ДОПЪЛНИТЕЛНИ ОТСТЪПКИ!
Този проект е създаден за хора, които търсят не просто имот, а съвременен, добре организиран и устойчив начин на живот. Дом, който предлага комфорт, естетика и удобства на бъдещето – днес.
За повече информация, моля свържете се с нас.
На картата с червен маркер е указано приблизителното местоположение на имота/комплекса.
Покупка с ипотечен кредит от SUPER CREDIT
За покупка на този имот с ипотечен кредит ние препоръчваме услугите на нашия специализиран кредитен център SUPER CREDIT! “Супер Кредит” ООД с ЕИК205405378 е лицензиран кредитен консултант, регистриран с №BCI000038 от 12.02.2019 г., по реда на чл. 51 от Закона за кредитите за недвижими имоти на потребители (ЗКНИП).
SUPER CREDIT е част от нашата корпоративната група STOYANOV ENTERPRISES, в която участват редица водещи български компании, работещи в областта на продажбите, наемите и управлението на недвижими имоти, строителното предприемачество, мебелната индустрия и туризма.
В качеството си на лицензиран кредитен посредник, SUPER CREDIT поддържа официални договорни отношения с почти всички водещи банки и небанкови кредитни институции в България. Избирайки SUPER CREDIT за свой доверен консултант по ипотечно или друг вид финансиране, всеки наш клиент получава компетентна кредитна консултация, както и няколко оферти от различни банки, с цел да може да направи информиран избор, при най-изгодните за него условия. Клиентите на SUPER CREDIT могат да разчитат на професионално съдействие, както за получаване на богат избор от оферти, предложени от различни финансиращи институции, така и на безпристрастно анализиране на предложените на клиентите оферти, с цел отсяване на офертите с най-добри добри условия за клиента. При анализа на офертите за кредит се вземат под внимание следните показатели: лихви, процент на самоучастие, общи разходи по кредита, застраховки, срок на погасяване, ясни и прозрачни условия на финансиране с цел максимална защита на интереса на клиента, както към момента на получаване на кредита, така и през целия срок до неговото пълно изплащане.
SUPER CREDIT може да осигури на клиентите на SUPER ИМОТИ, също и професионални консултации, както и пълно съдействие за получаване и на други видове кредити като потребителски, инвестиционни, лизингови и др.
SUPER CREDIT може да Ви съдейства и относно рефинансиране на Ваши съществуващи кредити и преместване на кредитната Ви експозиция в друга банка, при по-добри условия.
Всички услуги на SUPER CREDIT за клиентите-кредитополучатели са АБСОЛЮТНО БЕЗПЛАТНИ!
За повече информация относно ипотечното финансиране, моля свържете се с отговорния консултант по тази оферта или разгледайте сайта на SUPER CREDIT.

