Тип имот
Тристаен апартамент
Местоположение
Созопол / България
Етажност
4
Етаж
3
Асансьор
да
Спални
2
Бани
1
Обща площ
106.12 м²
Общи части
16.07 м²
Застроена площ
90.05 м²
Цена 171 000 €
334 447 лв.
1 611 €/м²
3 152 лв./м²
Всички разходи по сделката за сметка на купувача
Запитване за повече информация или оглед
Консултант / Офис Созопол
Разстояния от имота до други важни обекти
- Морето: 500 м
- Летище : 44 км
Строителство
- Тухла
Има Акт 14. Очакван Акт 16 - декември 2026 г.
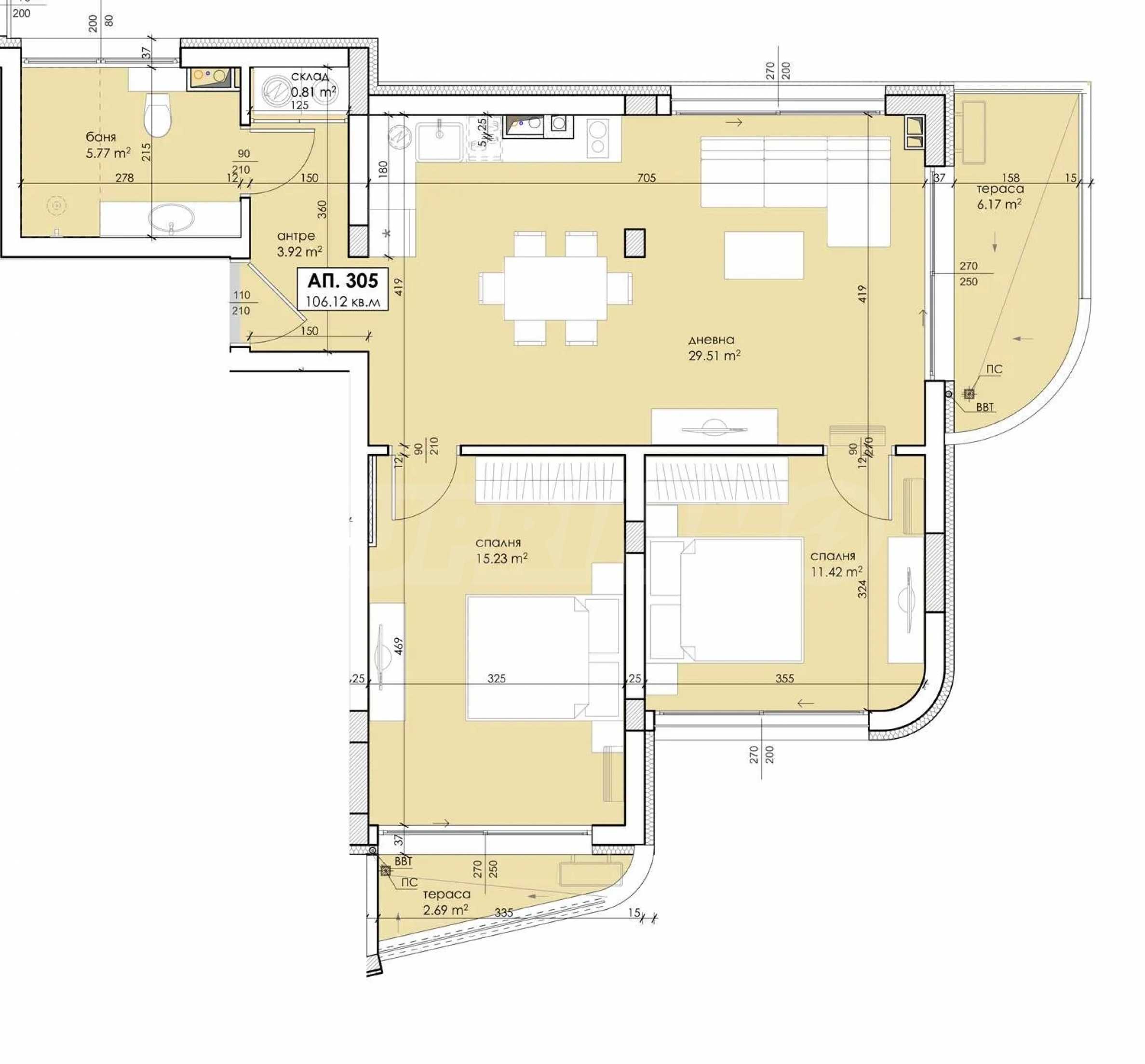
Имотът е разположен на трети етаж и предлага обща площ от 106,12 кв.м с изложение изток/север/юг.
Разпределение:
• антре/коридор;
• дневна с кухня;
• две спални;
• баня с тоалет;
• две тераси.
Жилището се издава в степен на завършеност по БДС:
• PVC дограма – SALAMANDER 76;
• подпрозоречни первази от естествен камък;
• противовзломни апартаментни входни врати;
• стени и тавани: варо-циментова мазилка с ъглови профили;
• подове: циментова замазка;
• балкон с фасадна мазилка и монтирани осветителни тела;
• хидроизолация газопламъчна битумна 3mm Venus и гранитогрес;
• парапет – съгласно проект.
Има възможност за довършване "до ключ", както и за мебелиране срещу допълнително заплащане.
Апартаментът е подходящ както за целогодишно живеене, така и за ваканционно ползване.
За сградата
Сградата е проектирана на 4 етажа с атрактивна визия, разполага с двустайни и тристайни жилища, и 18 паркоместа на надземно и подземно ниво. Входът на подземния гараж е проектиран с рампа през двора и улицата.
Технически характеристики:
• стълбища и общи части: гранитогрес или камък;
• стени и тавани: мазилка и латекс;
• парапети – по проект;
• монтирани хидравлични асансьори;
• покривна хидроизолация газопламъчна битумна 3mm Venus;
• топлоизолация – XPS 10 см.
• циментова замазка;
• под на паркоместа и гараж - шлайфан бетон;
• фасадни външни стени: тухла 25см – Wienerberger Тhermo;
• топлоизолация по тухлени зидове с ЕРS 10см – Baumit;
• фасадна мрежа шпаклована с лепило – Baumit;
• структорна полимерна мазилка – Baumit;
• топлоизолация по бетонови повърхности – XPS 10см;
• ВиК инсталация - полипропиленов водопровод на „тапа”;
• изградена силнотокова електро инсталация за осветление и контакти;
• монтирани електромери, апартаментно ел. табло;
• монтирани ключове и контакти;
• монтирани осветителни тела на балконите;
• звънчева и домофонна инсталация;
• вътрешни инсталации за интернет и ТV.
Очакваме Вашето запитване
Ако желаете да организирате оглед на имот, който Ви интересува, или да посетите някой от нашите офиси, моля свържете се с нас. За да уговорите ден и час за среща или оглед, можете да се обадите на посочения в обявата телефон или да изпратите запитване чрез електронната поща. Нашият консултант ще Ви съдейства с всички необходими подробности и ще уговори удобно за Вас време.
Търсите подходящия за Вас имот?
Не се колебайте да се свържете с нас и да ни разкажете за Вашите нужди и предпочитания. Нашият екип ще проведе задълбочено проучване на пазара, за да Ви предложи имоти, които точно отговарят на Вашите критерии. Разполагаме с изключително портфолио от висококачествени и ексклузивни жилища, които са достъпни само за нашите клиенти. За да сте първите, които ще получите информация за тях – свържете се с нас.
Допълнителни услуги
Като ценен клиент на нашата компания, Вие ще имате привилегията да ползвате напълно безплатно услугите на нашия опитен юридически екип. В допълнение, предлагаме комплексни решения, включващи имуществена застраховка, безплатна финансова консултация, както и изгодни условия за финансиране. Нашите услуги се разпростират и в сферата на препродажбата, отдаването под наем и управлението на имоти. Осигуряваме висококачествени ремонтни дейности и обзавеждане чрез специализирани фирми, които са част от нашата корпоративна група и са наши дългогодишни професионални партньори.
На картата с червен маркер е указано приблизителното местоположение на имота/комплекса.
Покупка с ипотечен кредит от SUPER CREDIT
За покупка на този имот с ипотечен кредит ние препоръчваме услугите на нашия специализиран кредитен център SUPER CREDIT! “Супер Кредит” ООД с ЕИК205405378 е лицензиран кредитен консултант, регистриран с №BCI000038 от 12.02.2019 г., по реда на чл. 51 от Закона за кредитите за недвижими имоти на потребители (ЗКНИП).
SUPER CREDIT е част от нашата корпоративната група STOYANOV ENTERPRISES, в която участват редица водещи български компании, работещи в областта на продажбите, наемите и управлението на недвижими имоти, строителното предприемачество, мебелната индустрия и туризма.
В качеството си на лицензиран кредитен посредник, SUPER CREDIT поддържа официални договорни отношения с почти всички водещи банки и небанкови кредитни институции в България. Избирайки SUPER CREDIT за свой доверен консултант по ипотечно или друг вид финансиране, всеки наш клиент получава компетентна кредитна консултация, както и няколко оферти от различни банки, с цел да може да направи информиран избор, при най-изгодните за него условия. Клиентите на SUPER CREDIT могат да разчитат на професионално съдействие, както за получаване на богат избор от оферти, предложени от различни финансиращи институции, така и на безпристрастно анализиране на предложените на клиентите оферти, с цел отсяване на офертите с най-добри добри условия за клиента. При анализа на офертите за кредит се вземат под внимание следните показатели: лихви, процент на самоучастие, общи разходи по кредита, застраховки, срок на погасяване, ясни и прозрачни условия на финансиране с цел максимална защита на интереса на клиента, както към момента на получаване на кредита, така и през целия срок до неговото пълно изплащане.
SUPER CREDIT може да осигури на клиентите на SUPER ИМОТИ, също и професионални консултации, както и пълно съдействие за получаване и на други видове кредити като потребителски, инвестиционни, лизингови и др.
SUPER CREDIT може да Ви съдейства и относно рефинансиране на Ваши съществуващи кредити и преместване на кредитната Ви експозиция в друга банка, при по-добри условия.
Всички услуги на SUPER CREDIT за клиентите-кредитополучатели са АБСОЛЮТНО БЕЗПЛАТНИ!
За повече информация относно ипотечното финансиране, моля свържете се с отговорния консултант по тази оферта или разгледайте сайта на SUPER CREDIT.

