Тип имот
Тристаен апартамент
Местоположение
кв. Люлин 8 / София / България
Етажност
9
Етаж
6
Асансьор
да
Спални
2
Бани
2
Обща площ
99.98 м²
Общи части
17.72 м²
Застроена площ
82.26 м²
Цена 204 959 €
400 865 лв.
2 050 €/м²
4 009 лв./м²
Без комисиона от купувача
Запитване за повече информация или оглед
Консултант / Офис Цар Асен, София (PROPERTY.BG)
Разстояния от имота до други важни обекти
Гледки от имота
- Гледка към града
Строителство
- Тухла
Сградата се намира на изключително комуникативно място – в близост до детска градина, спирки на градски транспорт и основни пътни артерии, осигуряващи бърз достъп до всички ключови точки на града. Местоположението ѝ я прави отличен избор както за живеене, така и за инвестиция.
В сградата са предвидени 59 апартамента – двустайни, тристайни и студиа, създадени с внимание към всеки детайл и ориентирани към максимално удобство и функционалност. Апартаментите са проектирани така, че да отговорят на различни нужди и предпочитания на своите бъдещи обитатели.
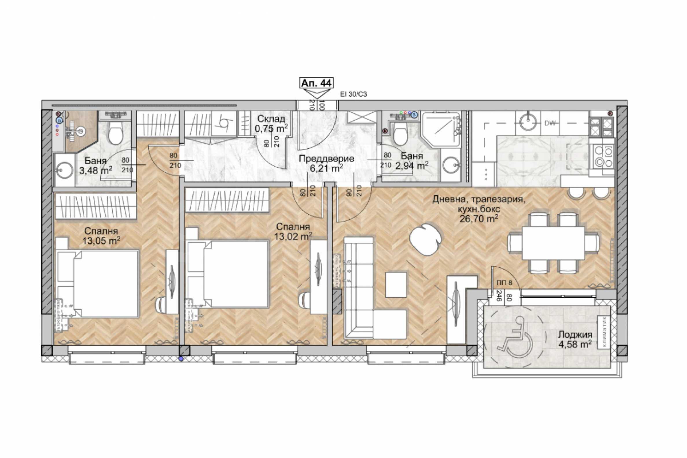
Разпределение на имота: обща площ 99.98 кв.м (нетна площ 85.94 кв.м + общи части 17.72 кв.м), разположен на шести етаж.
Сградата ще се издава в степен на завършеност "на шпакловка и замазка", което предоставя възможност на новите собственици да завършат интериора според собствените си вкусове и предпочитания. Това дава възможност за персонализиране на жилището, което още повече подобрява изгледите за инвестиция.
Основните технически характеристики на проекта включват един подземен етаж с гаражи, паркоместа, мазета и технически помещения, както и двулентова рампа за автомобилен достъп. На разположение са девет жилищни етажа с разнообразие от апартаменти, а терасовидният последен етаж придава модерна визия на сградата.
Очакваният пусков срок на сградата е края на 2028 г., а изграждането ѝ ще бъде реализирано в няколко етапа, които ще осигурят плавен напредък и възможност за предварителни резервации. Предлаганите схеми на плащане ще бъдат гъвкави, с възможности за разсрочено плащане, което ще улесни закупуването на апартамент.
Схема на плащане:
- 10% - предварителен договор
- 30% - кота 0
- 30% - Акт 14
- 30% - Акт 16
Очакваме Вашето запитване
Ако желаете да организирате оглед на имот, който Ви интересува, или да посетите някой от нашите офиси, моля свържете се с нас. За да уговорите ден и час за среща или оглед, можете да се обадите на посочения в обявата телефон или да изпратите запитване чрез електронната поща. Нашият консултант ще Ви съдейства с всички необходими подробности и ще уговори удобно за Вас време.
Търсите подходящия за Вас имот?
Не се колебайте да се свържете с нас и да ни разкажете за Вашите нужди и предпочитания. Нашият екип ще проведе задълбочено проучване на пазара, за да Ви предложи имоти, които точно отговарят на Вашите критерии. Разполагаме с изключително портфолио от висококачествени и ексклузивни жилища, които са достъпни само за нашите клиенти. За да сте първите, които ще получите информация за тях – свържете се с нас.
Допълнителни услуги
Като ценен клиент на нашата компания, Вие ще имате привилегията да ползвате напълно безплатно услугите на нашия опитен юридически екип. В допълнение, предлагаме комплексни решения, включващи имуществена застраховка, безплатна финансова консултация, както и изгодни условия за финансиране. Нашите услуги се разпростират и в сферата на препродажбата, отдаването под наем и управлението на имоти. Осигуряваме висококачествени ремонтни дейности и обзавеждане чрез специализирани фирми, които са част от нашата корпоративна група и са наши дългогодишни професионални партньори.
На картата с червен маркер е указано приблизителното местоположение на имота/комплекса.
Покупка с ипотечен кредит от SUPER CREDIT
За покупка на този имот с ипотечен кредит ние препоръчваме услугите на нашия специализиран кредитен център SUPER CREDIT! “Супер Кредит” ООД с ЕИК205405378 е лицензиран кредитен консултант, регистриран с №BCI000038 от 12.02.2019 г., по реда на чл. 51 от Закона за кредитите за недвижими имоти на потребители (ЗКНИП).
SUPER CREDIT е част от нашата корпоративната група STOYANOV ENTERPRISES, в която участват редица водещи български компании, работещи в областта на продажбите, наемите и управлението на недвижими имоти, строителното предприемачество, мебелната индустрия и туризма.
В качеството си на лицензиран кредитен посредник, SUPER CREDIT поддържа официални договорни отношения с почти всички водещи банки и небанкови кредитни институции в България. Избирайки SUPER CREDIT за свой доверен консултант по ипотечно или друг вид финансиране, всеки наш клиент получава компетентна кредитна консултация, както и няколко оферти от различни банки, с цел да може да направи информиран избор, при най-изгодните за него условия. Клиентите на SUPER CREDIT могат да разчитат на професионално съдействие, както за получаване на богат избор от оферти, предложени от различни финансиращи институции, така и на безпристрастно анализиране на предложените на клиентите оферти, с цел отсяване на офертите с най-добри добри условия за клиента. При анализа на офертите за кредит се вземат под внимание следните показатели: лихви, процент на самоучастие, общи разходи по кредита, застраховки, срок на погасяване, ясни и прозрачни условия на финансиране с цел максимална защита на интереса на клиента, както към момента на получаване на кредита, така и през целия срок до неговото пълно изплащане.
SUPER CREDIT може да осигури на клиентите на SUPER ИМОТИ, също и професионални консултации, както и пълно съдействие за получаване и на други видове кредити като потребителски, инвестиционни, лизингови и др.
SUPER CREDIT може да Ви съдейства и относно рефинансиране на Ваши съществуващи кредити и преместване на кредитната Ви експозиция в друга банка, при по-добри условия.
Всички услуги на SUPER CREDIT за клиентите-кредитополучатели са АБСОЛЮТНО БЕЗПЛАТНИ!
За повече информация относно ипотечното финансиране, моля свържете се с отговорния консултант по тази оферта или разгледайте сайта на SUPER CREDIT.

