Тип имот
Къща
Местоположение
кв. Сеславци / София / България
Етажност
3
Спални
3
Бани
2
Гаражи
2
да
Площ на сградата
258 м²
Площ на парцела
394 м²
Цена 384 000 €
751 039 лв.
Без комисиона от купувача
Запитване за повече информация или оглед
Мениджър обучения и развитие / Офис Централен, София
Разстояния от имота до други важни обекти
Гледки от имота
- Гледка към гора
- Гледка към града
- Гледка към планината
- Гледка към поляни
Строителство
- Тухла
Отопление
- Термопомпа
- Уреди на ел. ток (духалки, ел. радиатори и др.)
Проектът включва изграждането на модерни, уютни и енергийно ефективни самостоятелни къщи в кв. "Сеславци", разположен в североизточната част на София. Този район е известен със своята красива природа, чист въздух и спокойна атмосфера, което го прави идеалното място за бягство от градската среда.
Разпределение на къщи №1 (двор 374 кв. м) и №2 (двор 394 кв. м):
• Ниво сутерен – 74,30 кв. м:
- Входно антре – 8,45 кв. м;
- Двоен гараж - 34,77 кв. м;
- Складово помещение 1 – 5,38 кв. м;
- Складово помещение 2 – 3,57 кв. м;
- Стълбище – 8,16 кв. м.
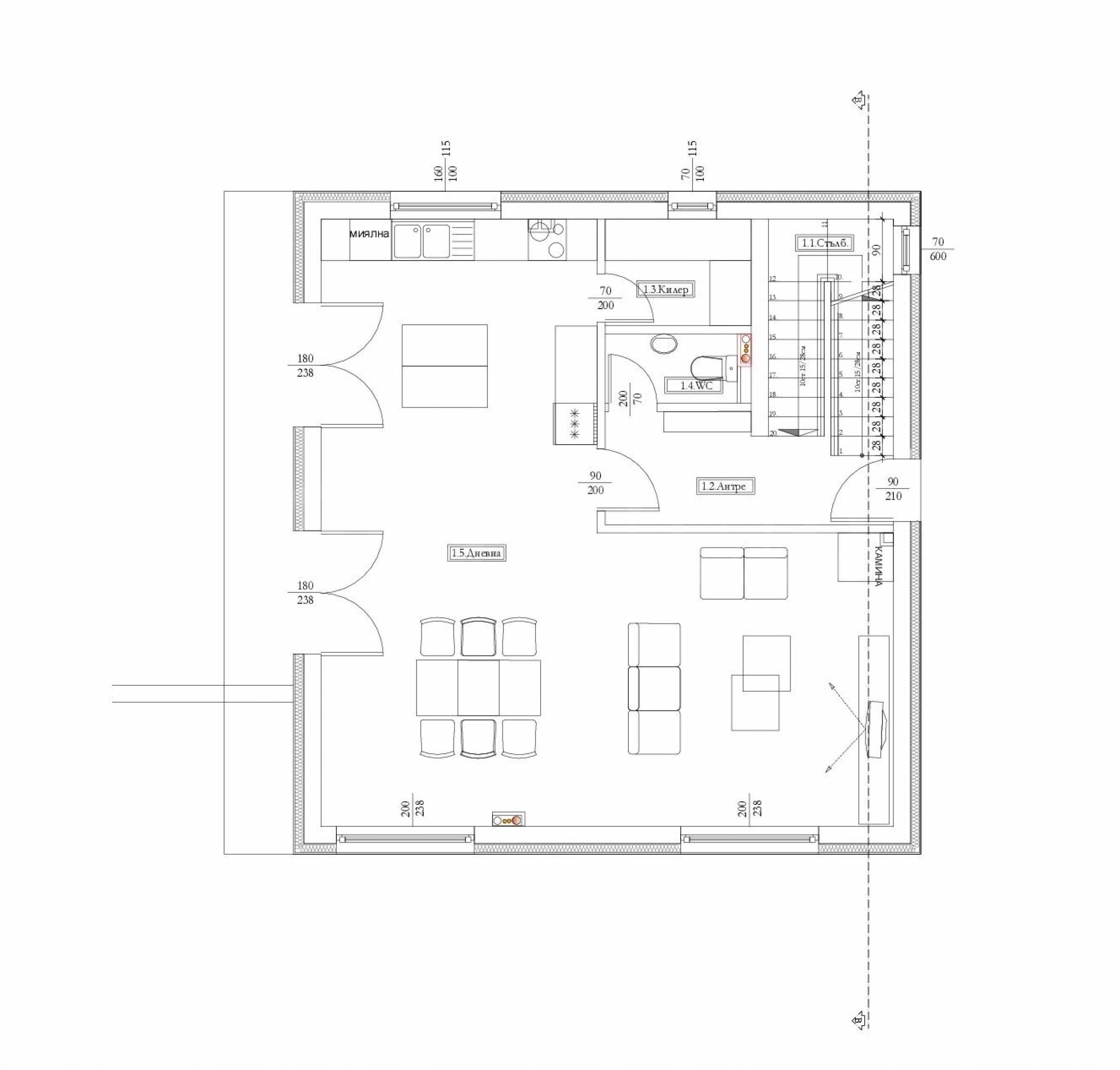
• Ниво етаж 1 (кота 0) – 87 кв. м:
- Дневна с кухненски бокс – 52,73 кв. м;
- Килер – 3,25 кв. м;
- Тоалетна – 2,11 кв. м;
- Входно антре – 5,84 кв. м;
- Стълбище – 5,89 кв. м.
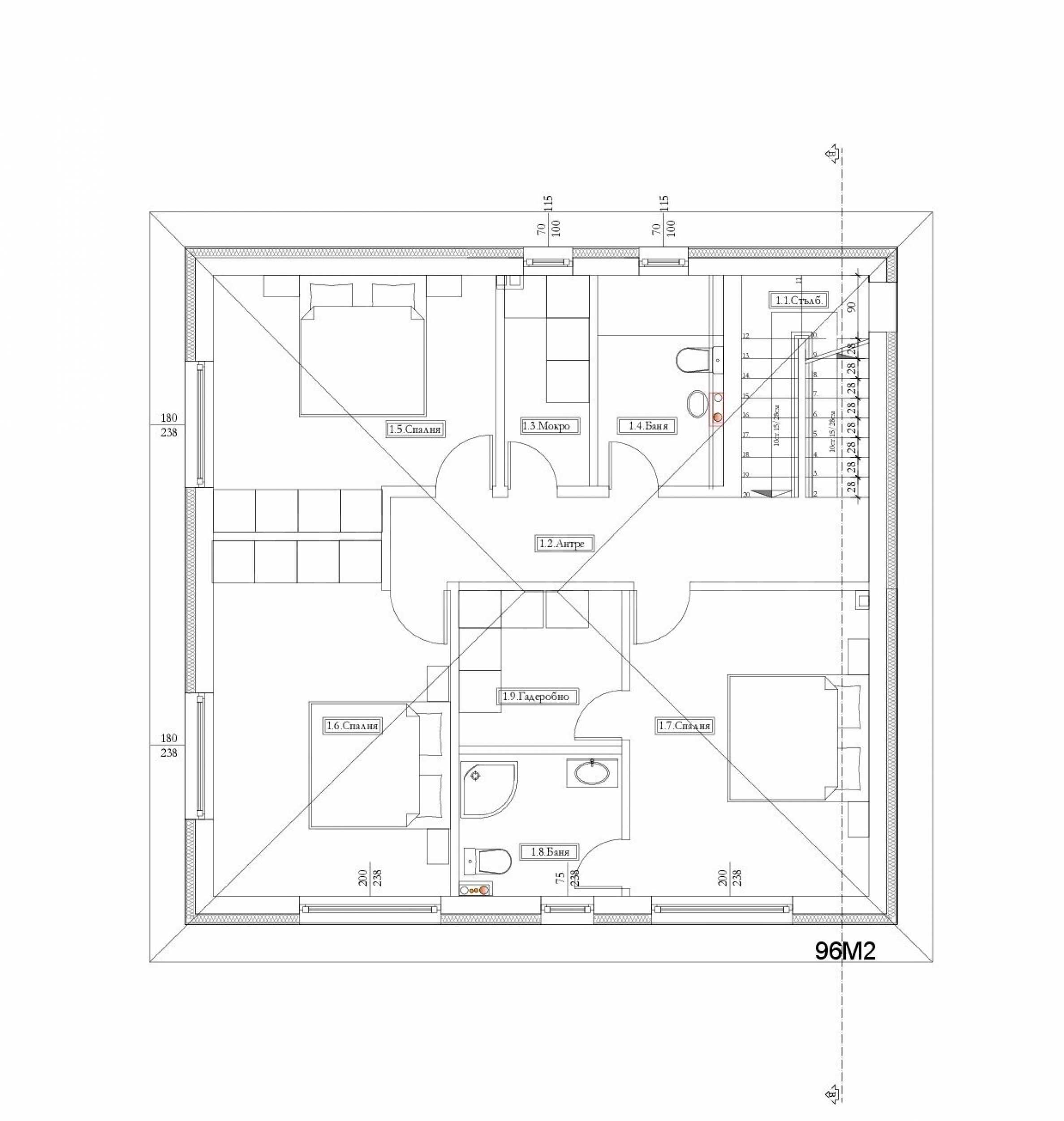
• Ниво етаж 2 (кота 3,00):
- Спалня 1 – 13,55 кв. м;
- Спалня 2 – 16,32 кв. м;
- Родителска спалня (14,38 кв. м) с дрешник (4,96 кв. м) и баня с тоалетна (4,34 кв. м);
- Баня с тоалетна – 3,57 кв. м;
- Мокро помещение – 3,57 кв. м;
- Коридор – 8,11 кв. м;
- Стълбище – 5,89 кв. м.
Основни характеристики:
• Тип имоти: самостоятелни къщи с три спални;
• Брой къщи: 8;
• Площ на парцелите: oт 340 до 570 кв.м;
• Застроена площ на къщите: oт 180 до 258 кв.м.
Технически характеристики:
• тухли Wiеnerberger Porotherm 25 см;
• тухли вътрешни преградни стени Wiеnerberger Porotherm 12 см;
• изолация по фасада 15 см;
• фасадна мазилка Baumit;
• два броя автоматични гаражни врати Hörmann;
• входна врата от висок клас;
• дограма: 5-камерна PVC, троен стъклопакет, 4К сезона външно – висок клас;
• мълниезащита;
• изградени Електро и ВиК инсталации;
• отопление на ток с подготовка за поставяне на термопомпа;
• индивидуална пречиствателна станция и подготовка за присъединяване към канализация на централната ВиК мрежа;
• керемиди и покривни материали – Брамак;
• озеленяване и затревяване на двора.
Стандартна схема на плащане:
• 20% - предварителен договор;
• 80% - разрешение за ползване.
Етапи на строителство:
Проектът ще бъде изпълнен в две фази, като фаза I, състояща се от къщи № 1 и № 2 е вече с акт 14 и завършване м. август 2026 г.
Следващата фаза с изграждането на останалите 6 къщи ще бъде стартирана в началото на м. април 2026 г.
Предимства на проекта:
• Природа и чист въздух: Квартал Сеславци е заобиколен от зеленина и предлага прекрасни гледки към планината. Чистият въздух и спокойствието на района създават идеални условия за здравословен и релаксиращ начин на живот.
• Бягство от градската среда: Къщите предоставят възможност за уединение и спокойствие, далеч от шума и стреса на големия град, като същевременно са на кратко разстояние от центъра на София (19 км).
• Модерни удобства: Всяка къща е проектирана с внимание към детайла и включва модерни удобства като просторни дневни, съвременно разпределение, енергийно ефективни системи и красиви градини.
• Сигурност и комфорт: Проектът включва комплекс с контролиран достъп, което гарантира безопасността и спокойствието на жителите.
За района
Проектът за самостоятелни къщи в квартал Сеславци предлага уникална възможност за комфортен и спокоен живот сред природата, без да се лишавате от удобствата на градската среда. Това е идеалното място за семейства, които търсят баланс между работа и личен живот, както и за всички, които ценят качеството на живот и природната красота.
Квартал Сеславци се намира в североизточната част на София и е част от район “Кремиковци”. До 1978 година Сеславци е било самостоятелно село, но след това е присъединено към столицата. Известен е със своята богата история и културно наследство, включително и няколко манастира. Един от най-значимите е Сеславският манастир "Св. Николай Мирликийски". Други забележителни манастири в района са Кремиковският манастир "Св. Георги Победоносец" и Буховският манастир "Св. Архангел Михаил".
• Инфраструктура
Сеславци разполага с основна инфраструктура, включваща редовна автобусна линия номер 117, която свързва квартала с останалата част на града. В квартала има и новоизградени детски площадки и спортни съоръжения.
• Училище
В Сеславци има основно училище, което обслужва местните деца и предлага качествено образование.
• Детска градина
През 2022 година в Сеславци беше открита нова сграда на детска градина, филиал на ДГ № 146 „Звездица“. Тя разполага с просторни занимални и спални помещения, физкултурен и музикален салон, както и кухненски блок с изцяло ново оборудване. Детската градина има и площадки за игра на открито и футболно игрище.
• Магазини
В квартала има няколко малки магазина за хранителни стоки и други основни нужди, които обслужват местните жители.
Покупка с ипотечен кредит от SUPER CREDIT
За покупка на този имот с ипотечен кредит ние препоръчваме услугите на нашия специализиран кредитен център SUPER CREDIT! “Супер Кредит” ООД с ЕИК205405378 е лицензиран кредитен консултант, регистриран с №BCI000038 от 12.02.2019 г., по реда на чл. 51 от Закона за кредитите за недвижими имоти на потребители (ЗКНИП).
SUPER CREDIT е част от нашата корпоративната група STOYANOV ENTERPRISES, в която участват редица водещи български компании, работещи в областта на продажбите, наемите и управлението на недвижими имоти, строителното предприемачество, мебелната индустрия и туризма.
В качеството си на лицензиран кредитен посредник, SUPER CREDIT поддържа официални договорни отношения с почти всички водещи банки и небанкови кредитни институции в България. Избирайки SUPER CREDIT за свой доверен консултант по ипотечно или друг вид финансиране, всеки наш клиент получава компетентна кредитна консултация, както и няколко оферти от различни банки, с цел да може да направи информиран избор, при най-изгодните за него условия. Клиентите на SUPER CREDIT могат да разчитат на професионално съдействие, както за получаване на богат избор от оферти, предложени от различни финансиращи институции, така и на безпристрастно анализиране на предложените на клиентите оферти, с цел отсяване на офертите с най-добри добри условия за клиента. При анализа на офертите за кредит се вземат под внимание следните показатели: лихви, процент на самоучастие, общи разходи по кредита, застраховки, срок на погасяване, ясни и прозрачни условия на финансиране с цел максимална защита на интереса на клиента, както към момента на получаване на кредита, така и през целия срок до неговото пълно изплащане.
SUPER CREDIT може да осигури на клиентите на SUPER ИМОТИ, също и професионални консултации, както и пълно съдействие за получаване и на други видове кредити като потребителски, инвестиционни, лизингови и др.
SUPER CREDIT може да Ви съдейства и относно рефинансиране на Ваши съществуващи кредити и преместване на кредитната Ви експозиция в друга банка, при по-добри условия.
Всички услуги на SUPER CREDIT за клиентите-кредитополучатели са АБСОЛЮТНО БЕЗПЛАТНИ!
За повече информация относно ипотечното финансиране, моля свържете се с отговорния консултант по тази оферта или разгледайте сайта на SUPER CREDIT.

