Тип имот
Тристаен апартамент
Местоположение
кв. Малинова долина / София / България
Етажност
4
Етаж
2
Асансьор
да
Спални
2
Бани
1
Обща площ
107.46 м²
Общи части
18.80 м²
Застроена площ
88.66 м²
Цена 250 382 €
489 705 лв.
2 330 €/м²
4 557 лв./м²
Без комисиона от купувача
Запитване за повече информация или оглед
Консултант / Офис Централен SUPRIMMO, София
Разстояния от имота до други важни обекти
- Център на града: 7.7 км
- Летище : 7 км
Гледки от имота
- Гледка към вътрешен двор
- Гледка към града
Отопление
- Термопомпа
ПРЕД АКТ 15!
Местоположението е комуникативно, в близост до ул. "Проф. Крикор Азарян", която осигурява достъп до бул. "Симеоновско шосе" и бул. "Климент Охридски", а от там и до всички точки на столицата. На пешеходно разстояние се намират Зимния дворец на спорта, Национална Спортна Академия, парк "Въртопо" и всички удобства на Студентски град.
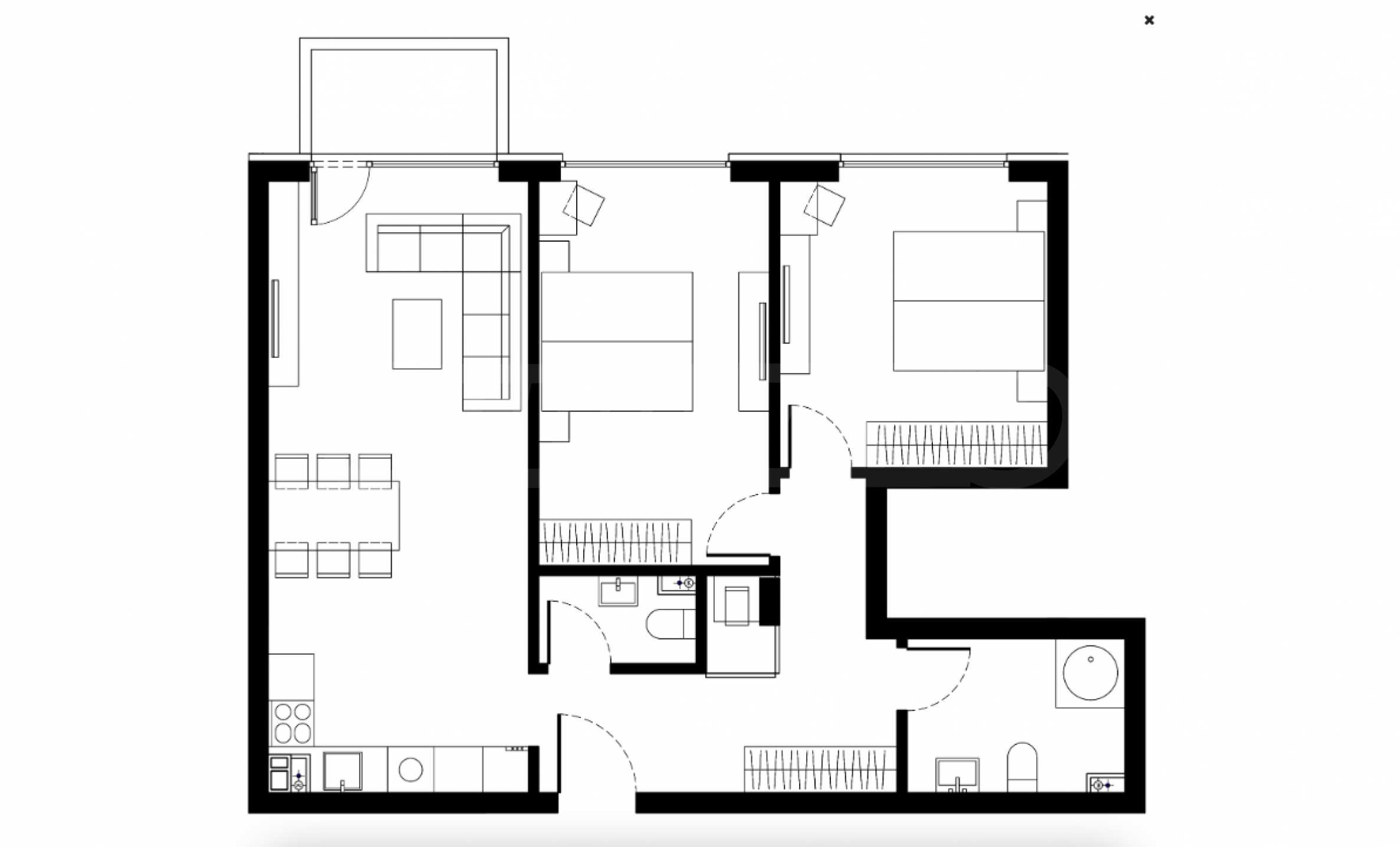
Имотът е ситуиран на 3-ти етаж от общо 4, ориентиран е на север/изток и предлага 119.59 кв.м обща площ.
Разпределение:
- антре/коридор;
- баня с тоалетна - 5.67 кв.м;
- тоалетна - 2.27 кв.м;
- склад/мокро помещение;
- спалня - 14.95 кв.м;
- втора спалня - 12.95 кв.м;
- дневна с кухня и трапезария - 26.79 кв.м;
- тераса - 4.05 кв.м.
За комплекса
Състои се от три 4-етажни сгради и собствен парк с площ 1 500 кв.м, с богато озеленяване и без автомобилен трафик, които ще осигурят на живущите спокойна атмосфера на живот. Апартаментите са с функционални разпределения и благоприятни изложения, като голяма част от тях предлагат гледки към Витоша.
Паркирането е решено с подземни гаражи, с опция за закупуването, на цени от 34 000 евро (66 498 лв.).
Технически характеристики:
- конструкция - стоманобетонна, монолитна конструкция;
- хидроизолационна система в целия сутерен, както и на тавани и тераси;
- топлоизолация на фасадата - 12 см EPS с декоративна облицовка от системата Caparol Meldorfer (клинкерни тухли);
- покривна изолация 12 см XPS;
- общи части с настилки от гранитогрес във вид на естествен камък, тавани - гипсокартон с LED осветление;
- асансьори - Orona;
- металопластмасова 6-камерна дограма Deceuninck, троен стъклопакет;
- домофонна система за контролиран достъп;
- отопление на ток с предвидена инсталация за термопомпа.
Жилищата ще разполагат с индивидуална система за рекуперация, която осигурява обмен на въздуха, като това позволява постоянен поток от чист и свеж въздух. Използва се както през студения, така и през топлия сезон.
Отстояния:
- 1.6 км от най-големия търговски център в столицата - Ring Mall Sofia;
- 300 м от парк "Въртопо II";
- 2 км от парк "Студентски";
- 500 м от автобусна спирка;
- 3 км от метростанция "Младост";
- в района има магазини Фантастико, Кауфланд, LIDL;
- множество магазини, кафенета и заведения за хранене в кв. "Студентски град", който е в близост до обекта.
За допълнителна информация относно интересуващия Ви тип имот, моля свържете се с отговорния брокер по офертата.
На картата с червен маркер е указано приблизителното местоположение на имота/комплекса.
Покупка с ипотечен кредит от SUPER CREDIT
За покупка на този имот с ипотечен кредит ние препоръчваме услугите на нашия специализиран кредитен център SUPER CREDIT! “Супер Кредит” ООД с ЕИК205405378 е лицензиран кредитен консултант, регистриран с №BCI000038 от 12.02.2019 г., по реда на чл. 51 от Закона за кредитите за недвижими имоти на потребители (ЗКНИП).
SUPER CREDIT е част от нашата корпоративната група STOYANOV ENTERPRISES, в която участват редица водещи български компании, работещи в областта на продажбите, наемите и управлението на недвижими имоти, строителното предприемачество, мебелната индустрия и туризма.
В качеството си на лицензиран кредитен посредник, SUPER CREDIT поддържа официални договорни отношения с почти всички водещи банки и небанкови кредитни институции в България. Избирайки SUPER CREDIT за свой доверен консултант по ипотечно или друг вид финансиране, всеки наш клиент получава компетентна кредитна консултация, както и няколко оферти от различни банки, с цел да може да направи информиран избор, при най-изгодните за него условия. Клиентите на SUPER CREDIT могат да разчитат на професионално съдействие, както за получаване на богат избор от оферти, предложени от различни финансиращи институции, така и на безпристрастно анализиране на предложените на клиентите оферти, с цел отсяване на офертите с най-добри добри условия за клиента. При анализа на офертите за кредит се вземат под внимание следните показатели: лихви, процент на самоучастие, общи разходи по кредита, застраховки, срок на погасяване, ясни и прозрачни условия на финансиране с цел максимална защита на интереса на клиента, както към момента на получаване на кредита, така и през целия срок до неговото пълно изплащане.
SUPER CREDIT може да осигури на клиентите на SUPER ИМОТИ, също и професионални консултации, както и пълно съдействие за получаване и на други видове кредити като потребителски, инвестиционни, лизингови и др.
SUPER CREDIT може да Ви съдейства и относно рефинансиране на Ваши съществуващи кредити и преместване на кредитната Ви експозиция в друга банка, при по-добри условия.
Всички услуги на SUPER CREDIT за клиентите-кредитополучатели са АБСОЛЮТНО БЕЗПЛАТНИ!
За повече информация относно ипотечното финансиране, моля свържете се с отговорния консултант по тази оферта или разгледайте сайта на SUPER CREDIT.

