REF#Kbs 134715 / Тристаен апартамент / кв. Дружба 1 / до метростанция "Софийска света гора" / гр. София / Софийска област / България / Продажба На картата
Тип имот
Тристаен апартамент
Местоположение
кв. Дружба 1 / София / България
Етажност
10
Етаж
5
Асансьор
да
Спални
2
Бани
1
Обща площ
132 м²
Общи части
10 м²
Застроена площ
122 м²
Получен Акт 16
Цена 282 000 €
551 544 лв.
2 136 €/м²
4 178 лв./м²
Всички разходи по сделката за сметка на купувача
Запитване за повече информация или оглед
Консултант / Офис Източни, София
Разстояния от имота до други важни обекти
- Център на града: 9 км
- Летище : 1 км
- Магазин за хранителни стоки: 1 км
- Спирка: 500 м
- Болница: 2 км
- Училище: 1 км
Гледки от имота
- Гледка към планината
Отопление
- Климатици
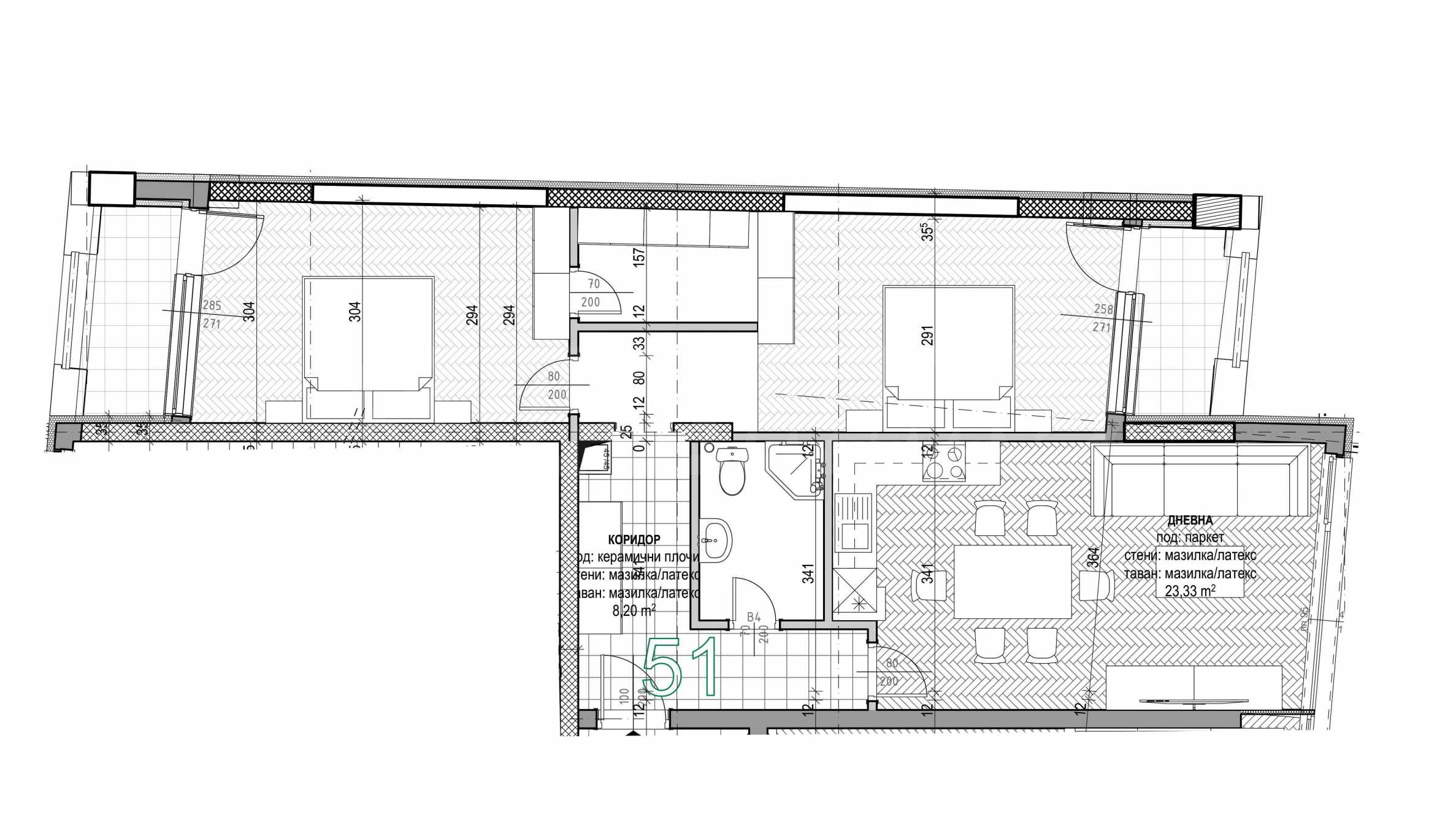
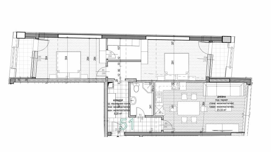
Жилището е с чиста площ от 132 кв.м и включва:
-входно предверие;
-просторна дневна с кухня;
-две самостоятелни спални, всяка със собствена баня и тоалетна;
-допълнителна баня към дневната зона;
-два балкона тип лоджия.
Разпределението е удобно както за семейно ползване, така и за инвестиция с цел отдаване под наем.
Апартаментът е с двустранно изложение, което осигурява светлина през целия ден и панорамни гледки към Витоша и Стара планина.
Сградата е изпълнена със съвременни материали – тухли Wienerberger, петкамерна дограма с четирисезонен стъклопакет и 10 см топлоизолация, гарантиращи енергийна ефективност клас „А“. Общите части са завършени с гранит, а за удобството на живущите са предвидени два асансьора ORONA.
Сградата предлага сигурност и спокойствие чрез 24-часова охрана и контролиран достъп. На разположение са две подземни нива с паркоместа с комфортни габарити, подходящи и за SUV автомобили. Възможност за закупуване на покрито паркомясто на цена 25 000 евро.
Състояние:
Апартаментът се предлага по БДС (шпакловка и замазка) с изградена тръбна система за климатици във всяко помещение. При желание може да бъде завършен по индивидуален проект.
Локация:
В близост до Летище София, с бърз достъп до центъра на града, бизнес зоните и основните транспортни артерии. В района има спирки на градски транспорт с автобусни линии №10, №8 и №4.
Предимства на имота:
• функционално разпределение с две спални със собствени бани;
• двустранно изложение с панорамни гледки;
• нова сграда с висок клас материали и Акт 16;
• сигурност – 24-часова охрана и контролиран достъп;
• възможност за покрито паркомясто (25 000 евро);
• отлична локация с удобни транспортни връзки (автобуси №10, №8 и №4).
Очакваме Вашето запитване
Ако желаете да организирате оглед на имот, който Ви интересува, или да посетите някой от нашите офиси, моля свържете се с нас. За да уговорите ден и час за среща или оглед, можете да се обадите на посочения в обявата телефон или да изпратите запитване чрез електронната поща. Нашият консултант ще Ви съдейства с всички необходими подробности и ще уговори удобно за Вас време.
Търсите подходящия за Вас имот?
Не се колебайте да се свържете с нас и да ни разкажете за Вашите нужди и предпочитания. Нашият екип ще проведе задълбочено проучване на пазара, за да Ви предложи имоти, които точно отговарят на Вашите критерии. Разполагаме с изключително портфолио от висококачествени и ексклузивни жилища, които са достъпни само за нашите клиенти. За да сте първите, които ще получите информация за тях – свържете се с нас.
Допълнителни услуги
Като ценен клиент на нашата компания, Вие ще имате привилегията да ползвате напълно безплатно услугите на нашия опитен юридически екип. В допълнение, предлагаме комплексни решения, включващи имуществена застраховка, безплатна финансова консултация, както и изгодни условия за финансиране. Нашите услуги се разпростират и в сферата на препродажбата, отдаването под наем и управлението на имоти. Осигуряваме висококачествени ремонтни дейности и обзавеждане чрез специализирани фирми, които са част от нашата корпоративна група и са наши дългогодишни професионални партньори.
На картата с червен маркер е указано приблизителното местоположение на имота/комплекса.
Покупка с ипотечен кредит от SUPER CREDIT
За покупка на този имот с ипотечен кредит ние препоръчваме услугите на нашия специализиран кредитен център SUPER CREDIT! “Супер Кредит” ООД с ЕИК205405378 е лицензиран кредитен консултант, регистриран с №BCI000038 от 12.02.2019 г., по реда на чл. 51 от Закона за кредитите за недвижими имоти на потребители (ЗКНИП).
SUPER CREDIT е част от нашата корпоративната група STOYANOV ENTERPRISES, в която участват редица водещи български компании, работещи в областта на продажбите, наемите и управлението на недвижими имоти, строителното предприемачество, мебелната индустрия и туризма.
В качеството си на лицензиран кредитен посредник, SUPER CREDIT поддържа официални договорни отношения с почти всички водещи банки и небанкови кредитни институции в България. Избирайки SUPER CREDIT за свой доверен консултант по ипотечно или друг вид финансиране, всеки наш клиент получава компетентна кредитна консултация, както и няколко оферти от различни банки, с цел да може да направи информиран избор, при най-изгодните за него условия. Клиентите на SUPER CREDIT могат да разчитат на професионално съдействие, както за получаване на богат избор от оферти, предложени от различни финансиращи институции, така и на безпристрастно анализиране на предложените на клиентите оферти, с цел отсяване на офертите с най-добри добри условия за клиента. При анализа на офертите за кредит се вземат под внимание следните показатели: лихви, процент на самоучастие, общи разходи по кредита, застраховки, срок на погасяване, ясни и прозрачни условия на финансиране с цел максимална защита на интереса на клиента, както към момента на получаване на кредита, така и през целия срок до неговото пълно изплащане.
SUPER CREDIT може да осигури на клиентите на SUPER ИМОТИ, също и професионални консултации, както и пълно съдействие за получаване и на други видове кредити като потребителски, инвестиционни, лизингови и др.
SUPER CREDIT може да Ви съдейства и относно рефинансиране на Ваши съществуващи кредити и преместване на кредитната Ви експозиция в друга банка, при по-добри условия.
Всички услуги на SUPER CREDIT за клиентите-кредитополучатели са АБСОЛЮТНО БЕЗПЛАТНИ!
За повече информация относно ипотечното финансиране, моля свържете се с отговорния консултант по тази оферта или разгледайте сайта на SUPER CREDIT.

