Тип имот
Тристаен апартамент
Местоположение
кв. Люлин 8 / София / България
Етажност
6
Етаж
2
Асансьор
да
Спални
2
Бани
2
Обща площ
98.44 м²
Общи части
16.54 м²
Застроена площ
81.90 м²
Цена 184 464 €
360 780 лв.
1 874 €/м²
3 665 лв./м²
Без комисиона от купувача
Запитване за повече информация или оглед
Консултант / Офис Централен SUPRIMMO, София
Разстояния от имота до други важни обекти
- Център на града: 5 км
- Летище : 13 км
Гледки от имота
- Гледка към вътрешен двор
Строителство
- Стоманобетонна конструкция
Отопление
- Климатици
- Парно на ток
Планирано завършване на сградата - 12.2026 г.
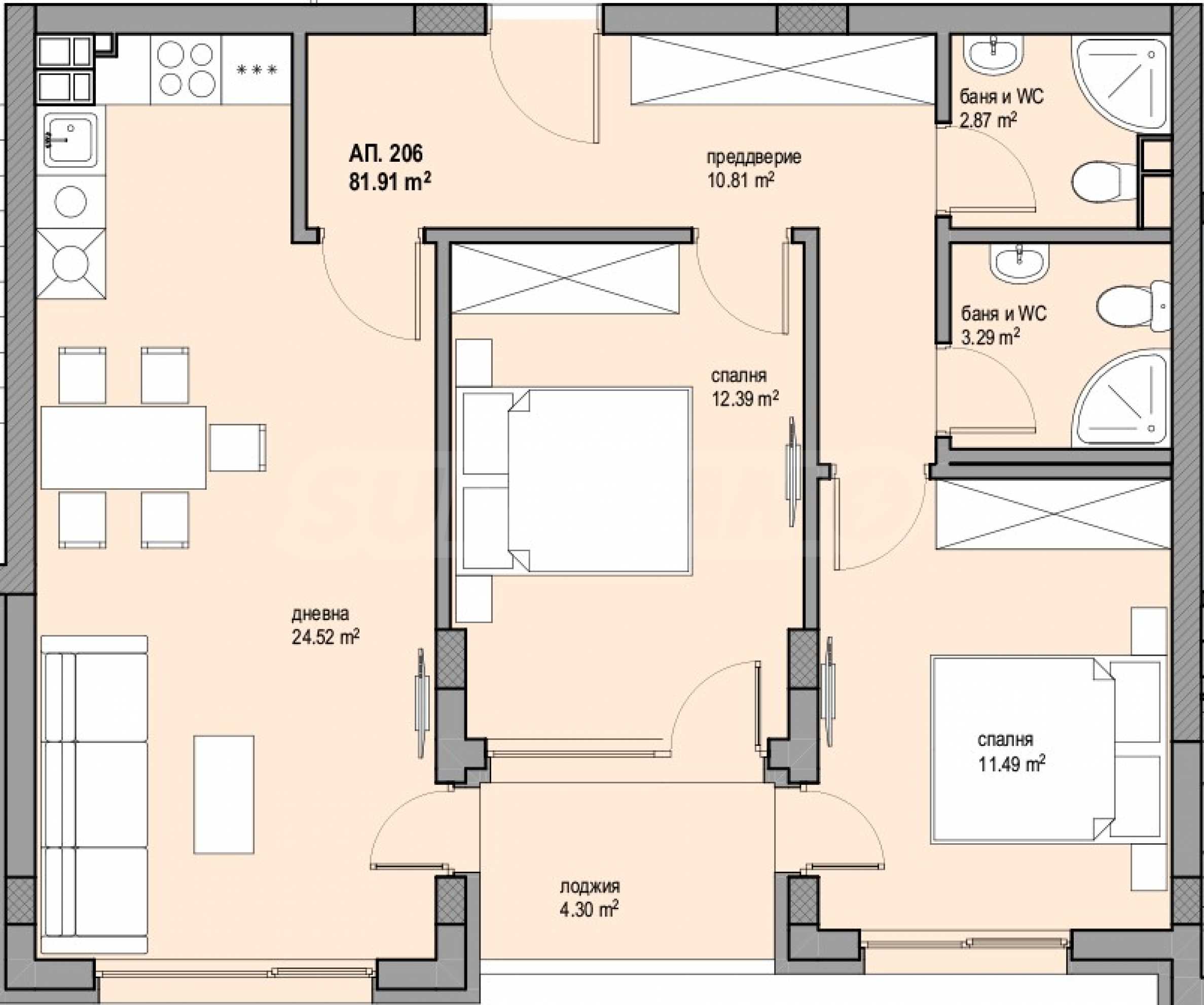
Имотът от 98.44 кв.м е разположен на 2-ри етаж във вход "Б" и има благоприятно изложение юг/запад. Състои се от антре, две бани с тоалетни, дневна с кухня, две спални, тераса с излаз от трите стаи.
Апартаментите в сградата се издават в степен на завършеност по БДС:
- PVC дограма с шесткамерен, немски профил с троен стъклопакет, с едно нискоемисионно стъкло;
- входна апартаментна врата - блиндирана, с висок клас секретна брава;
- отопление посредством електрическа енергия с изпълнени изводи за климатици;
- завършени стени и тавани до гипсова мазилка с положени в ръбовете алуминиеви ъглопротектори; тавани на неотопляеми помещения, които граничат с отопляеми, с положена топлоизолация от XPS екструдиран пенополистирен; в баните, тоалетни и мокри помещения с изпълнена варо-циментова мазилка;
- циментова замазка по пода; тераси с настилка от гранитогрес;
- монтирано апартаментно табло, разположено в близост до входната врата на жилището;
- слаботокови инсталации – изпълнена по проект с монтирана слаботокова кутия при входната врата;
- окабеляване за СОТ във всеки апартамент;
- видеодомофонна инсталация - изпълнено окабеляване, видеодомофони в апартаментите и монтирано видеодомофонно табло до входната врата;
- монтирани електромери.
Сградата се намира в непосредствена близост до главните столични пътни артерии – бул. "Сливница", бул. "Пенчо Владигеров", ул. "Филиповско шосе" и Околовръстен път. На 5 км е от Лъвов мост и Централна Гара. Кварталът е с добре изградена транспортна инфраструктура и се обслужва от всички видове градски транспорт: метростанция "Сливница", автобуси 82, 108, 309, 83, 49, 54, 47, 48, 42 и тролейбус 6.
В близост е до детски градини – ОДЗ №139 Панорама, ДГ №73 Маргарита, ОДЗ №31 Люлин и учебни заведения – 56 СУ "Проф. Константин Иречек",137 СУ Ангел Кънчев. В района има и различи вериги супермаркети – HIT Max, Metro, Фантастико, Billa, Технополис, Praktiker, а за любителите на разходките – Западен парк, Северен парк, с бърз достъп до екопътека "Пътека на здравето" – Банкя и Конна база "ген. Крум Лекарски" – Божурище.
За сградата
Сградата ще се откроява с атрактивна фасада с клинкерни плочки.
Състои се от 2 входа и 6 надземни етажа, разпределени по следния начин:
- складовите помещения са в сутеренния етаж, където и паркирането е решено с очертани единични паркоместа, двойни гаражни клетки, както и с външни паркоместа;
- партерен етаж – 2 търговски помещения, два апартамента и гаражи;
- от втори и до шести жилищен етаж – двустайни и тристайни апартаменти с функционално разпределение.
- монолитна, стоманобетонна безгредова конструкция на фундаментна плоча;
- с хидроизолации на основите на сградата - система Kryton international Inc. Krystol Waterstop System;
- зидарии с керамични тухли на WIENERBERGER;
- външни ограждащи стени - керамични тухли Porotherm 25 см и топлоизолационна система /пенополистирол EPS/;
- за вътрешни тухлени стени - керамични тухли Porotherm 12 см, с шумоизолация между апартаментите;
- плосък покрив с положени пластове по детайл - пароизолация, топлоизолация от екструдиран пенополистирол - XPS, армирана замазка с наклон, два пласта рулонна битумна хидроизолация; без термомостове по конструктивните елементи;
- общи части - гранитогрес или естествен камък;
- асансьори с луксозни кабини с автоматични врати.
Ако желаете да организирате оглед на имот, който Ви интересува, или да посетите някой от нашите офиси, моля свържете се с нас. За да уговорите ден и час за среща или оглед, можете да се обадите на посочения в обявата телефон или да изпратите запитване чрез електронната поща. Нашият консултант ще Ви съдейства с всички необходими подробности и ще уговори удобно за Вас време.
Търсите подходящия за Вас имот?
Не се колебайте да се свържете с нас и да ни разкажете за Вашите нужди и предпочитания. Нашият екип ще проведе задълбочено проучване на пазара, за да Ви предложи имоти, които точно отговарят на Вашите критерии. Разполагаме с изключително портфолио от висококачествени и ексклузивни жилища, които са достъпни само за нашите клиенти. За да сте първите, които ще получите информация за тях – свържете се с нас.
Допълнителни услуги
Като ценен клиент на нашата компания, Вие ще имате привилегията да ползвате напълно безплатно услугите на нашия опитен юридически екип. В допълнение, предлагаме комплексни решения, включващи имуществена застраховка, безплатна финансова консултация, както и изгодни условия за финансиране. Нашите услуги се разпростират и в сферата на препродажбата, отдаването под наем и управлението на имоти. Осигуряваме висококачествени ремонтни дейности и обзавеждане чрез специализирани фирми, които са част от нашата корпоративна група и са наши дългогодишни професионални партньори.
На картата с червен маркер е указано приблизителното местоположение на имота/комплекса.
Покупка с ипотечен кредит от SUPER CREDIT
За покупка на този имот с ипотечен кредит ние препоръчваме услугите на нашия специализиран кредитен център SUPER CREDIT! “Супер Кредит” ООД с ЕИК205405378 е лицензиран кредитен консултант, регистриран с №BCI000038 от 12.02.2019 г., по реда на чл. 51 от Закона за кредитите за недвижими имоти на потребители (ЗКНИП).
SUPER CREDIT е част от нашата корпоративната група STOYANOV ENTERPRISES, в която участват редица водещи български компании, работещи в областта на продажбите, наемите и управлението на недвижими имоти, строителното предприемачество, мебелната индустрия и туризма.
В качеството си на лицензиран кредитен посредник, SUPER CREDIT поддържа официални договорни отношения с почти всички водещи банки и небанкови кредитни институции в България. Избирайки SUPER CREDIT за свой доверен консултант по ипотечно или друг вид финансиране, всеки наш клиент получава компетентна кредитна консултация, както и няколко оферти от различни банки, с цел да може да направи информиран избор, при най-изгодните за него условия. Клиентите на SUPER CREDIT могат да разчитат на професионално съдействие, както за получаване на богат избор от оферти, предложени от различни финансиращи институции, така и на безпристрастно анализиране на предложените на клиентите оферти, с цел отсяване на офертите с най-добри добри условия за клиента. При анализа на офертите за кредит се вземат под внимание следните показатели: лихви, процент на самоучастие, общи разходи по кредита, застраховки, срок на погасяване, ясни и прозрачни условия на финансиране с цел максимална защита на интереса на клиента, както към момента на получаване на кредита, така и през целия срок до неговото пълно изплащане.
SUPER CREDIT може да осигури на клиентите на SUPER ИМОТИ, също и професионални консултации, както и пълно съдействие за получаване и на други видове кредити като потребителски, инвестиционни, лизингови и др.
SUPER CREDIT може да Ви съдейства и относно рефинансиране на Ваши съществуващи кредити и преместване на кредитната Ви експозиция в друга банка, при по-добри условия.
Всички услуги на SUPER CREDIT за клиентите-кредитополучатели са АБСОЛЮТНО БЕЗПЛАТНИ!
За повече информация относно ипотечното финансиране, моля свържете се с отговорния консултант по тази оферта или разгледайте сайта на SUPER CREDIT.

