Тип имот
Тристаен апартамент
Местоположение
кв. Младост 4 / София / България
Етажност
10
Етаж
8
Асансьор
да
Спални
2
Бани
2
Обща площ
141.69 м²
Общи части
19.87 м²
Застроена площ
121.82 м²
Цена 332 972 €
651 237 лв.
2 350 €/м²
4 596 лв./м²
Без комисиона от купувача
Запитване за повече информация или оглед
Консултант / Офис Цар Асен, София (PROPERTY.BG)
Разстояния от имота до други важни обекти
- Летище : 9.9 км
Гледки от имота
- Гледка към парк
Строителство
- Тухла
Отопление
- Климатици
- Парно на газ
В района има всички удобства като магазини и супермаркети, училища и детски градини, спирки на градски транспорт, удобства за спорт и отдих.
Сградата е 10-етажна и се състои от три входа А, Б и В.
Има възможност за закупуване на паркоместа и гаражи.
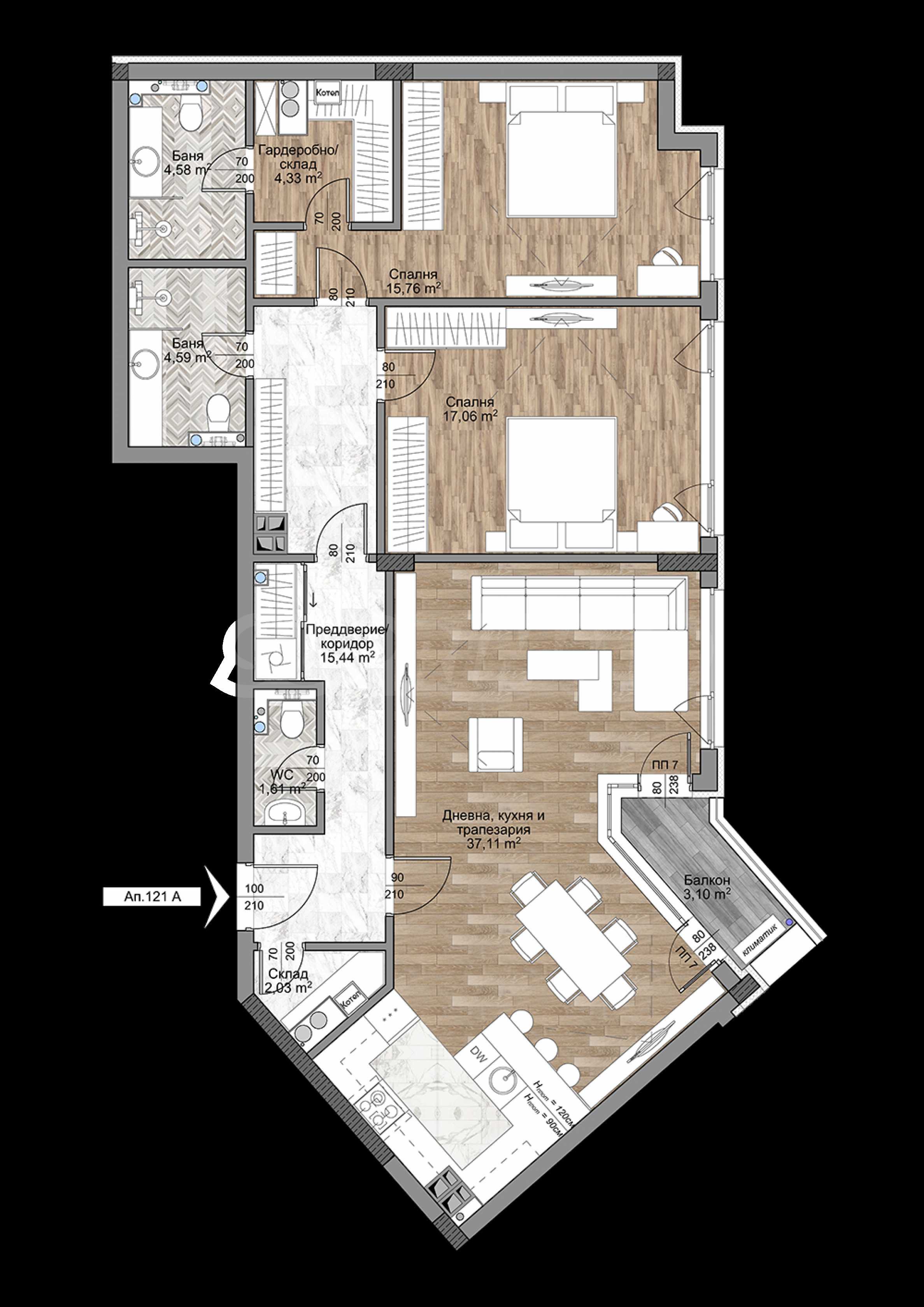
Апартаментът е тристаен, с обща площ 141.69 кв.м. (нетна площ 121.82 кв.м. + общи части 19.87 кв.м.) и е разположен на осми етаж.
Разпределение:
- коридор;
- дневна с кухня и трапезария;
- килер;
- две спални;
- две бани с тоалетни;
- тоалетна
- тераса.
Жилището се предлага за продажба качествено завършено по БДС, на шпакловка и замазка.
Технически характеристики:
Висок клас на строителството с най-модерни технологии и материали при изграждането, тухли Винербергер, петкамерна дограма, асансьори висок клас. Общите части са изпълнени луксозно, а настилката е от естествен камък гранит. Отоплението е на газ.
Етап на завършеност:
- ВиК инсталации /изпълнени на ниво тапа/;
- Електроинсталации, звънчево-домофона инсталация, ТВ инсталация, мълниезащитна инсталация – всичките в напълно завършен вид;
- Отоплителна инсталация - на газ;
- Вентилационна инсталация;
- Гладка вътрешна мазилка с шпакловка;
- Бани и санитарни възли на мазилка и замазка;
- Вътрешна стандартна дограма;
- Външна ПВЦ- дограма със стъклопакет;
- Блиндирани входни врати;
- Общи части в напълно завършен вид.
Схема на плащане:
- Предварителен договор – 40%
- Акт 14 – 30%
- Акт 16 – 30%
Очакваме Вашето запитване
Ако желаете да организирате оглед на имот, който Ви интересува, или да посетите някой от нашите офиси, моля свържете се с нас. За да уговорите ден и час за среща или оглед, можете да се обадите на посочения в обявата телефон или да изпратите запитване чрез електронната поща. Нашият консултант ще Ви съдейства с всички необходими подробности и ще уговори удобно за Вас време.
Търсите подходящия за Вас имот?
Не се колебайте да се свържете с нас и да ни разкажете за Вашите нужди и предпочитания. Нашият екип ще проведе задълбочено проучване на пазара, за да Ви предложи имоти, които точно отговарят на Вашите критерии. Разполагаме с изключително портфолио от висококачествени и ексклузивни жилища, които са достъпни само за нашите клиенти. За да сте първите, които ще получите информация за тях – свържете се с нас.
Допълнителни услуги
Като ценен клиент на нашата компания, Вие ще имате привилегията да ползвате напълно безплатно услугите на нашия опитен юридически екип. В допълнение, предлагаме комплексни решения, включващи имуществена застраховка, безплатна финансова консултация, както и изгодни условия за финансиране. Нашите услуги се разпростират и в сферата на препродажбата, отдаването под наем и управлението на имоти. Осигуряваме висококачествени ремонтни дейности и обзавеждане чрез специализирани фирми, които са част от нашата корпоративна група и са наши дългогодишни професионални партньори. - тераса.
На картата с червен маркер е указано приблизителното местоположение на имота/комплекса.
Покупка с ипотечен кредит от SUPER CREDIT
За покупка на този имот с ипотечен кредит ние препоръчваме услугите на нашия специализиран кредитен център SUPER CREDIT! “Супер Кредит” ООД с ЕИК205405378 е лицензиран кредитен консултант, регистриран с №BCI000038 от 12.02.2019 г., по реда на чл. 51 от Закона за кредитите за недвижими имоти на потребители (ЗКНИП).
SUPER CREDIT е част от нашата корпоративната група STOYANOV ENTERPRISES, в която участват редица водещи български компании, работещи в областта на продажбите, наемите и управлението на недвижими имоти, строителното предприемачество, мебелната индустрия и туризма.
В качеството си на лицензиран кредитен посредник, SUPER CREDIT поддържа официални договорни отношения с почти всички водещи банки и небанкови кредитни институции в България. Избирайки SUPER CREDIT за свой доверен консултант по ипотечно или друг вид финансиране, всеки наш клиент получава компетентна кредитна консултация, както и няколко оферти от различни банки, с цел да може да направи информиран избор, при най-изгодните за него условия. Клиентите на SUPER CREDIT могат да разчитат на професионално съдействие, както за получаване на богат избор от оферти, предложени от различни финансиращи институции, така и на безпристрастно анализиране на предложените на клиентите оферти, с цел отсяване на офертите с най-добри добри условия за клиента. При анализа на офертите за кредит се вземат под внимание следните показатели: лихви, процент на самоучастие, общи разходи по кредита, застраховки, срок на погасяване, ясни и прозрачни условия на финансиране с цел максимална защита на интереса на клиента, както към момента на получаване на кредита, така и през целия срок до неговото пълно изплащане.
SUPER CREDIT може да осигури на клиентите на SUPER ИМОТИ, също и професионални консултации, както и пълно съдействие за получаване и на други видове кредити като потребителски, инвестиционни, лизингови и др.
SUPER CREDIT може да Ви съдейства и относно рефинансиране на Ваши съществуващи кредити и преместване на кредитната Ви експозиция в друга банка, при по-добри условия.
Всички услуги на SUPER CREDIT за клиентите-кредитополучатели са АБСОЛЮТНО БЕЗПЛАТНИ!
За повече информация относно ипотечното финансиране, моля свържете се с отговорния консултант по тази оферта или разгледайте сайта на SUPER CREDIT.

