Тип имот
Двустаен апартамент
Местоположение
кв. Бояна / София / България
Клас на сградата/комплекса
Висок стандартен
Етажност
3
Етаж
1
Спални
1
Бани
1
Паркоместа на закрито
1
Обща площ
76 м²
Общи части
12 м²
Застроена площ
64 м²
Получен Акт 16
Цена 190 000 € (без ДДС)
371 608 лв. (без ДДС)
2 500 €/м² (без ДДС)
4 890 лв./м² (без ДДС)
Запитване за повече информация или оглед
Консултант / Офис ''Вишнева'', София
Разстояния от имота до други важни обекти
- Център на града: 8 км
- Летище : 17 км
Отопление
- Парно на газ
Климатизация
- Климатизация
Разположен в престижния квартал, този комплекс съчетава отлична локация, висококачествени материали и модерни технологии, което го прави идеален избор за хора, търсещи комфортен живот в уредена градска среда с близост до природата. Благодарение на удобния достъп до бул. "България" и Околовръстния път, можете бързо да достигнете центъра на града, докато близостта до парк "Витоша" осигурява чист въздух и красиви гледки.
Параметри на имота
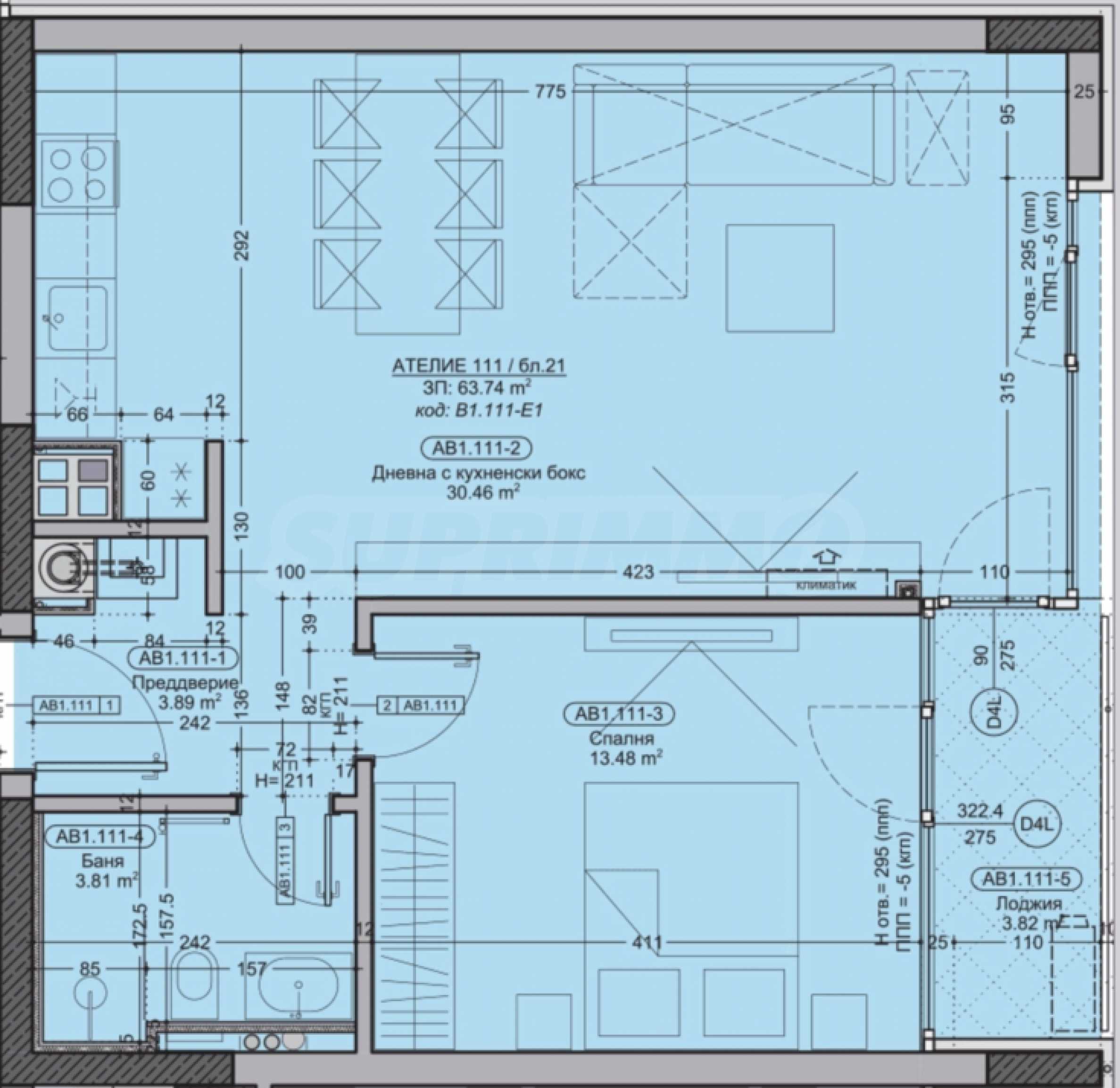
Апартаментът се намира на 1-ви етаж, с изложение север/изток и има обща площ 76.34 кв.м. Състои се от антре, баня с тоалетна, спалня, всекидневна с кухня, тераса тип лоджия, с излаз от дневната и спалнята.
Предлага се в степен на завършеност по БДС:
- подове с шумоизолация Copersound P-TEX;
- ключове и контакти Legrand Valena Life;
- PVC дограма с троен стъклопакет Kömmerling;
- отопление на газ с котел Bosch и окабеляване за климатици;
- входна врата Solid, модел iDoor 20-23;
- тераса с мразоустойчив гранитогрес.
Допълнително към имота може да се закупи подземно паркомясто на цена 68,454 лв. (35 000 евро) без ДДС.
Посочената цена е без ДДС.
За комплекса
Комплексът, състоящ се от 8 сгради с общо 204 апартамента и ателиета, е проектиран с функционални разпределения и панорамни гледки към града и планината. Зелените пространства между сградите са оформени с градини, алеи за разходки, зони за отдих и детски площадки. За допълнителен комфорт са предвидени фитнес, ресторант, контролиран достъп и жива охрана. Подземният паркинг предлага удобни паркоместа и гаражи.
Архитектурата на комплекса е в хармония със заобикалящата среда, а фасадите са изпълнени с естествени материали като дърво и камък, осигурявайки модерен облик, отлична изолация и дълготрайност.
Качество и устойчивост в строителството:
- монолитна стоманобетонна конструкция;
- преградни стени от керамични тухли Wienerberger;
- 10 см топлоизолация EPS и фасада с естествен камък и клинкер;
- XPS топлоизолация на покрива;
- луксозни общи части с гранит и асансьори Kone за 8 души;
- озеленяване с автоматична поливна система;
- автоматична гаражна врата с дистанционно управление.
Ако желаете да организирате оглед на имот, който Ви интересува, или да посетите някой от нашите офиси, моля свържете се с нас. За да уговорите ден и час за среща или оглед, можете да се обадите на посочения в обявата телефон или да изпратите запитване чрез електронната поща. Нашият консултант ще Ви съдейства с всички необходими подробности и ще уговори удобно за Вас време.
Търсите подходящия за Вас имот?
Не се колебайте да се свържете с нас и да ни разкажете за Вашите нужди и предпочитания. Нашият екип ще проведе задълбочено проучване на пазара, за да Ви предложи имоти, които точно отговарят на Вашите критерии. Разполагаме с изключително портфолио от висококачествени и ексклузивни жилища, които са достъпни само за нашите клиенти. За да сте първите, които ще получите информация за тях – свържете се с нас.
Допълнителни услуги
Като ценен клиент на нашата компания, Вие ще имате привилегията да ползвате напълно безплатно услугите на нашия опитен юридически екип. В допълнение, предлагаме комплексни решения, включващи имуществена застраховка, безплатна финансова консултация, както и изгодни условия за финансиране. Нашите услуги се разпростират и в сферата на препродажбата, отдаването под наем и управлението на имоти. Осигуряваме висококачествени ремонтни дейности и обзавеждане чрез специализирани фирми, които са част от нашата корпоративна група и са наши дългогодишни професионални партньори.
Покупка с ипотечен кредит от SUPER CREDIT
За покупка на този имот с ипотечен кредит ние препоръчваме услугите на нашия специализиран кредитен център SUPER CREDIT! “Супер Кредит” ООД с ЕИК205405378 е лицензиран кредитен консултант, регистриран с №BCI000038 от 12.02.2019 г., по реда на чл. 51 от Закона за кредитите за недвижими имоти на потребители (ЗКНИП).
SUPER CREDIT е част от нашата корпоративната група STOYANOV ENTERPRISES, в която участват редица водещи български компании, работещи в областта на продажбите, наемите и управлението на недвижими имоти, строителното предприемачество, мебелната индустрия и туризма.
В качеството си на лицензиран кредитен посредник, SUPER CREDIT поддържа официални договорни отношения с почти всички водещи банки и небанкови кредитни институции в България. Избирайки SUPER CREDIT за свой доверен консултант по ипотечно или друг вид финансиране, всеки наш клиент получава компетентна кредитна консултация, както и няколко оферти от различни банки, с цел да може да направи информиран избор, при най-изгодните за него условия. Клиентите на SUPER CREDIT могат да разчитат на професионално съдействие, както за получаване на богат избор от оферти, предложени от различни финансиращи институции, така и на безпристрастно анализиране на предложените на клиентите оферти, с цел отсяване на офертите с най-добри добри условия за клиента. При анализа на офертите за кредит се вземат под внимание следните показатели: лихви, процент на самоучастие, общи разходи по кредита, застраховки, срок на погасяване, ясни и прозрачни условия на финансиране с цел максимална защита на интереса на клиента, както към момента на получаване на кредита, така и през целия срок до неговото пълно изплащане.
SUPER CREDIT може да осигури на клиентите на SUPER ИМОТИ, също и професионални консултации, както и пълно съдействие за получаване и на други видове кредити като потребителски, инвестиционни, лизингови и др.
SUPER CREDIT може да Ви съдейства и относно рефинансиране на Ваши съществуващи кредити и преместване на кредитната Ви експозиция в друга банка, при по-добри условия.
Всички услуги на SUPER CREDIT за клиентите-кредитополучатели са АБСОЛЮТНО БЕЗПЛАТНИ!
За повече информация относно ипотечното финансиране, моля свържете се с отговорния консултант по тази оферта или разгледайте сайта на SUPER CREDIT.

