Тип имот
Четиристаен апартамент
(Многостаен апартамент)
Местоположение
кв. Център / София / България
Етажност
8
Етаж
7
Асансьор
да
Спални
3
Бани
2
да
Обща площ
170.01 м²
Общи части
27.14 м²
Застроена площ
142.87 м²
Цена 433 526 € (без ДДС)
847 903 лв. (без ДДС)
2 550 €/м² (без ДДС)
4 987 лв./м² (без ДДС)
Без комисиона от купувача
Запитване за повече информация или оглед
Консултант / Офис Вишнева, София
Разстояния от имота до други важни обекти
- Летище : 8 км
Гледки от имота
- Гледка към града
Отопление
- ТЕЦ
Климатизация
- Климатици стандартни
Пред Акт 14, Акт 16 се очаква до края на септември 2026 г.
Сградата е в процес на строителство, отличава се с модернистична и изчистена визия, а улицата е с много добра инфраструктура и околна среда, разположена между:
- бул. "Мария Луиза";
- бул. "Христо Ботев";
- бул. "Сливница".
Проектът е дело на инвеститор с дългогодишен опит и редица реализирани проекти в София.
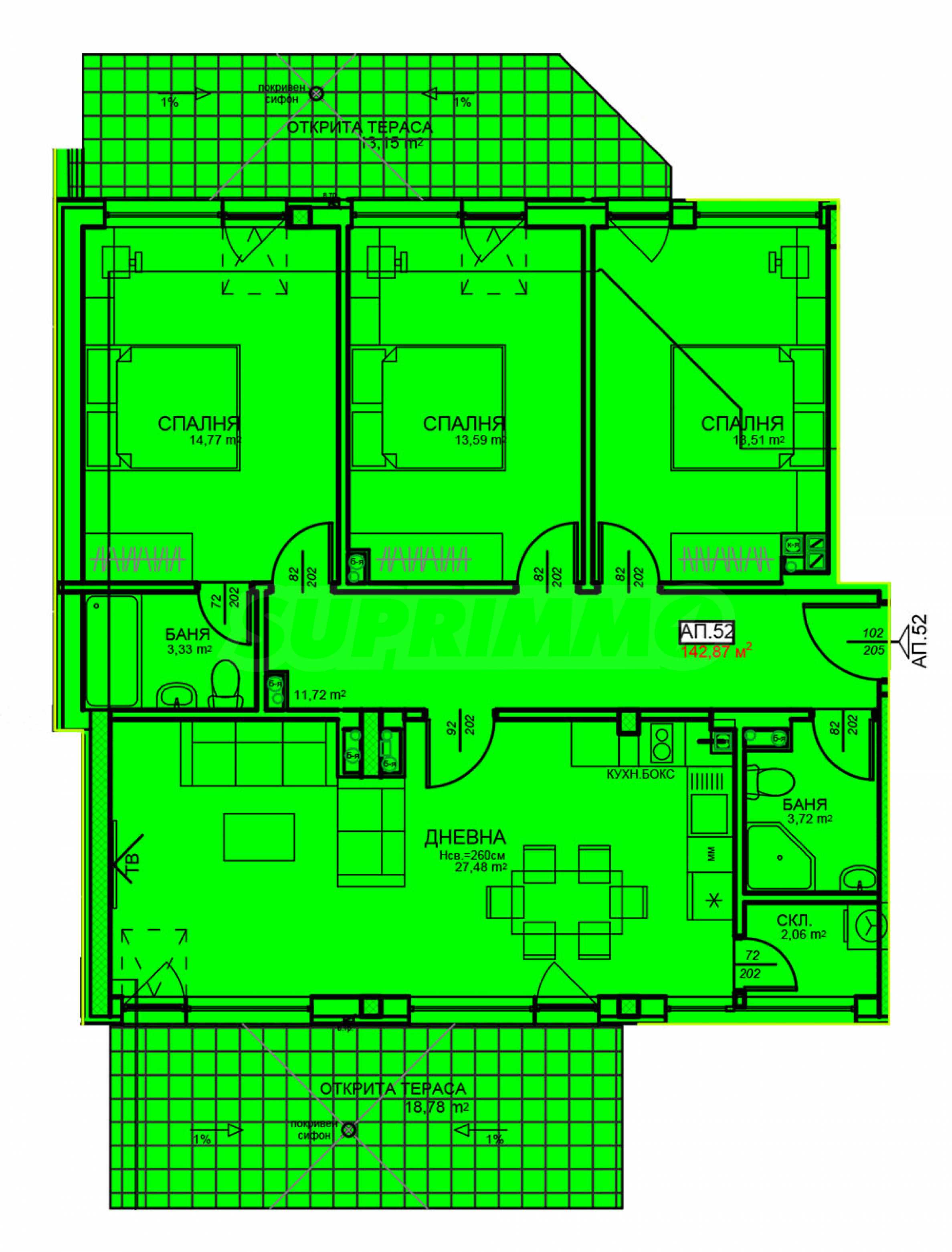
Апартамент №52 е разположен на ет. 7.
Разпределение:
- антре/коридор;
- две бани с тоалетни;
- дневна с кухненски бокс: 27.48 кв.м, със склад;
- тераса от 18.78 кв.м към дневната;
- спалня 1: 13.51 кв.м;
- спалня 2: 13.59 кв.м;
- спалня 3: 14.77 кв.м;
- тераса - 13.15 кв.м с излаз от трите спални.
Апартаментите в сградата отговарят на всички съвременни изисквания за функционалност и уют. Във всички жилища са проектирани просторни дневни и спални помещения с френски прозорци позволяващи влизането на изобилно количество дневна светлина. Всеки апартамент е снабден със складово помещение/мокро помещение и излаз на тераса с минимална дълбочина от 1.50 м, позволяваща комфортното разположение на маса с четири стола.
Гъвкави схеми на плащане - при резервационен депозит от 3 000 Евро и 20% от стойността на имота на Предварителен договор.
Към имота може да се закупи паркомясто или гараж.
Технически характеристики:
- модерна фасада - комбинация от силиконова мазилка, стъкло и фасадна облицовка;
- енергоефективна шесткамерна дограма с трислоен стъклопакет;
- висококачествена топлоизолация с каменна вата 10 см и пароизолация на покривните пространства;
- парапети от стъкло;
- луксозно завършени общи части с монтаж на енергоефективно осветление;
- два високоскоростни пътнически асансьора пригодени за хора с увреждания;
- отопление на ТЕЦ.
Ако желаете да организирате оглед на имот, който Ви интересува, или да посетите някой от нашите офиси, моля свържете се с нас. За да уговорите ден и час за среща или оглед, можете да се обадите на посочения в обявата телефон или да изпратите запитване чрез електронната поща. Нашият консултант ще Ви съдейства с всички необходими подробности и ще уговори удобно за Вас време.
Търсите подходящия за Вас имот?
Не се колебайте да се свържете с нас и да ни разкажете за Вашите нужди и предпочитания. Нашият екип ще проведе задълбочено проучване на пазара, за да Ви предложи имоти, които точно отговарят на Вашите критерии. Разполагаме с изключително портфолио от висококачествени и ексклузивни жилища, които са достъпни само за нашите клиенти. За да сте първите, които ще получите информация за тях – свържете се с нас.
Допълнителни услуги
Като ценен клиент на нашата компания, Вие ще имате привилегията да ползвате напълно безплатно услугите на нашия опитен юридически екип. В допълнение, предлагаме комплексни решения, включващи имуществена застраховка, безплатна финансова консултация, както и изгодни условия за финансиране. Нашите услуги се разпростират и в сферата на препродажбата, отдаването под наем и управлението на имоти. Осигуряваме висококачествени ремонтни дейности и обзавеждане чрез специализирани фирми, които са част от нашата корпоративна група и са наши дългогодишни професионални партньори.
На картата с червен маркер е указано приблизителното местоположение на имота/комплекса.
Покупка с ипотечен кредит от SUPER CREDIT
За покупка на този имот с ипотечен кредит ние препоръчваме услугите на нашия специализиран кредитен център SUPER CREDIT! “Супер Кредит” ООД с ЕИК205405378 е лицензиран кредитен консултант, регистриран с №BCI000038 от 12.02.2019 г., по реда на чл. 51 от Закона за кредитите за недвижими имоти на потребители (ЗКНИП).
SUPER CREDIT е част от нашата корпоративната група STOYANOV ENTERPRISES, в която участват редица водещи български компании, работещи в областта на продажбите, наемите и управлението на недвижими имоти, строителното предприемачество, мебелната индустрия и туризма.
В качеството си на лицензиран кредитен посредник, SUPER CREDIT поддържа официални договорни отношения с почти всички водещи банки и небанкови кредитни институции в България. Избирайки SUPER CREDIT за свой доверен консултант по ипотечно или друг вид финансиране, всеки наш клиент получава компетентна кредитна консултация, както и няколко оферти от различни банки, с цел да може да направи информиран избор, при най-изгодните за него условия. Клиентите на SUPER CREDIT могат да разчитат на професионално съдействие, както за получаване на богат избор от оферти, предложени от различни финансиращи институции, така и на безпристрастно анализиране на предложените на клиентите оферти, с цел отсяване на офертите с най-добри добри условия за клиента. При анализа на офертите за кредит се вземат под внимание следните показатели: лихви, процент на самоучастие, общи разходи по кредита, застраховки, срок на погасяване, ясни и прозрачни условия на финансиране с цел максимална защита на интереса на клиента, както към момента на получаване на кредита, така и през целия срок до неговото пълно изплащане.
SUPER CREDIT може да осигури на клиентите на SUPER ИМОТИ, също и професионални консултации, както и пълно съдействие за получаване и на други видове кредити като потребителски, инвестиционни, лизингови и др.
SUPER CREDIT може да Ви съдейства и относно рефинансиране на Ваши съществуващи кредити и преместване на кредитната Ви експозиция в друга банка, при по-добри условия.
Всички услуги на SUPER CREDIT за клиентите-кредитополучатели са АБСОЛЮТНО БЕЗПЛАТНИ!
За повече информация относно ипотечното финансиране, моля свържете се с отговорния консултант по тази оферта или разгледайте сайта на SUPER CREDIT.

