Тип имот
Двустаен апартамент
Местоположение
кв. Манастирски ливади - Изток / София / България
Клас на сградата/комплекса
Висок стандартен
Етажност
5
Асансьор
да
Спални
1
Бани
1
Обща площ
65.97 м²
Общи части
7.64 м²
Застроена площ
58.33 м²
Цена 221 676 €
433 561 лв.
3 360 €/м²
6 572 лв./м²
Без комисиона от купувача
Запитване за повече информация или оглед
Консултант / Офис Вишнева, София
Разстояния от имота до други важни обекти
- Център на града: 4 км
- Летище : 16 км
- Магазин за хранителни стоки: 100 м
- Спирка: 200 м
Строителство
- Високи тавани (над 2.85 м)
- Тухла
Отопление
- Парно на газ
- Термопомпа
Климатизация
- Термопомпа
Районът се отличава с чист въздух и прекрасни изгледи към Витоша, като разполага с четири детски градини, частна детска кухня, две училища с изучаване на чужди езици, хранителни магазини, офиси на спедиторски дружества. В близост до комплекса е планирано изграждане на 27 декара линеен парк.
Финална фаза на строителство - пред Акт 16. Очаквано завършване - април 2026 г.
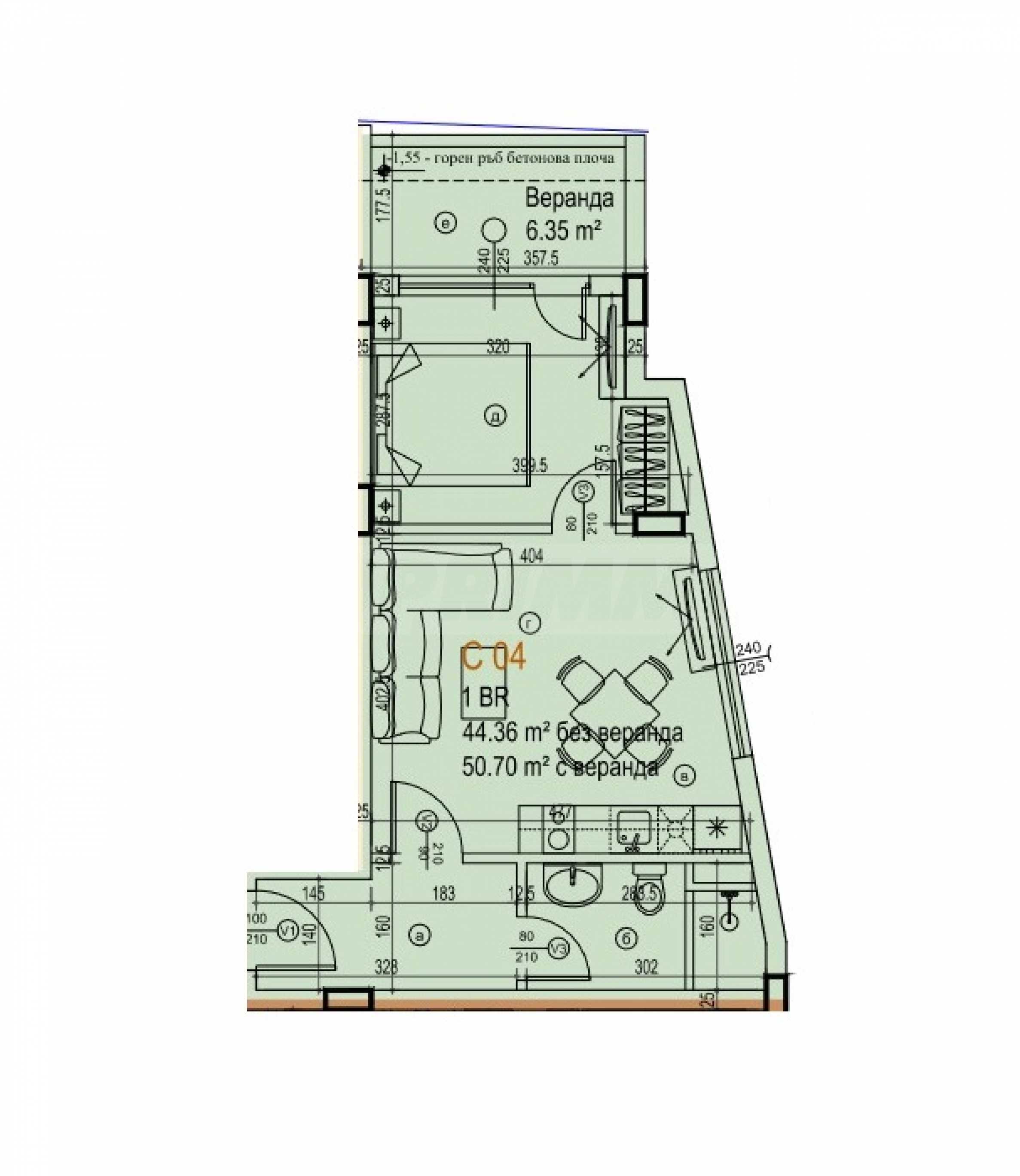
Жилището е ситуирано на партерен етаж и предлага 65.97 кв.м обща площ, от които 7.64 кв.м общи части. Високи тавани в целото жилище: 3.20 м.
Състои се от:
- всекидневна с трапезария и кухненски бокс;
- веранда;
- спалня;
- баня с тоалетна.
Хармония с природата и градската среда
Сградата впечатлява с елегантен дизайн с изчистени линии, комбинация от травертин и дърво, и френски прозорци, които не само гарантират изобилие от естествена светлина, но и откриват гледки към Витоша и зелените площи около комплекса. На разположение на собствениците ще има богато озеленен двор с алеи за разходки и места за отдих, оформени с висока и ниска растителност и водни ефекти, както и ограничен достъп за повече сигурност и спокойствие. Паркирането е решено с подземни паркоместа, а на ниво партер ще се помещава голям супермаркет.
Нисък процент общи части
Имотите в комплекса са проектирани с мисъл за удобството и комфорта на своите обитатели. Налични за продажба са едностайни, двустайни, тристайни и четиристайни апартаменти, като тези на последния етаж разполагат с просторни тераси, а имотите на ниво партер имат собствен двор. Всяко жилище е с просторни и слънчеви помещения с големи френски прозорци, а в пода има възможност да се изгради система за водно подово отопление и охлаждане. Имотите се предлагат в степен на завършеност по БДС.
Висок клас материали в строителството:
- вентилируема фасада - с топлоизолация от вата, алуминий с дървесен ефект и италиански плоскости Laminam;
- тухли Wienerberger;
- двойна зидария с шумоизолация между отделните апартаменти;
- шумоизолация на пода;
- алуминиева дограма Reynaers MasterLine 8 с 3 стъкла и топъл дистанционер;
- луксозни общи части с камък травертин;
- асансьори Schindler със стени, облицовани в осветен камък оникс;
- възможност за изграждане на система за водно подово отопление и охлаждане.
Очакваме Вашето запитване
Ако желаете да организирате оглед на имот, който Ви интересува, или да посетите някой от нашите офиси, моля свържете се с нас. За да уговорите ден и час за среща или оглед, можете да се обадите на посочения в обявата телефон или да изпратите запитване чрез електронната поща. Нашият консултант ще Ви съдейства с всички необходими подробности и ще уговори удобно за Вас време.
Търсите подходящия за Вас имот?
Не се колебайте да се свържете с нас и да ни разкажете за Вашите нужди и предпочитания. Нашият екип ще проведе задълбочено проучване на пазара, за да Ви предложи имоти, които точно отговарят на Вашите критерии. Разполагаме с изключително портфолио от висококачествени и ексклузивни жилища, които са достъпни само за нашите клиенти. За да сте първите, които ще получите информация за тях – свържете се с нас.
Допълнителни услуги
Като ценен клиент на нашата компания, Вие ще имате привилегията да ползвате напълно безплатно услугите на нашия опитен юридически екип. В допълнение, предлагаме комплексни решения, включващи имуществена застраховка, безплатна финансова консултация, както и изгодни условия за финансиране. Нашите услуги се разпростират и в сферата на препродажбата, отдаването под наем и управлението на имоти. Осигуряваме висококачествени ремонтни дейности и обзавеждане чрез специализирани фирми, които са част от нашата корпоративна група и са наши дългогодишни професионални партньори.
На картата с червен маркер е указано приблизителното местоположение на имота/комплекса.
Видео
Покупка с ипотечен кредит от SUPER CREDIT
За покупка на този имот с ипотечен кредит ние препоръчваме услугите на нашия специализиран кредитен център SUPER CREDIT! “Супер Кредит” ООД с ЕИК205405378 е лицензиран кредитен консултант, регистриран с №BCI000038 от 12.02.2019 г., по реда на чл. 51 от Закона за кредитите за недвижими имоти на потребители (ЗКНИП).
SUPER CREDIT е част от нашата корпоративната група STOYANOV ENTERPRISES, в която участват редица водещи български компании, работещи в областта на продажбите, наемите и управлението на недвижими имоти, строителното предприемачество, мебелната индустрия и туризма.
В качеството си на лицензиран кредитен посредник, SUPER CREDIT поддържа официални договорни отношения с почти всички водещи банки и небанкови кредитни институции в България. Избирайки SUPER CREDIT за свой доверен консултант по ипотечно или друг вид финансиране, всеки наш клиент получава компетентна кредитна консултация, както и няколко оферти от различни банки, с цел да може да направи информиран избор, при най-изгодните за него условия. Клиентите на SUPER CREDIT могат да разчитат на професионално съдействие, както за получаване на богат избор от оферти, предложени от различни финансиращи институции, така и на безпристрастно анализиране на предложените на клиентите оферти, с цел отсяване на офертите с най-добри добри условия за клиента. При анализа на офертите за кредит се вземат под внимание следните показатели: лихви, процент на самоучастие, общи разходи по кредита, застраховки, срок на погасяване, ясни и прозрачни условия на финансиране с цел максимална защита на интереса на клиента, както към момента на получаване на кредита, така и през целия срок до неговото пълно изплащане.
SUPER CREDIT може да осигури на клиентите на SUPER ИМОТИ, също и професионални консултации, както и пълно съдействие за получаване и на други видове кредити като потребителски, инвестиционни, лизингови и др.
SUPER CREDIT може да Ви съдейства и относно рефинансиране на Ваши съществуващи кредити и преместване на кредитната Ви експозиция в друга банка, при по-добри условия.
Всички услуги на SUPER CREDIT за клиентите-кредитополучатели са АБСОЛЮТНО БЕЗПЛАТНИ!
За повече информация относно ипотечното финансиране, моля свържете се с отговорния консултант по тази оферта или разгледайте сайта на SUPER CREDIT.

