Тип имот
Четиристаен апартамент
(Многостаен апартамент)
Местоположение
кв. Христо Смирненски / Пловдив / България
Етажност
8
Етаж
8
Асансьор
да
Спални
3
Бани
1
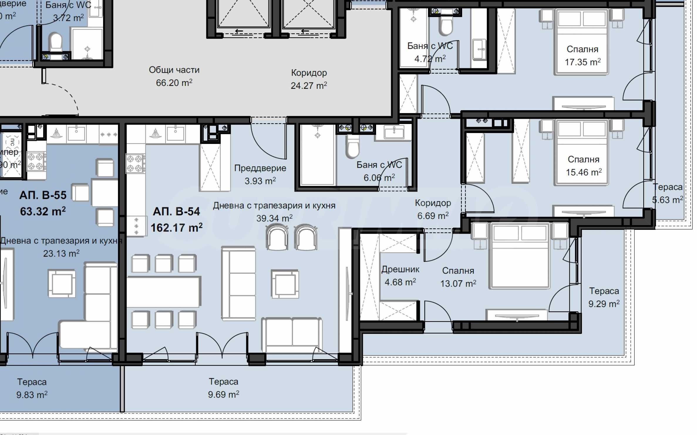
Обща площ
199.24 м²
Общи части
33.23 м²
Застроена площ
166.01 м²
Цена 338 708 €
662 455 лв.
1 700 €/м²
3 325 лв./м²
Запитване за повече информация или оглед
Старши консултант / Офис Пловдив
Разстояния от имота до други важни обекти
- Център на града: 5.2 км
- Летище : 19.2 км
Гледки от имота
- Гледка към града
Строителство
- Стоманобетонна конструкция
- Тухла
Строителството стартира края на септември 2024 г., а Акт 16 се очаква до края на септември 2027 г.
Комплексът разполага с 6000 кв.м озеленени площи, проектирани детски площадки, алейна мрежа с растителност, зони за отдих, площадни пространства. На територията на комплекса ще намерите още търговски комплекс, аптека, дентален център, фитнес, ресторант и голям хранителен магазин, което ще направи живота Ви по-удобен и комфортен. Предлага едностайни, двустайни, тристайни и четиристайни апартаменти. Паркирането е 100% осигурено с надземни и подземни паркоместа, което е удобство за всички жители.
Имотът с обща площ от 199,24 кв.м е разположен на 8-и етаж от 8.
Жилищата се предават в степен на завършеност по БДС:
• гипсова мазилка на стени и тавани;
• подово покритие с циментова замазка;
• алуминиевата дограма, гарантираща перфектна шумо- и топлоизолация на всеки апартамент;
• входна блиндирана врата.
За тези, които търсят повече пространство предлагаме възможност за обединяване на жилища и луксозни довършителни работи.
Технически характеристики:
• монолитна стоманено-бетонна конструкция, енергийно ефективни тухли и окачена вентилируема фасадна система, осигуряваща висока техническа устойчивост;
• зарядни станции за електрическите автомобили, чудесно допълнение за стабилно и приятно живеене;
• подготовка за умен дом и подово отопление, което ще осигури комфорт и уют;
• луксозно изпълнение на общите части - използваните материали са гранит, мрамор, желязо и дървен фурнир;
• контролиран достъп и видеонаблюдение 24/7, предлагащи допълнителна сигурност и спокойствие за Вас и Вашето семейство;
• всеки вход е оборудван с високотехнологични електрически асансьори;
• видеодомофон за управление на електрическата брава на входната врата на сградата;
• предвидено място за поставяне на външно климатично тяло и безшумни канализациони тръби.
Схема на плащане:
• 15% на предварителен договор;
• 75% на Акт 15;
• 10% на Акт 16.
Има възможност и за други варианти на схеми на плащане.
Очакваме Вашето запитване
Ако желаете да организирате оглед на имот, който Ви интересува, или да посетите някой от нашите офиси, моля свържете се с нас. За да уговорите ден и час за среща или оглед, можете да се обадите на посочения в обявата телефон или да изпратите запитване чрез електронната поща. Нашият консултант ще Ви съдейства с всички необходими подробности и ще уговори удобно за Вас време.
Търсите подходящия за Вас имот?
Не се колебайте да се свържете с нас и да ни разкажете за Вашите нужди и предпочитания. Нашият екип ще проведе задълбочено проучване на пазара, за да Ви предложи имоти, които точно отговарят на Вашите критерии. Разполагаме с изключително портфолио от висококачествени и ексклузивни жилища, които са достъпни само за нашите клиенти. За да сте първите, които ще получите информация за тях – свържете се с нас.
Допълнителни услуги
Като ценен клиент на нашата компания, Вие ще имате привилегията да ползвате напълно безплатно услугите на нашия опитен юридически екип. В допълнение, предлагаме комплексни решения, включващи имуществена застраховка, безплатна финансова консултация, както и изгодни условия за финансиране. Нашите услуги се разпростират и в сферата на препродажбата, отдаването под наем и управлението на имоти. Осигуряваме висококачествени ремонтни дейности и обзавеждане чрез специализирани фирми, които са част от нашата корпоративна група и са наши дългогодишни професионални партньори.
На картата с червен маркер е указано приблизителното местоположение на имота/комплекса.
Покупка с ипотечен кредит от SUPER CREDIT
За покупка на този имот с ипотечен кредит ние препоръчваме услугите на нашия специализиран кредитен център SUPER CREDIT! “Супер Кредит” ООД с ЕИК205405378 е лицензиран кредитен консултант, регистриран с №BCI000038 от 12.02.2019 г., по реда на чл. 51 от Закона за кредитите за недвижими имоти на потребители (ЗКНИП).
SUPER CREDIT е част от нашата корпоративната група STOYANOV ENTERPRISES, в която участват редица водещи български компании, работещи в областта на продажбите, наемите и управлението на недвижими имоти, строителното предприемачество, мебелната индустрия и туризма.
В качеството си на лицензиран кредитен посредник, SUPER CREDIT поддържа официални договорни отношения с почти всички водещи банки и небанкови кредитни институции в България. Избирайки SUPER CREDIT за свой доверен консултант по ипотечно или друг вид финансиране, всеки наш клиент получава компетентна кредитна консултация, както и няколко оферти от различни банки, с цел да може да направи информиран избор, при най-изгодните за него условия. Клиентите на SUPER CREDIT могат да разчитат на професионално съдействие, както за получаване на богат избор от оферти, предложени от различни финансиращи институции, така и на безпристрастно анализиране на предложените на клиентите оферти, с цел отсяване на офертите с най-добри добри условия за клиента. При анализа на офертите за кредит се вземат под внимание следните показатели: лихви, процент на самоучастие, общи разходи по кредита, застраховки, срок на погасяване, ясни и прозрачни условия на финансиране с цел максимална защита на интереса на клиента, както към момента на получаване на кредита, така и през целия срок до неговото пълно изплащане.
SUPER CREDIT може да осигури на клиентите на SUPER ИМОТИ, също и професионални консултации, както и пълно съдействие за получаване и на други видове кредити като потребителски, инвестиционни, лизингови и др.
SUPER CREDIT може да Ви съдейства и относно рефинансиране на Ваши съществуващи кредити и преместване на кредитната Ви експозиция в друга банка, при по-добри условия.
Всички услуги на SUPER CREDIT за клиентите-кредитополучатели са АБСОЛЮТНО БЕЗПЛАТНИ!
За повече информация относно ипотечното финансиране, моля свържете се с отговорния консултант по тази оферта или разгледайте сайта на SUPER CREDIT.

