REF#AP 122470 / Къща / с. Бистрица / Софийска област / България / Продажба На картата
Тип имот
Къща
(Вилa)
Местоположение
Бистрица / България
Етажност
2
Етаж
1
Спални
4
Бани
3
Гаражи
1
Площ на сградата
300 м²
Площ на парцела
933 м²
Получен Акт 16
Запитване за повече информация или оглед
Старши консултант / Офис Цар Асен, София (PROPERTY.BG)
Разстояния от имота до други важни обекти
- Планински лифт: 4 км
- Център на града: 12 км
- Летище : 12 км
- Магазин за хранителни стоки: 500 м
- Спирка: 900 м
- ЖП гара: 12 км
- Болница: 3 км
- Училище: 1 км
Гледки от имота
- Гледка към планината
Отопление
- Термопомпа
Представяме самостоятелна къща с двор и прекрасна панорама към Витоша. Къщата е със съвременна визия и архитектура и е проектирана максимално функционално с много внимание към детайла и отлично качество на използваните материали и технологии.
Имотът е с разгърната застроена площ (включваща гаража и верандата) от 300 кв.м, построен е в дворно място с площ от 933 кв.м.
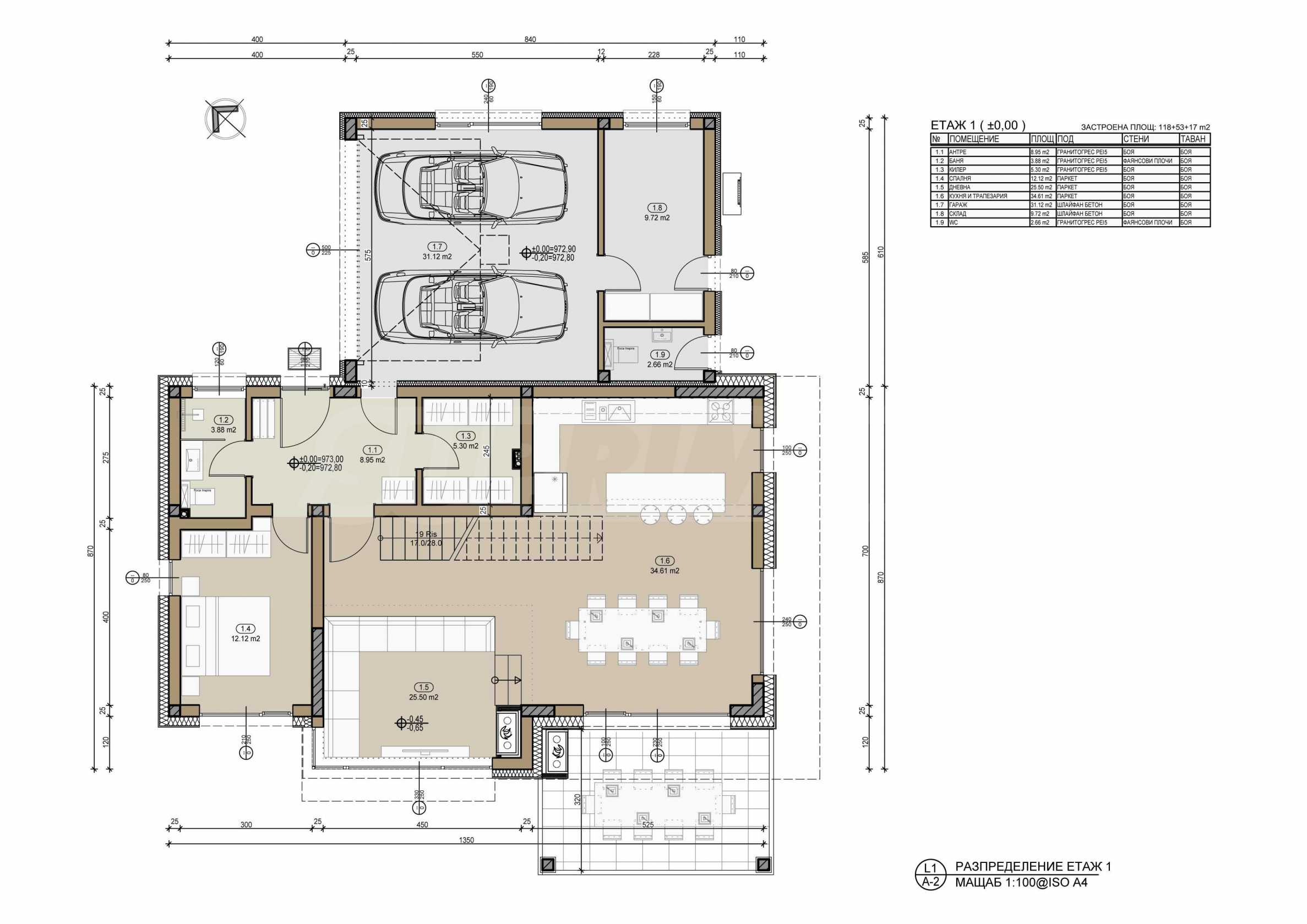
Разпределението е както следва:
- На първо ниво е разположено антре, дневна с трапезария и кухня, склад, санитарно помещение, спалня/кабинет и гараж със склад към него.
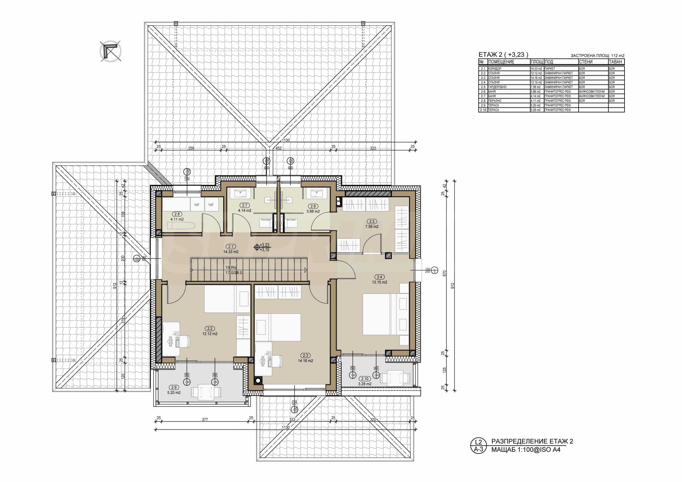
- На второ ниво се намират родителска спалня със самостоятелна баня с тоалетна, дрешник и тераса към нея, още две спални с обща баня и тераса, мокро помещение и коридор.
Къщата ще покрива изискванията за "нискоенергийни сгради", с външна топлоизолация на стените от 20 см и 35 см на покрива. Дограмата е висок клас с троен стъклопакет с нискоемисийно стъкло.
Отоплението е предвидено да бъде на термопомпа с подово отопление. Допълнително ще бъде изградена вентилационна система с рекуператор, който осигурява 24 часа свеж въздух в помещенията.
Къщата ще бъде издадена със следната степен на завършеност:
- водопровод и канализация до определени точки в различните помещения;
- подове - армирана замазка и вградена шумоизолация за помещенията на втория етаж;
- тавани и стени - фина шпакловка и ръбохранители за стени;
- домофонна уредба;
- озеленен двор;
- изводи за дворно осветление.
Очакваме Вашето запитване
Ако желаете да организирате оглед на имот, който Ви интересува, или да посетите някой от нашите офиси, моля свържете се с нас. За да уговорите ден и час за среща или оглед, можете да се обадите на посочения в обявата телефон или да изпратите запитване чрез електронната поща. Нашият консултант ще Ви съдейства с всички необходими подробности и ще уговори удобно за Вас време.
Търсите подходящия за Вас имот?
Не се колебайте да се свържете с нас и да ни разкажете за Вашите нужди и предпочитания. Нашият екип ще проведе задълбочено проучване на пазара, за да Ви предложи имоти, които точно отговарят на Вашите критерии. Разполагаме с изключително портфолио от висококачествени и ексклузивни жилища, които са достъпни само за нашите клиенти. За да сте първите, които ще получите информация за тях – свържете се с нас.
Допълнителни услуги
Като ценен клиент на нашата компания, Вие ще имате привилегията да ползвате напълно безплатно услугите на нашия опитен юридически екип. В допълнение, предлагаме комплексни решения, включващи имуществена застраховка, безплатна финансова консултация, както и изгодни условия за финансиране. Нашите услуги се разпростират и в сферата на препродажбата, отдаването под наем и управлението на имоти. Осигуряваме висококачествени ремонтни дейности и обзавеждане чрез специализирани фирми, които са част от нашата корпоративна група и са наши дългогодишни професионални партньори.
На картата с червен маркер е указано приблизителното местоположение на имота/комплекса.
Покупка с ипотечен кредит от SUPER CREDIT
За покупка на този имот с ипотечен кредит ние препоръчваме услугите на нашия специализиран кредитен център SUPER CREDIT! “Супер Кредит” ООД с ЕИК205405378 е лицензиран кредитен консултант, регистриран с №BCI000038 от 12.02.2019 г., по реда на чл. 51 от Закона за кредитите за недвижими имоти на потребители (ЗКНИП).
SUPER CREDIT е част от нашата корпоративната група STOYANOV ENTERPRISES, в която участват редица водещи български компании, работещи в областта на продажбите, наемите и управлението на недвижими имоти, строителното предприемачество, мебелната индустрия и туризма.
В качеството си на лицензиран кредитен посредник, SUPER CREDIT поддържа официални договорни отношения с почти всички водещи банки и небанкови кредитни институции в България. Избирайки SUPER CREDIT за свой доверен консултант по ипотечно или друг вид финансиране, всеки наш клиент получава компетентна кредитна консултация, както и няколко оферти от различни банки, с цел да може да направи информиран избор, при най-изгодните за него условия. Клиентите на SUPER CREDIT могат да разчитат на професионално съдействие, както за получаване на богат избор от оферти, предложени от различни финансиращи институции, така и на безпристрастно анализиране на предложените на клиентите оферти, с цел отсяване на офертите с най-добри добри условия за клиента. При анализа на офертите за кредит се вземат под внимание следните показатели: лихви, процент на самоучастие, общи разходи по кредита, застраховки, срок на погасяване, ясни и прозрачни условия на финансиране с цел максимална защита на интереса на клиента, както към момента на получаване на кредита, така и през целия срок до неговото пълно изплащане.
SUPER CREDIT може да осигури на клиентите на SUPER ИМОТИ, също и професионални консултации, както и пълно съдействие за получаване и на други видове кредити като потребителски, инвестиционни, лизингови и др.
SUPER CREDIT може да Ви съдейства и относно рефинансиране на Ваши съществуващи кредити и преместване на кредитната Ви експозиция в друга банка, при по-добри условия.
Всички услуги на SUPER CREDIT за клиентите-кредитополучатели са АБСОЛЮТНО БЕЗПЛАТНИ!
За повече информация относно ипотечното финансиране, моля свържете се с отговорния консултант по тази оферта или разгледайте сайта на SUPER CREDIT.

