Тип имот
Тристаен апартамент
Местоположение
кв. Христо Смирненски / Пловдив / България
Етажност
4
Етаж
4
Асансьор
да
Спални
2
Бани
2
Площ на тераса
40.95м²
Обща площ
171.50 м²
Общи части
20.72 м²
Застроена площ
150.78 м²
Цена 209 854 €
410 439 лв.
1 224 €/м²
2 393 лв./м²
Без комисиона от купувача
Запитване за повече информация или оглед
Старши консултант / Офис Пловдив
Разстояния от имота до други важни обекти
- Център на града: 3.8 км
- Летище : 16.7 км
Гледки от имота
- Гледка към града
Строителство
- Стоманобетонна конструкция
- Тухла
Отопление
- Климатици
Климатизация
- Климатици инверторни
- Климатици стандартни
БЕЗ КОМИСИОНА!
Комплексът разполага с различни типове просторни и светли апартаменти с функционални разпределения и добро изложение. Проектът включва 52 апартамента – едностайни, двустайни, тристайни и многостайни, 15 гаража, 40 паркоместа и градински парк. Ниски секции с по 4 до 6 апартамента на етаж, а на партерните нива жилищата са със собствен двор/веранда.
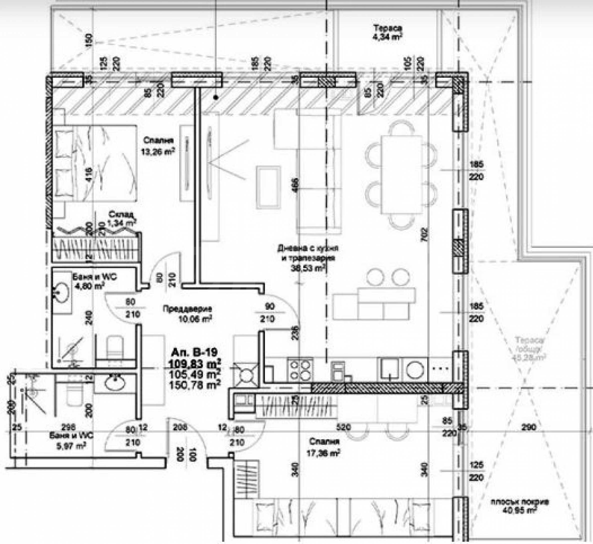
Имотът с обща площ от 171.50 кв.м с включени тераси 40.95 кв.м е разположен на 4-ти етаж от 4, с изложение изток-север.
Разпределение:
- просторна всекидневна с трапезария и кухненски бокс - 38.53 кв.м;
- две спални - 17.36 кв.м и 13.26 кв.м;
- антре - 10.06 кв.м;
- две бани с тоалетни;
- две панорамни тераси - 40.95 кв.м;
- килер/склад - 1.36 кв.м.
- стени и тавани - машинна гипсова мазилка, циментова замазка;
- тераси - гранитогрес;
- изградена ВиК инсталация до тапа;
- монтирани водомери с дистанционно отчитане;
- електроинсталация с ключове и контакти Legrand и Schneider, окабеляване за интернет и TV;
- висок клас входни блиндирани врати с механично заключване, висококачествено покритие и елегантна визия.
Всеки аспект на комплекса е насочен към съвременния начин на живот на новото поколение и неговия стандарт за идеален дом, който обединява природата с високотехнологичния комфорт. Животът тук е обгрижван с висок клас удобства – специално за жителите в комплекса е решено да се предостави и бизнес лоби с привлекателен интериорен дизайн, изцяло оборудвано за максимален комфорт.
Техническото изпълнение е с най-висококачествените съвременни системи и материали, които са гаранция за енергоефективност, сигурност, функционалност, естетика и комфорт:
- монолитна стоманобетонна конструкция;
- керамични тухли Wienerberger;
- фасада - облицовка от естествен камък, полимерна мазилка Ceresit;
- парапети от ковано желязо в съответствие с архитектурния проект;
- топлоизолация - Baumit - 10 см;
- френски прозорци за оптимално естествено осветление с дограма - Schüco, Германия - алуминиев профил с троен стъклопакет;
- входно фоайе, етажни площадки и стълбища с подова настилка от италиански гранит, окачен таван с LED осветление PHILIPS;
- високотехнологични асансьори;
- подземни входни и гаражни врати HÖRMANN;
- контролиран достъп и 24-часово видеонаблюдение.
Проектът е дело на доказан инвеститор на пазара с недвижими имоти.
За повече информация, моля свържете се с нас.
На картата с червен маркер е указано приблизителното местоположение на имота/комплекса.
Покупка с ипотечен кредит от SUPER CREDIT
За покупка на този имот с ипотечен кредит ние препоръчваме услугите на нашия специализиран кредитен център SUPER CREDIT! “Супер Кредит” ООД с ЕИК205405378 е лицензиран кредитен консултант, регистриран с №BCI000038 от 12.02.2019 г., по реда на чл. 51 от Закона за кредитите за недвижими имоти на потребители (ЗКНИП).
SUPER CREDIT е част от нашата корпоративната група STOYANOV ENTERPRISES, в която участват редица водещи български компании, работещи в областта на продажбите, наемите и управлението на недвижими имоти, строителното предприемачество, мебелната индустрия и туризма.
В качеството си на лицензиран кредитен посредник, SUPER CREDIT поддържа официални договорни отношения с почти всички водещи банки и небанкови кредитни институции в България. Избирайки SUPER CREDIT за свой доверен консултант по ипотечно или друг вид финансиране, всеки наш клиент получава компетентна кредитна консултация, както и няколко оферти от различни банки, с цел да може да направи информиран избор, при най-изгодните за него условия. Клиентите на SUPER CREDIT могат да разчитат на професионално съдействие, както за получаване на богат избор от оферти, предложени от различни финансиращи институции, така и на безпристрастно анализиране на предложените на клиентите оферти, с цел отсяване на офертите с най-добри добри условия за клиента. При анализа на офертите за кредит се вземат под внимание следните показатели: лихви, процент на самоучастие, общи разходи по кредита, застраховки, срок на погасяване, ясни и прозрачни условия на финансиране с цел максимална защита на интереса на клиента, както към момента на получаване на кредита, така и през целия срок до неговото пълно изплащане.
SUPER CREDIT може да осигури на клиентите на SUPER ИМОТИ, също и професионални консултации, както и пълно съдействие за получаване и на други видове кредити като потребителски, инвестиционни, лизингови и др.
SUPER CREDIT може да Ви съдейства и относно рефинансиране на Ваши съществуващи кредити и преместване на кредитната Ви експозиция в друга банка, при по-добри условия.
Всички услуги на SUPER CREDIT за клиентите-кредитополучатели са АБСОЛЮТНО БЕЗПЛАТНИ!
За повече информация относно ипотечното финансиране, моля свържете се с отговорния консултант по тази оферта или разгледайте сайта на SUPER CREDIT.

