Тип имот
Четиристаен апартамент
(Многостаен апартамент, Мезонет)
Местоположение
Боровец / България
Клас на сградата/комплекса
Луксозен
Етажност
5
Етаж
2-3
Асансьор
да
Спални
3
Бани
2
Обща площ
178.35 м²
Общи части
32.76 м²
Застроена площ
145.59 м²
Цена 338 865 € (без ДДС)
662 762 лв. (без ДДС)
1 900 €/м² (без ДДС)
3 716 лв./м² (без ДДС)
Без комисиона от купувача
Запитване за повече информация или оглед
Тийм лидер / Офис Централен SUPRIMMO, София
Разстояния от имота до други важни обекти
- Планински лифт: 2 км
- Център на града: 2 км
- Летище : 61 км
Гледки от имота
- Гледка към вътрешен двор
- Гледка към гора
- Гледка към планината
- Гледка към ски писта
Строителство
- Високи тавани (над 2.85 м)
- Изцяло обновена сграда
- Стоманобетонна конструкция
- Тухла
- Цялостно ремонтиран имот
Отопление
- Парно на газ
Проектът ще бъде изпълнен без компромиси и има амбицията да се превърне в една от най-реномираните и престижни резиденции в аристократичния планински курорт на България, основан от цар Фердинанд преди повече от 120 години. Проектът е свързан с цялостно преустройство на двете съществуващи сгради на бившия хотел "Зодиак" в курорта Боровец и превръщането му луксозна планинска резиденция с комфортни апартаменти и широка гама от удобства за своите обитатели.
С РАЗРЕШЕНИЕ ЗА СТРОЕЖ!
Планирано завършване - в края на 2026 г.
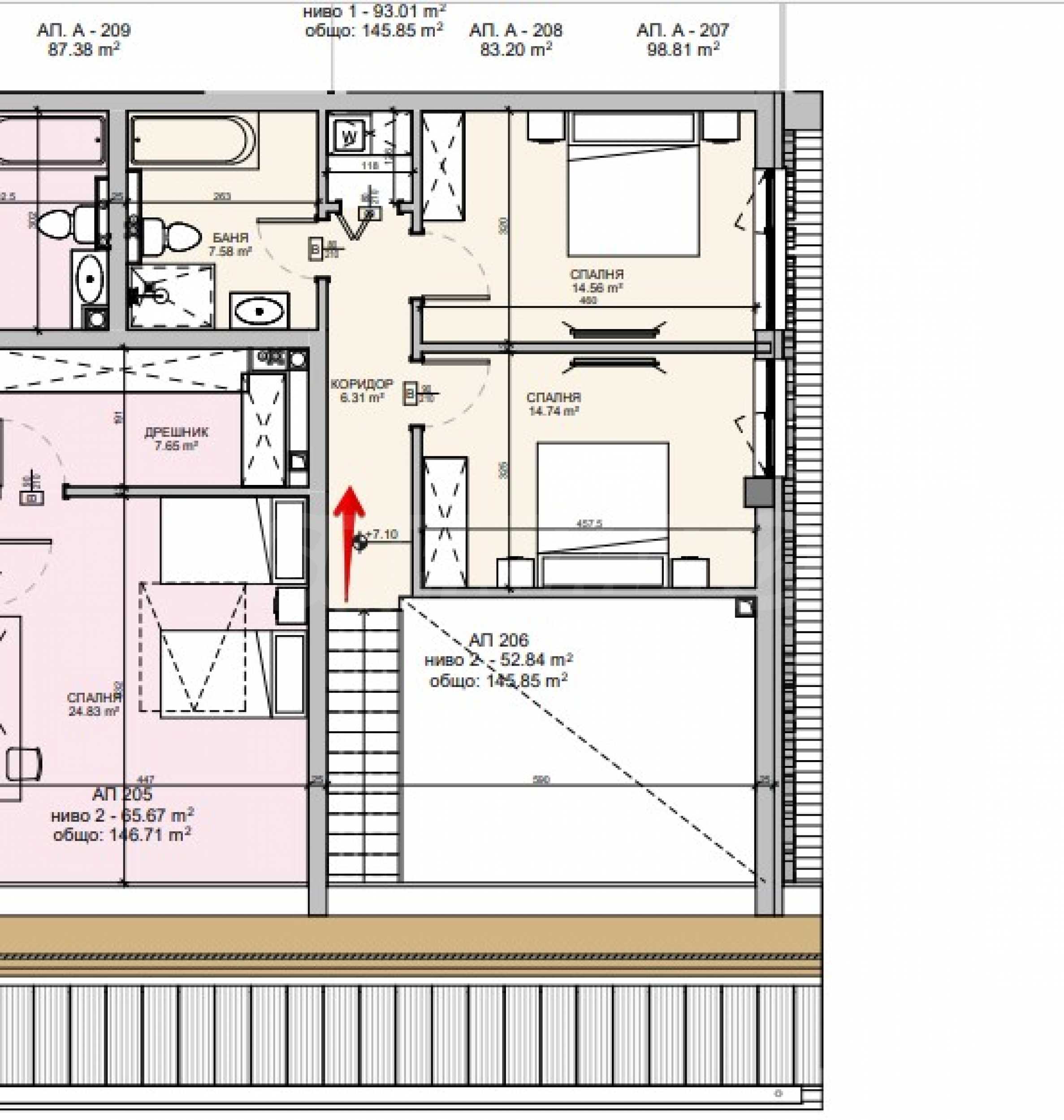
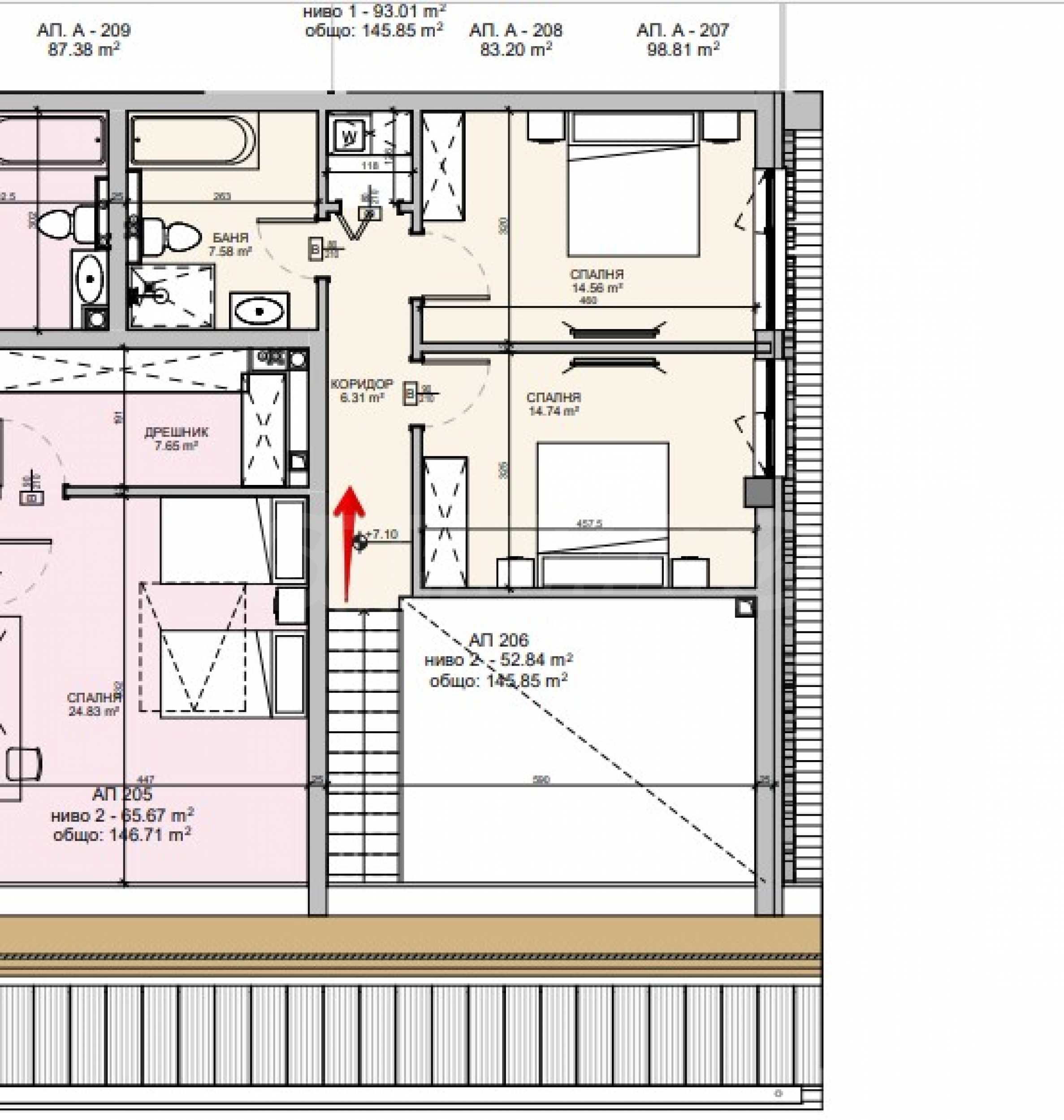
Имотът е ситуиран на 2-ри и 3-ти етаж и предлага 178.35 кв.м обща площ (нетна площ 145.59 кв.м + общи части 32.76 кв.м). Първият етаж се състои от антре, всекидневна с кухненски бокс, две спални, баня с тоалетна, отделна тоалетна, а ниво две разполага със спалня и баня с тоалетна.
Местоположение
Със своята уединена локация, на 1340 м надморска височина, Боровец предлага изключително чист въздух, а река Бистрица, която минава през целия курорт, има въздушно течение, което дава особена структура на въздуха и спомага за лечение и бързото възстановяване на човешкото здраве. Районът е идеално място за зимен и летен туризъм, ски, байкинг, планински поход, планинско бягане, скално катерене, парапланеризъм, конна езда. Разполага с 58 км различни ски писти и е подходящ както за начинаещи, така и за напреднали. Местоположението е с бърз достъп до центъра на курорта, на 900 м от кабинковия лифт и само на 50 м от 800-метрова ски писта за начинаещи.
Жилища с панорамни гледки - за лично ползване или инвестиция
Комплексът е планиран в три секции – две жилищни сгради и ресторант между тях, който ги свързва с топла връзка. Конструктивните височини са 2.50 - 2.60 метра за сграда Б и над 3.20 метра за сграда А. Планирани са 58 жилища с възможност за обединяване - студиа и апартаменти с една, две и три спални, някои от които разполагат с градински тераси, а други са от типа мезонет. Жилищата са внимателно проектирани с цел най-комфортно обитаване, а панорамното остъкляване на сградата допринася както за изобилие от естествена светлина, така и за прекрасни изгледи към спиращата дъха природна красота.
Апартаментите се предлагат в степен на завършване "до ключ" с готови настилки (паркет), стени, завършени и оборудвани бани; дървена, трислойна дограма, немски профил, с троен стъклопакет и алуминиева капачка, предпазваща дървото от студ и слънце за да служи дълги години; блиндирани входни врати и MDF интериорни врати, инсталирани радиатори и система Smart-home, включена в цената. Отоплението е предвидено с индивидуално парно на газ и радиатори.
7 Angels ще предложи и интегрирана smart homes система във всяко жилище, като може да избирате между два варианта.
Вариант 1 (базов) включва:
• Управление на газовия котел;
• Управление на алармената система по желание на клиента (с подготовка за включване на СОТ с опция за снимки при засечено движение и изпращане на изображението в реално време до собственика на имота);
• Пожароизвестяване;
• Welcome осветление на прага на всяко жилище;
• Управление на интернет и кабелна телевизия.
Вариант 2 включва:
• Управление на газовия котел;
• Управление на алармената система по желание на клиента (с подготовка за включване на СОТ с опция за снимки при засечено движение и изпращане на изображението в реално време до собственика на имота);
• Пожароизвестяване;
• Welcome осветление на прага на всяко жилище;
• Управление на интернет и кабелна телевизия;
• Автоматично движение на завеси;
• Изпълнение на всякакви други SMART HOME екстри по желание на клиента.
Всеки един собственик на имот в 7 Angels ще има достъп и до услугата Captive Portal, в която ще може да следи температурата в жилището и потреблението на енергия за своето жилище чрез дигитални електромер и газомер. За допълнително удобство и сигурност ще бъде използвана и система с QR кодове за достъп до паркинга и удобствата в модерния СПА център на комплекса.
Посочената цена е без ДДС.
Пълен спектър от изживявания
7 Angels ще бъде изграден по концепцията за Healthy Building с най-съвременни строителни технологии и решения за енергоефективност и благоприятна жилищна среда, a впечатляваща му визия в алпийски стил е вдъхновена от най-добрите ски курорти в Швейцария.
Архитектурната визия ще бъде подчертана с луксозно изпълнени общи части с асансьори KONE, а на разположение на обитателите ще има ресторант от премиален бранд, италианска кафе-сладкарница, скиорна, ултрамодерен уелнес и СПА център, който включва вътрешни и външни сауни, малък басейн с дифузери, парна баня и стаи за масаж, както и фитнес център с Kettler и Tehnogym фитнес уреди.
Предвиден е целодневен безплатен транспорт от комплекса до кабинковата станция, а в близост ще бъде изградена детска зона за игри и забавления.
7 Angels – когато природата лекува
7 Angels ще предложи не само най-съвременни удобства, но и близка среща с лечебните сили на Рила.
Комплексът ще бъде превърнат в отлично място за уединение и рекреация сред здравословна среда и кристално чист въздух. Боровец е традиционно място за лечение и рехабилитация при белодробни заболявания, а буйната река Бистрица, която тече в близост до локацията на 7 Angels, допълнително насища въздуха с кислород.
Енергията на това специално място ще бъде съчетана и с вещината на доказани лечители, практикуващи природна медицина, които ще гостуват регулярно в двата специално създадени за целта кабинета. Ще можете да се възползвате от уменията на специалисти по аюрведа, ирисова диагностика, юмейхо терапия и много други, което ще превърне времето, прекарано в 7 Angels, в едно преживяване за тялото и духа.
В 7 Angels Ви очаква едно пътуване към себе си, далеч от шума на града, заобиколени от вековната борова гора.
Ако пък активният отдих е това, от което имате нужда, 7 Angels предлага множество възможности за спорт в близост. В ход е проект за изграждане на множество велоалеи в района, които да предложат условия за колоездене в курорта и планината, а зимата ски пистата до комплекса е идеален вариант за начинаещи скиори и деца.
Възможност за покупка на собствено паркомясто в открития паркинг на комплекса или в закрития подземен гараж:
- надземни паркоместа - 8000 Евро без ДДС;
- подземни паркоместа - 15000 Евро без ДДС.
Стандартна схема на плащане:
- Резервационен депозит - 7000 до 11000 Евро в зависимост от типа на апартамента (депозитът пази имота резервиран до “първа копка”) - подписва се Предварителен договор в рамките на 14 дни след заплащане на резервационния депозит;
- 25% минус депозита - при подписване на Предварителен договор;
- 25% при поставена дограма;
- 30% при поставена фасада;
- 20% на Акт 16.
Такса поддръжка
Задължителната такса поддръжка е фиксирана за първите 2 години в размер на 15 Евро/м2 без ДДС от общата площ на жилището с включени общи части.
Със своята устойчива и различна концепция, 7 Angels осигурява възможност за живот в здравословна среда, с първокласни удобства и в близост до ски пистите и лифтовете на курорта. Свържете се с нас за повече информация и професионална консултация!
Видео
Покупка с ипотечен кредит от SUPER CREDIT
За покупка на този имот с ипотечен кредит ние препоръчваме услугите на нашия специализиран кредитен център SUPER CREDIT! “Супер Кредит” ООД с ЕИК205405378 е лицензиран кредитен консултант, регистриран с №BCI000038 от 12.02.2019 г., по реда на чл. 51 от Закона за кредитите за недвижими имоти на потребители (ЗКНИП).
SUPER CREDIT е част от нашата корпоративната група STOYANOV ENTERPRISES, в която участват редица водещи български компании, работещи в областта на продажбите, наемите и управлението на недвижими имоти, строителното предприемачество, мебелната индустрия и туризма.
В качеството си на лицензиран кредитен посредник, SUPER CREDIT поддържа официални договорни отношения с почти всички водещи банки и небанкови кредитни институции в България. Избирайки SUPER CREDIT за свой доверен консултант по ипотечно или друг вид финансиране, всеки наш клиент получава компетентна кредитна консултация, както и няколко оферти от различни банки, с цел да може да направи информиран избор, при най-изгодните за него условия. Клиентите на SUPER CREDIT могат да разчитат на професионално съдействие, както за получаване на богат избор от оферти, предложени от различни финансиращи институции, така и на безпристрастно анализиране на предложените на клиентите оферти, с цел отсяване на офертите с най-добри добри условия за клиента. При анализа на офертите за кредит се вземат под внимание следните показатели: лихви, процент на самоучастие, общи разходи по кредита, застраховки, срок на погасяване, ясни и прозрачни условия на финансиране с цел максимална защита на интереса на клиента, както към момента на получаване на кредита, така и през целия срок до неговото пълно изплащане.
SUPER CREDIT може да осигури на клиентите на SUPER ИМОТИ, също и професионални консултации, както и пълно съдействие за получаване и на други видове кредити като потребителски, инвестиционни, лизингови и др.
SUPER CREDIT може да Ви съдейства и относно рефинансиране на Ваши съществуващи кредити и преместване на кредитната Ви експозиция в друга банка, при по-добри условия.
Всички услуги на SUPER CREDIT за клиентите-кредитополучатели са АБСОЛЮТНО БЕЗПЛАТНИ!
За повече информация относно ипотечното финансиране, моля свържете се с отговорния консултант по тази оферта или разгледайте сайта на SUPER CREDIT.
Жилищно-ваканционния комплекс 7 Angels ще се поддържа и управлява целогодишно от специализирана пропърти мениджмънт компания, мажоритарна собственост на Инвеститора г-н Сотир Немов. Задължителната такса поддръжка е фиксирана за първите 2 години в размер на 15 Евро/м2 без ДДС от общата площ на жилището с включени общи части.
Конструкция
Сграда 1 е със стоманобетонна сглобяема конструкция, съставена от носещи вертикални елементи - колони и греди, а Сграда 2 - стоманобетонна монолитна конструкция, съставена от носещи вертикални елементи - колони и шайби.
Висок клас дограма с трислоен стъклопакет и финиш от дърво
Прозорците и балконските врати са с комбинирана система с дървени и алуминиеви профили с висока сигурност. Екстериорната част на дограмата се вписва в модерния облик на сградата и има характеристиката на напълно естествен строителен материал в интериора благодарение на дървената си част. Стъклопакетът е троен, с бяло флоатно нискоемисионно К-стъкло. Дограмата има много добри топло- и звукоизолационни характеристики.
Фасадни облицовки и материали
Фасадните повърхности са решени с мазилка и вентилируема фасадна система, която се предвижда с два материала - каменни плочи и HPL дърво, и осигурява отлична топлоизолация и параропускливост. Системата осигурява хидро и шумоизолация при валежи и защитава от конденз, и намалява топлинните загуби през зимата и нагряването през лятото. Външната облицовка е устойчива на температурни амплитуди и запазва качествата си. Тя е лесна за поддръжка и подмяна при необходимост. Освен техническите си качества, вентилируемата фасада допринася за модерния вид на сградата. Декоративните вертикални елементи по фасадата са изградени от композитно дърво/алуминиеви профили с цветно покритие. Топлоизолацията е 12 см каширана каменна вата и EPS. Каменната вата действа като шумоизолация, освен като топлоизолационен материал с високи качества и максимлен клас на негоримост А1. Фасадните плоскости решени с мазилка са в тъмносив цвят. Минералната мазилка е естествен и устойчив материал за изпълнение на фасадни финиши.
Стъклената окачена фасада е с конструкция изградена от алуминиеви профили. Стъклопакетите са троислойни с бяло флоатно нискоемисионно К-стъкло. Предвидени са, както остъклени панели, така и плътни части с допълнителна изолация в зоните на междуетажните плочи. В зоните с окачена фасада при апартаментите са предвидени оптимален брой отваряеми части.
Изолации
- Топлоизолация - EPS 12 см и Каменна вата 12 см - каменната вата се полага за всички ограждащи стени, еркери и конструктивни елементи покрити с окачена фасада, EPS се полага на всички ограждащи стени, еркери и конструктивни елементи, решени с покритие от минерална мазилка.
- Хидроизолация - битумна хидроизолационна мембрана за сутерени, обмазваща хидроизолация за мокри помещения.
- Шумоизолация - еластична звукоизолационна подложка за защита от ударен шум под плаваща замазка. Полага се по всички надземни нива, включително и по терасите.
Настилки
Гранитогрес в общите части и търговските помещения; гранитогрес, теракота и ламиниран паркет в апартаментите, декинг за верандите, гранитогрес с антислой покритие за СПА зоната и 8 мм PVC ударопоглъщаща настилка във фитнес центъра.
Стени
Общи части с гипсова мазилка и латекс, апартаменти с гипсова мазилка и латекс във всички сухи помещения, вароциментова мазилка и фаянс в мокрите помещения.
Покрив
Покривите на Сграда 1 и Сграда 2 са многоскатни с дървена конструкция, покрити с метални листи върху двойна скара, като под скарата е положено дифузионно фолио. Отводняването на скатовете става с улуци по периферията, които са свързани с водосточни тръби. Наклонът на покривът на сграда 1 е 18 градуса или 32,5% и 22 градуса или 40.4%, а на сграда 2 - 9 градуса или 15.85%. Отводняването на скатовете става с улуци по периферията, които са свързани с водосточни тръби. Покривът на средната сграда е плосък - стоманобетонна плоча с положени изолационни пластове и бетон за наклон. Отводняването става с воронки и барбакани по периферията, които са свързани с водосточни тръби.
В комплекса ще бъдат създадени условия за отдаване под наем на апартаментите, както не сезонен принцип, така и на нощувки, за собствениците, които желаят да генерират доходност. Услугите по управление на наемите ще се извършват от отдел "Наеми" на управляващата компания и са предмет на отделна договорка със собственика на имота.
Доходност от наеми - сезонно или на нощувки
Очаквана доходност от наеми в размер на около 8-10% годишно. Към нея следва да се добави и инвестиционният прираст на цената на имота (capital appreciation), който ще е в рамките на около 60% за първите 2 години, а след пускането на комплекса в експлоатация очакваме прираст на цената на инвестиционния актив (апартамент) между 5 и 10%, който пряко ще зависи както от трендовете на пазара, инфлацията, но също така и от високото качество на този актив и неговото управление, което за този проект смятаме, че е на най-високо ниво.
При покупка на ваканционен имот в проекта 7 Angels има възможност да се ползва данъчен кредит (възстановяване на внесен данък добавена стойност), предвид факта, че активът е инвестиционен и може да се отдава под наем на туристи, както и да се препродава (флипва) на къса позиция (тоест преди завършването на строителството). При подходяща организация на покупката, може да бъде възстановен в цялост заплатеният ДДС (20%) и то в рамките само на няколко месеца, при опростена данъчно-счетоводна процедура. Можем да Ви консултираме по този въпрос, ако имате интерес да ползване данъчен кредит.
Някои неща трябва да бъдат преразказвани, за да не се забравят, а и младите да ги узнаят!
„Курортът Боровец се намира в среднопланинския пояс на Рила планина, с надморска височина 1250–1400 м местността представлява разлято наклонено към север било с няколко продълговати хълмови гънки. Разположен е по склоновете на височините Маркуджика, Средния чукар, Шатър и др. Горският район, обрасъл с вековни борови гори, обхваща голямо пространство по склоновете на Мусаленския дял на Източна Рила, долината на река Марица, на запад достига долината на река Бели Искър и самоковското поле, с надморска височина 1100–1600 м.
Боровец се намира на 10 км от град Самоков и на 70 км от столицата София. С тях го свързва първокласно шосе, по което има редовни автобусни връзки. От курорта излиза шосе с посока град Пловдив. Прорязвайки вековните гори и стръмни спусъци, то открива рядко живописни изгледи към долината на река Марица и околните масиви. Шосето, което пресича курорта в западна посока, минава покрай двореца Бистрица, излиза под масива Соколец и достига до село Бели Искър.
Старото си наименование Чамкория води началото си от преди 90-95 години. Девствените гори тук по това време са пълни с диви горски хищници, цял свят разнолик и пълнокръвен живее тук. Рядко из непристъпните горски дебри се мярка човек. Покоят на просторната рилска гора, живяла векове за себе си, бива нарушен в края на миналия век. През 1896 г. кметът на град Самоков построява първата дъсчена барака на една горска поляна, наречена „Песако“ – малък хотел и пивница за пътниците, минаващи през Чамкория. По-късно на тези хубави места се настаняват представители на тогавашния княз Фердинанд Сакс-Кобург-Гота, като го превръщат в аристократично гнездо, недостъпно за обикновения човек. Тук чужденецът-княз до коритото на река Бистрица построява ловджийски дворец „Бистрица“ и други такива, като „Ситняково“, „Саръгьол“. Боровец става бърлога на главните военни щабове, на политическата и дипломатическата дейност в България.
След 09.09.1944 г. животът в курорта се променя. Построени са почивни станции и хотели. Боровец се развива не само като курортно място, но и като база за зимни спортове. Избора му за такъв се дължи на добрите битови условия, достъпността му, на неговия климат, терен и благоприятно заснежаване.
На територията и по склоновете на курорта се намират редица ски писти за провеждане на състезания по спускане и слалом – пистите "Ястребец", "Червено знаме", "Мартинови бараки", "Сборна рота" №1, №2 и др. Изградени са и удобни трасета за дълго бягане, ски скочища с различни размери, позволяващи скокове до 90 метра. За удобство на скиорите, туристите и почиващите действат седалков лифт, дълъг 2600 м, ски влек – 1500 м, редица портативни лифтове за задоволяване нуждите на любителите на ски спорта. Предвижда се и построяването на редица други лифтове и спортни комплекси.
В Боровец се повеждат редица състезания по ски от републикански и международен мащаб. Най-голямото международно ски състезание е това за купа „Боровец“. Тази година (1977) предстои провеждането на четвъртите поредни международни ски състезания, валидни за шампионата на Европейската купа.“
Откъс от бюлетина „Купа „Боровец“ - март 1977 год .
Агенция София-Прес
Държавна печатница "Балкан" - София

