Тип имот
Двустаен апартамент
Местоположение
кв. Кършияка / Пловдив / България
Етажност
6
Етаж
5
Асансьор
да
Спални
1
Бани
1
Площ на тераса
3.96м²
да
2.71 м²
Обща площ
71.39 м²
Общи части
9.27 м²
Застроена площ
62.12 м²
Цена 107 090 €
209 450 лв.
1 500 €/м²
2 934 лв./м²
Без комисиона от купувача
Запитване за повече информация или оглед
Старши консултант / Офис Пловдив
Разстояния от имота до други важни обекти
- Център на града: 2.2 км
- Летище : 15.8 км
- Магазин за хранителни стоки: 400 м
- Спирка: 100 м
- Болница: 200 м
- Училище: 300 м
Гледки от имота
- Гледка към вътрешен двор
- Гледка към града
Строителство
- Стоманобетонна конструкция
- Тухла
Отопление
- Климатици
Климатизация
- Климатици инверторни
- Климатици стандартни
БЕЗ КОМИСИОНА!
Комплексът е в процес на строеж, а Акт 16 се очаква до края на 2026 г.
Състои се две секции, всяка от които с 6 етажа и предлага едностайни, двустайни и тристайни жилища, а на партерно ниво има кафене, ресторант и офис пространство. Разполага и с паркинг и зелени площи, като е предвидено озеленяване под формата на тревиста растителност с разнообразни растителни видове.
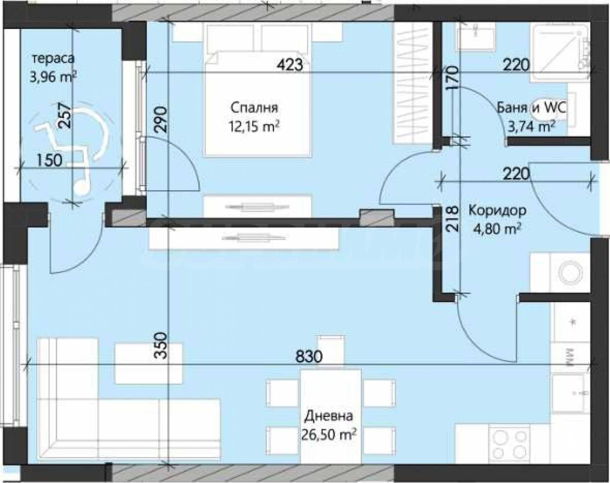
Имотът с обща площ 71.39 кв.м е разположен на 5-ти етаж от 6, с изложение запад-юг.
Състои се от:
- всекидневна с трапезария и кухненски бокс - 26.50 кв.м;
- спалня - 12.15 кв.м;
- антре - 4.80 кв.м;
- баня с тоалетна - 3.74 кв.м;
- тераса- 3.96 кв.м;
- изба - 2.71 кв.м.
Жилището се предава в степен на завършеност по БДС:
- блиндирана входна врата;
- стени и тавани - гипсова мазилка;
- под - циментова замазка;
- ел. инсталация до ключ и контакт;
- ВиК - тръбни разводки на тапа;
- PVC дограма, стъклопакет с четирисезонно стъкло;
- напълно завършени тераси;
- асансьор;
- луксозни общи части;
- контролиран достъп.
За израждането на комплекса се използват само висококачествени материали и технологии, отговарящи на изискванията и предпочитанията на модерното жилищно строителство.
Технически характеристики:
- вентилируема фасада от панели - дърво, облицовка от каменни плочи;
- топлоизолационна система на "Baumit" с 10 см минерална вата;
- бяла екстериорна мазилка - "Baumit";
- тъмносива екстериорна мазилка - "Baumit";
- висококачествени тухли “Porotherm” на фирма Wienerberger;
- вътрешни гипсови мазилки - “ROFIX”;
- стълбищата и общите части - гранитни плочи и стъпала от цели гранитни плоскости;
- за стълбищните и балконни парапети сме използвали профили от неръждаема стомана и стъкла триплекс, ковано желязо;
- стени и тавани - гипсова мазилка;
- PVC дограма с термоемисионен двоен стъклопакет;
- под в санитарни помещения - циментрова замазка;
- стени в санитарни помещения - вароциментова мазилка;
- асансьори - високотехнологични, нови и тихи електрически асансьори с автоматични врати.
Паркирането е 100% осигурено.
Предлагат се индивидуални схеми на плащане.
За оглед и консултация, моля свържете се с отговорния брокер по офертата.
На картата с червен маркер е указано приблизителното местоположение на имота/комплекса.
Видео
Покупка с ипотечен кредит от SUPER CREDIT
За покупка на този имот с ипотечен кредит ние препоръчваме услугите на нашия специализиран кредитен център SUPER CREDIT! “Супер Кредит” ООД с ЕИК205405378 е лицензиран кредитен консултант, регистриран с №BCI000038 от 12.02.2019 г., по реда на чл. 51 от Закона за кредитите за недвижими имоти на потребители (ЗКНИП).
SUPER CREDIT е част от нашата корпоративната група STOYANOV ENTERPRISES, в която участват редица водещи български компании, работещи в областта на продажбите, наемите и управлението на недвижими имоти, строителното предприемачество, мебелната индустрия и туризма.
В качеството си на лицензиран кредитен посредник, SUPER CREDIT поддържа официални договорни отношения с почти всички водещи банки и небанкови кредитни институции в България. Избирайки SUPER CREDIT за свой доверен консултант по ипотечно или друг вид финансиране, всеки наш клиент получава компетентна кредитна консултация, както и няколко оферти от различни банки, с цел да може да направи информиран избор, при най-изгодните за него условия. Клиентите на SUPER CREDIT могат да разчитат на професионално съдействие, както за получаване на богат избор от оферти, предложени от различни финансиращи институции, така и на безпристрастно анализиране на предложените на клиентите оферти, с цел отсяване на офертите с най-добри добри условия за клиента. При анализа на офертите за кредит се вземат под внимание следните показатели: лихви, процент на самоучастие, общи разходи по кредита, застраховки, срок на погасяване, ясни и прозрачни условия на финансиране с цел максимална защита на интереса на клиента, както към момента на получаване на кредита, така и през целия срок до неговото пълно изплащане.
SUPER CREDIT може да осигури на клиентите на SUPER ИМОТИ, също и професионални консултации, както и пълно съдействие за получаване и на други видове кредити като потребителски, инвестиционни, лизингови и др.
SUPER CREDIT може да Ви съдейства и относно рефинансиране на Ваши съществуващи кредити и преместване на кредитната Ви експозиция в друга банка, при по-добри условия.
Всички услуги на SUPER CREDIT за клиентите-кредитополучатели са АБСОЛЮТНО БЕЗПЛАТНИ!
За повече информация относно ипотечното финансиране, моля свържете се с отговорния консултант по тази оферта или разгледайте сайта на SUPER CREDIT.

