Тип имот
Четиристаен апартамент
(Многостаен апартамент, Мезонет)
Местоположение
кв. Красно село / София / България
Етажност
7
Етаж
6-7
Асансьор
да
Спални
3
Бани
2
Площ на тераса
180.47м²
Обща площ
212.02 м²
Общи части
49.11 м²
Застроена площ
162.91 м²
Запитване за повече информация или оглед
Старши консултант / Офис Витоша, София
Разстояния от имота до други важни обекти
- Летище : 12.6 км
- Училище: 450 м
Покупка без комисиона!
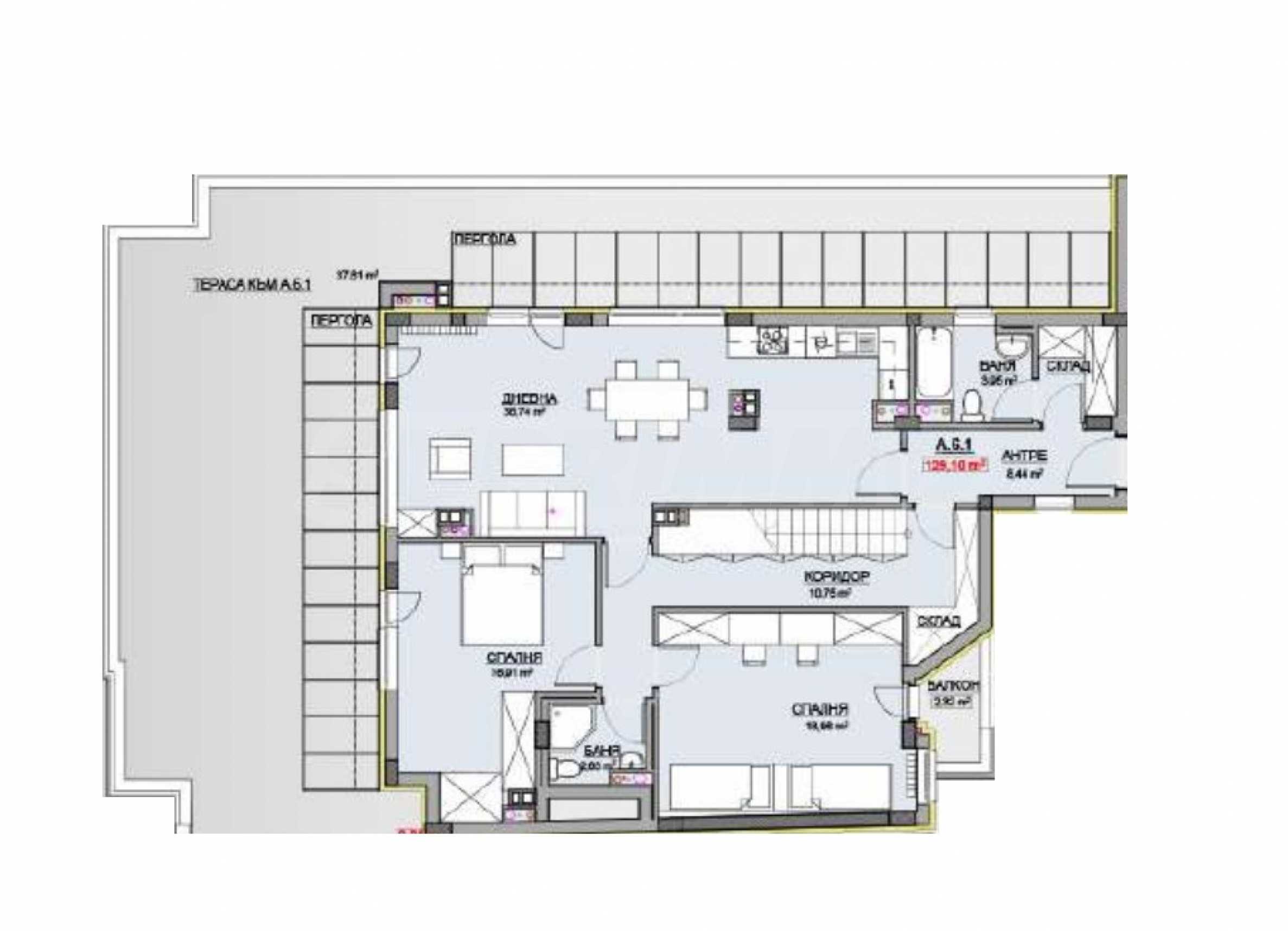
Имотът е ситуиран на 6-и и 7-и етаж етаж, с предлага изложения на запад и юг, 212.02 кв.м обща площ плюс 180.47 кв.м тераси.
Разпределение:
- първи етаж: антре, два склада, две бани с тоалетна, коридор, дневна с кухненски бокс, спалня, балкон, покривна тераса;
- втори етаж: спалня, склад, баня с тоалетна, покривна тераса.
Районът предоставя спокойна жилищна атмосфера и отлични удобства за комфортен живот - добри транспортни връзки и инфраструктура, близост до Витоша и разнообразие от магазини, заведения, паркове, търговски обекти, училища и детски градини. Местоположението е близо до бул. "България", бул. "Цар Борис III" и бул. "Гоце Делчев", които предоставят бърз и лесен достъп до центъра и всички точки на града.
Комплексът е с РЗП 4710 кв.м и се състои от сутеренно ниво, ниво партер и 7 жилищни етажа, с разпределени двустайни, тристайни и четиристайни апартаменти, единият от които е тип мезонет. Жилищата се отличават с функционални разпределения и благоприятни изложения. Сградата разполага с търговски обекти на ниво партер, а паркирането е решено с 22 подземни и 9 надземни паркоместа, и 2 гаража.
Има възможност за закупуване на подземни паркоместа.
Технически характеристики:
- монолитна конструкция със стоменобетонни носещи елементи, плочи и тухлени зидове;
- външни стени - 25 см, вътрешни стени - 12.5 см;
- фасадата е със силикатна мазилка и декоративни елементи, цокъл на целия първи етаж от облицоващи фиброциментни плочи;
- подземен паркинг е с под от шлайфан бетон с разграфени паркоместа и автоматична гаражна врата, летящо крило;
- общи части с висок клас гранит или гранитогресни плочи, и парапети от метал и стъкло;
- асансьор за 6 човека - KONE или Orona;
- 5-камерна дограма;
- инсталации, съобразени с изискванията по БДС.
Посочената цена е с включено ДДС.
Разстояния:
- 150 м от пазар "Красно село";
- 450 м от 36-то СОУ "Максим Горки", 300 м от 93-то ОДЗ "Чуден свят", 500 м от 20-то ДКЦ;
- 300 м от спирка на трамваи 4 и 5 и автобус 260, 300 м от спирка на автобуси 102, 73 и 83, 400 м от спирка на автобус 204 и тролеи 2 и 9;
- 200 метра от метростанция.
Етапи на строителство:
- Акт 14 - получен;
- Акт 15 - декември 2024 г.;
- Акт 16 - до май 2025 г.
Стандартна схема на плащане:
- депозит в размер 2000 евро;
- 30% от размера на продажната цена при подписване на Предварителен договор;
- 20% в срок до 14 работни дни, считано от датата на представяне на Акт Кота 0;
- 20% в срок до 14 работни дни, считано от датата на представяне на Акт 14;
- 20% в срок до 14 работни дни, считано от датата на представяне на Акт 15;
- 10% в срок до 14 работни дни, считано от датата на представяне на Разрешение за експлоатация.
За допълнителна информация и професионална консултация, моля свържете се с отговорния брокер по офертата.
На картата с червен маркер е указано приблизителното местоположение на имота/комплекса.
Покупка с ипотечен кредит от SUPER CREDIT
За покупка на този имот с ипотечен кредит ние препоръчваме услугите на нашия специализиран кредитен център SUPER CREDIT! “Супер Кредит” ООД с ЕИК205405378 е лицензиран кредитен консултант, регистриран с №BCI000038 от 12.02.2019 г., по реда на чл. 51 от Закона за кредитите за недвижими имоти на потребители (ЗКНИП).
SUPER CREDIT е част от нашата корпоративната група STOYANOV ENTERPRISES, в която участват редица водещи български компании, работещи в областта на продажбите, наемите и управлението на недвижими имоти, строителното предприемачество, мебелната индустрия и туризма.
В качеството си на лицензиран кредитен посредник, SUPER CREDIT поддържа официални договорни отношения с почти всички водещи банки и небанкови кредитни институции в България. Избирайки SUPER CREDIT за свой доверен консултант по ипотечно или друг вид финансиране, всеки наш клиент получава компетентна кредитна консултация, както и няколко оферти от различни банки, с цел да може да направи информиран избор, при най-изгодните за него условия. Клиентите на SUPER CREDIT могат да разчитат на професионално съдействие, както за получаване на богат избор от оферти, предложени от различни финансиращи институции, така и на безпристрастно анализиране на предложените на клиентите оферти, с цел отсяване на офертите с най-добри добри условия за клиента. При анализа на офертите за кредит се вземат под внимание следните показатели: лихви, процент на самоучастие, общи разходи по кредита, застраховки, срок на погасяване, ясни и прозрачни условия на финансиране с цел максимална защита на интереса на клиента, както към момента на получаване на кредита, така и през целия срок до неговото пълно изплащане.
SUPER CREDIT може да осигури на клиентите на SUPER ИМОТИ, също и професионални консултации, както и пълно съдействие за получаване и на други видове кредити като потребителски, инвестиционни, лизингови и др.
SUPER CREDIT може да Ви съдейства и относно рефинансиране на Ваши съществуващи кредити и преместване на кредитната Ви експозиция в друга банка, при по-добри условия.
Всички услуги на SUPER CREDIT за клиентите-кредитополучатели са АБСОЛЮТНО БЕЗПЛАТНИ!
За повече информация относно ипотечното финансиране, моля свържете се с отговорния консултант по тази оферта или разгледайте сайта на SUPER CREDIT.

