Plot with building permit and project for a modern house next to Garitage Park – Kambanite residential area
REF#SOF-138595 / Development land / district m-t Kambanite / Sofia / Sofia region / Bulgaria / For sale On the map
Property type - All
Development land
(Investment land, Building plot with project)
Location
district m-t Kambanite / Sofia / Bulgaria
Total area
550 sq.m
Price 395,000 €
718 €/sq.m
Request more information or viewing
Lia Toneva
Consultant / Office Associate partner office BARNES Bulgaria
Consultant / Office Associate partner office BARNES Bulgaria
Info pack
Furnishings
Unfurnished
Distance
Distance from the property to major attractions
The text has been translated into English by automatic software and may contain inaccuracies. You can view the text in the original language or translated into other languages:
We present for sale a regulated land plot in the Kambanite residential area, immediately behind Garitage Park - one of the most preferred areas in the southern part of Sofia.
The plot is being sold with a building permit and a ready architectural project for a modern single-family house.
This allows construction to begin immediately.
The building permit is an extremely valuable asset in the area. It saves approximately a year and a half of administrative procedures, design and coordination.
The plot is clear, flat and without elevation differences, which facilitates construction and optimal use of the project.
Asphalt access and the possibility of gasification are provided.
Property parameters:
• Plot area: 550 sq m
Project for a house with a total area of 321 sq m (according to the notary deed it will be 395 sq m, which will include the roof and the covered terrace - a total of 74 sq m)
• Pitch: 123 m2.
• Three floors (on the last one - panoramic rooftop studio with mountain and city views)
• 3 bedrooms + dressing room
• 3 bathrooms with WC + separate WC
• study / office
• spacious living room with kitchen and dining area
• garage for 1 car + outdoor parking space
Distribution
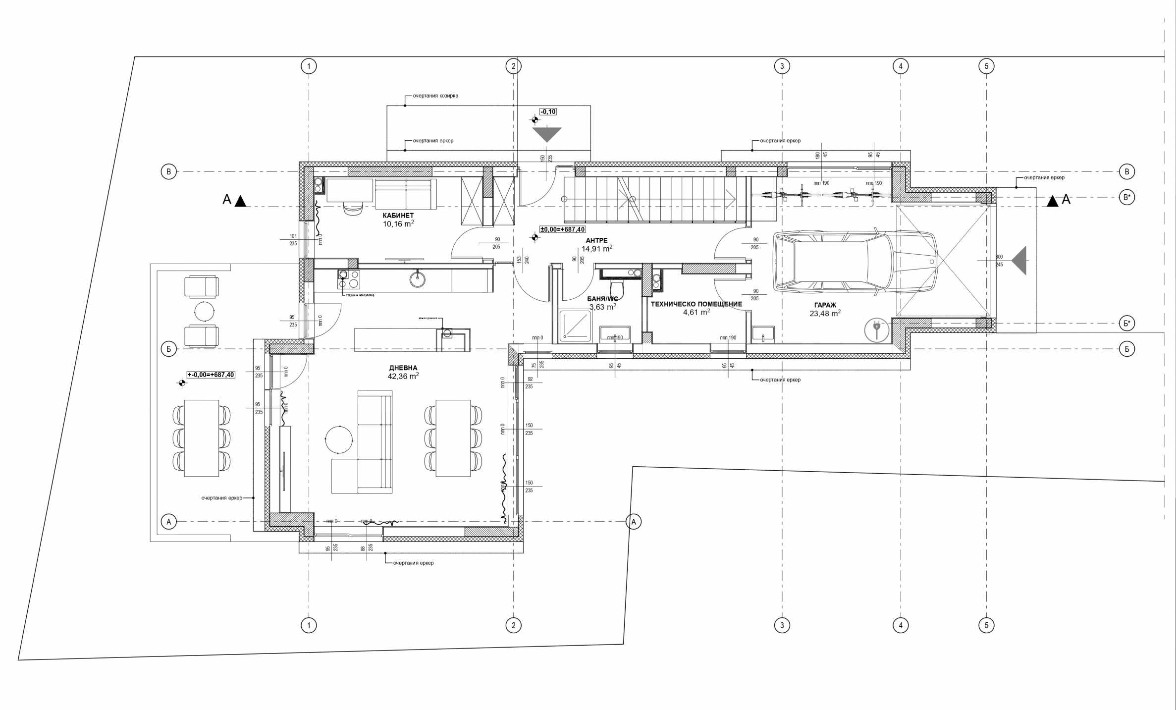
• First floor – spacious living area with kitchen and dining room and direct access to the yard. Also located on this level are a study/office, bathroom with toilet, technical room and a garage for one car.
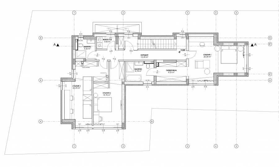
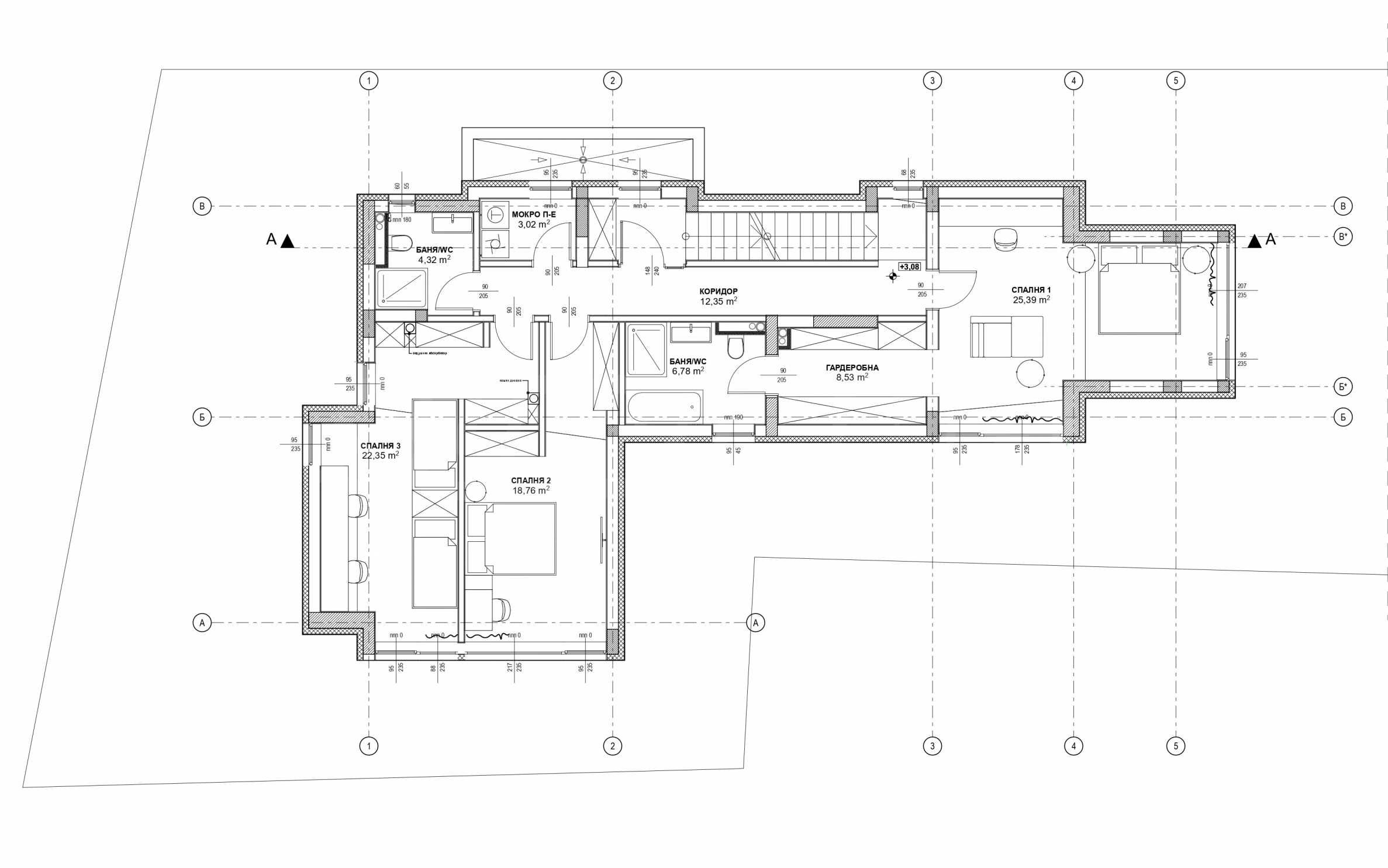
• Second floor – living area with three very spacious bedrooms (18.76m?, 22.35m?, 25.39m?), a walk-in closet, two bathrooms and a laundry room. The layout is functional and provides comfort and privacy for the family.
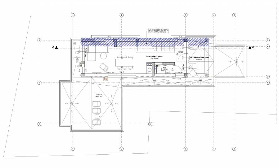
• Third floor – panoramic studio with spacious terraces, suitable for a recreation area, hobby space or home office, with open views of the city and Vitosha Mountain.
Location
The property is located in a quiet area with excellent accessibility:
• Garitage Park – about 4 minutes
• Business Park Mladost – 5 minutes
• Sofia Ring Mall – 8 minutes
• Kambanite Park – 3 minutes
The area offers a peaceful environment, panoramic views and quick access to the main business and commercial areas of Sofia.
The offer price includes the plot, the architectural project and the issued building permit.
Viewings
We are ready to organize a viewing of this property at a time convenient for you. Please contact the responsible estate agent and inform them when you would like to have viewings arranged. We can also help you with flight tickets and hotel booking, as well as with travel insurance.
Property reservation
You can reserve this property with a non-refundable deposit of 2,000 Euro, payable by credit card or by bank transfer to our company bank account. After receiving the deposit the property will be marked as reserved, no further viewings will be carried out with other potential buyers, and we will start the preparation of the necessary documents for completion of the deal. Please contact the responsible estate agent for more information about the purchase procedure and the payment methods.
After sale services
We are a reputable company with many years of experience in the real estate business. Thus, we will be with you not only during the purchase process, but also after the deal is completed, providing you with a wide range of additional services tailored to your requirements and needs, so that you can fully enjoy your property in Bulgaria. The after sale services we offer include property insurance, construction and repair works, furnishing, accounting and legal assistance, renewal of contracts for electricity, water, telephone and many more.
The plot is being sold with a building permit and a ready architectural project for a modern single-family house.
This allows construction to begin immediately.
The building permit is an extremely valuable asset in the area. It saves approximately a year and a half of administrative procedures, design and coordination.
The plot is clear, flat and without elevation differences, which facilitates construction and optimal use of the project.
Asphalt access and the possibility of gasification are provided.
Property parameters:
• Plot area: 550 sq m
Project for a house with a total area of 321 sq m (according to the notary deed it will be 395 sq m, which will include the roof and the covered terrace - a total of 74 sq m)
• Pitch: 123 m2.
• Three floors (on the last one - panoramic rooftop studio with mountain and city views)
• 3 bedrooms + dressing room
• 3 bathrooms with WC + separate WC
• study / office
• spacious living room with kitchen and dining area
• garage for 1 car + outdoor parking space
Distribution
• First floor – spacious living area with kitchen and dining room and direct access to the yard. Also located on this level are a study/office, bathroom with toilet, technical room and a garage for one car.
• Second floor – living area with three very spacious bedrooms (18.76m?, 22.35m?, 25.39m?), a walk-in closet, two bathrooms and a laundry room. The layout is functional and provides comfort and privacy for the family.
• Third floor – panoramic studio with spacious terraces, suitable for a recreation area, hobby space or home office, with open views of the city and Vitosha Mountain.
Location
The property is located in a quiet area with excellent accessibility:
• Garitage Park – about 4 minutes
• Business Park Mladost – 5 minutes
• Sofia Ring Mall – 8 minutes
• Kambanite Park – 3 minutes
The area offers a peaceful environment, panoramic views and quick access to the main business and commercial areas of Sofia.
The offer price includes the plot, the architectural project and the issued building permit.
Viewings
We are ready to organize a viewing of this property at a time convenient for you. Please contact the responsible estate agent and inform them when you would like to have viewings arranged. We can also help you with flight tickets and hotel booking, as well as with travel insurance.
Property reservation
You can reserve this property with a non-refundable deposit of 2,000 Euro, payable by credit card or by bank transfer to our company bank account. After receiving the deposit the property will be marked as reserved, no further viewings will be carried out with other potential buyers, and we will start the preparation of the necessary documents for completion of the deal. Please contact the responsible estate agent for more information about the purchase procedure and the payment methods.
After sale services
We are a reputable company with many years of experience in the real estate business. Thus, we will be with you not only during the purchase process, but also after the deal is completed, providing you with a wide range of additional services tailored to your requirements and needs, so that you can fully enjoy your property in Bulgaria. The after sale services we offer include property insurance, construction and repair works, furnishing, accounting and legal assistance, renewal of contracts for electricity, water, telephone and many more.
View the text in other languages (automatic translation)
Location
This is the approximate location of the property. Please get in contact with us to learn its exact location.
Our top offers for sale in Sofia, Bulgaria


ORIGINAL: