Property type - All
House
Location
in the area of Aheloy / Bulgaria
Number of floors
2
Bedrooms
3
Bathrooms
2
Parking spaces
2
Building area
182 sq.m
Plot area
300 sq.m
Act 16 received
Price 165,000 €
Request more information or viewing
Lia Toneva
Consultant / Office Associate partner office BARNES Bulgaria
Consultant / Office Associate partner office BARNES Bulgaria
Info pack
Finishing
unfinished internally
Furnishings
Unfurnished
Heating
Fireplace / Air-conditioners
Distance
Distance from the property to major attractions
Construction
- Brick-built
Heating
- Air-conditioners
- Fireplace
The text has been translated into English by automatic software and may contain inaccuracies. You can view the text in the original language or translated into other languages:
We offer for sale five new houses on plaster and stucco (without finishing works), part of the Serenity Six boutique complex, located between Kableshkovo and Aheloy, about 5 minutes by car from the sea.
In the photos you see one of the six houses – the only one completed turnkey, as well as interior visualizations that are marked as such.
The remaining five houses are offered in their current condition - with plaster and screed.
Main parameters:
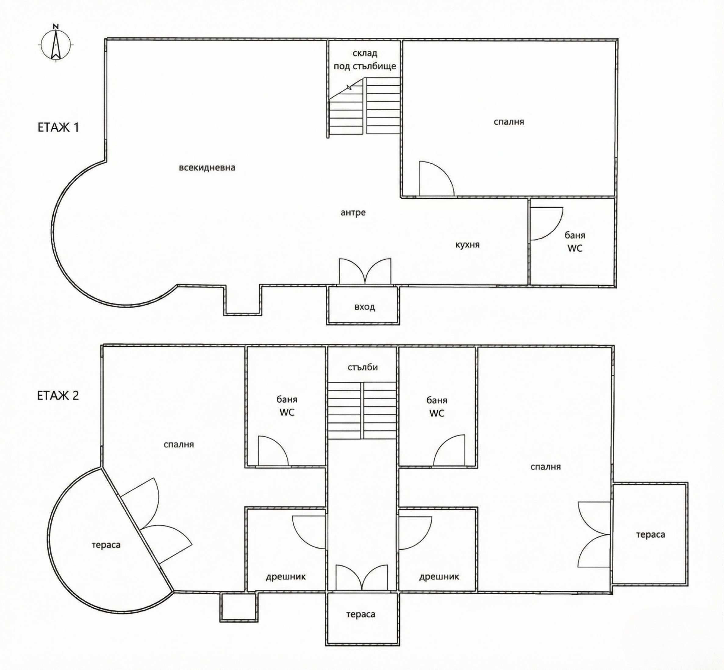
• Total area: 182 m2.
• Yard: 300 m2.
• Parking space for two cars in the front yard (driveway type).
Distribution:
First floor:
• spacious living area/living room 42 sq m with fireplace and access to the yard;
• kitchen and dining room;
• guest toilet;
• bedroom 16 sq m, suitable for a living room, office or gym.
Second floor:
• two large bedrooms of 22 sq m, each with its own bathroom with toilet (en suite) and a niche for its own wardrobe;
• the master bedroom has a round terrace;
• second bedroom with a smaller terrace;
• There is also a third terrace on the floor, accessible from the landing between the two bedrooms.
Additional options:
• Possibility to build a swimming pool at the buyer's request;
• Possibility to join two neighboring houses to form one house with 6 bedrooms;
• The complex has its own water source and a built-in septic system.
Act 16 of December 2025
Deposit: 2,000 EUR
The Serenity Six project is an excellent opportunity to purchase a new house near the sea, with the flexibility to finish according to personal taste.
Viewings
We are ready to organize a viewing of this property at a time convenient for you. Please contact the responsible estate agent and inform them when you would like to have viewings arranged. We can also help you with flight tickets and hotel booking, as well as with travel insurance.
Property reservation
You can reserve this property with a non-refundable deposit of 2,000 Euro, payable by credit card or by bank transfer to our company bank account. After receiving the deposit the property will be marked as reserved, no further viewings will be carried out with other potential buyers, and we will start the preparation of the necessary documents for completion of the deal. Please contact the responsible estate agent for more information about the purchase procedure and the payment methods.
After sale services
We are a reputable company with many years of experience in the real estate business. Thus, we will be with you not only during the purchase process, but also after the deal is completed, providing you with a wide range of additional services tailored to your requirements and needs, so that you can fully enjoy your property in Bulgaria. The after sale services we offer include property insurance, construction and repair works, furniture, accounting and legal assistance, renewal of contracts for electricity, water, telephone and many more.
In the photos you see one of the six houses – the only one completed turnkey, as well as interior visualizations that are marked as such.
The remaining five houses are offered in their current condition - with plaster and screed.
Main parameters:
• Total area: 182 m2.
• Yard: 300 m2.
• Parking space for two cars in the front yard (driveway type).
Distribution:
First floor:
• spacious living area/living room 42 sq m with fireplace and access to the yard;
• kitchen and dining room;
• guest toilet;
• bedroom 16 sq m, suitable for a living room, office or gym.
Second floor:
• two large bedrooms of 22 sq m, each with its own bathroom with toilet (en suite) and a niche for its own wardrobe;
• the master bedroom has a round terrace;
• second bedroom with a smaller terrace;
• There is also a third terrace on the floor, accessible from the landing between the two bedrooms.
Additional options:
• Possibility to build a swimming pool at the buyer's request;
• Possibility to join two neighboring houses to form one house with 6 bedrooms;
• The complex has its own water source and a built-in septic system.
Act 16 of December 2025
Deposit: 2,000 EUR
The Serenity Six project is an excellent opportunity to purchase a new house near the sea, with the flexibility to finish according to personal taste.
Viewings
We are ready to organize a viewing of this property at a time convenient for you. Please contact the responsible estate agent and inform them when you would like to have viewings arranged. We can also help you with flight tickets and hotel booking, as well as with travel insurance.
Property reservation
You can reserve this property with a non-refundable deposit of 2,000 Euro, payable by credit card or by bank transfer to our company bank account. After receiving the deposit the property will be marked as reserved, no further viewings will be carried out with other potential buyers, and we will start the preparation of the necessary documents for completion of the deal. Please contact the responsible estate agent for more information about the purchase procedure and the payment methods.
After sale services
We are a reputable company with many years of experience in the real estate business. Thus, we will be with you not only during the purchase process, but also after the deal is completed, providing you with a wide range of additional services tailored to your requirements and needs, so that you can fully enjoy your property in Bulgaria. The after sale services we offer include property insurance, construction and repair works, furniture, accounting and legal assistance, renewal of contracts for electricity, water, telephone and many more.
View the text in other languages (automatic translation)
Location
Our top offers for sale in Aheloy, Bulgaria


ORIGINAL: