Property type - All
Studio
Location
Nessebar / Bulgaria
Number of floors
4
Elevator
no
Bathrooms
1
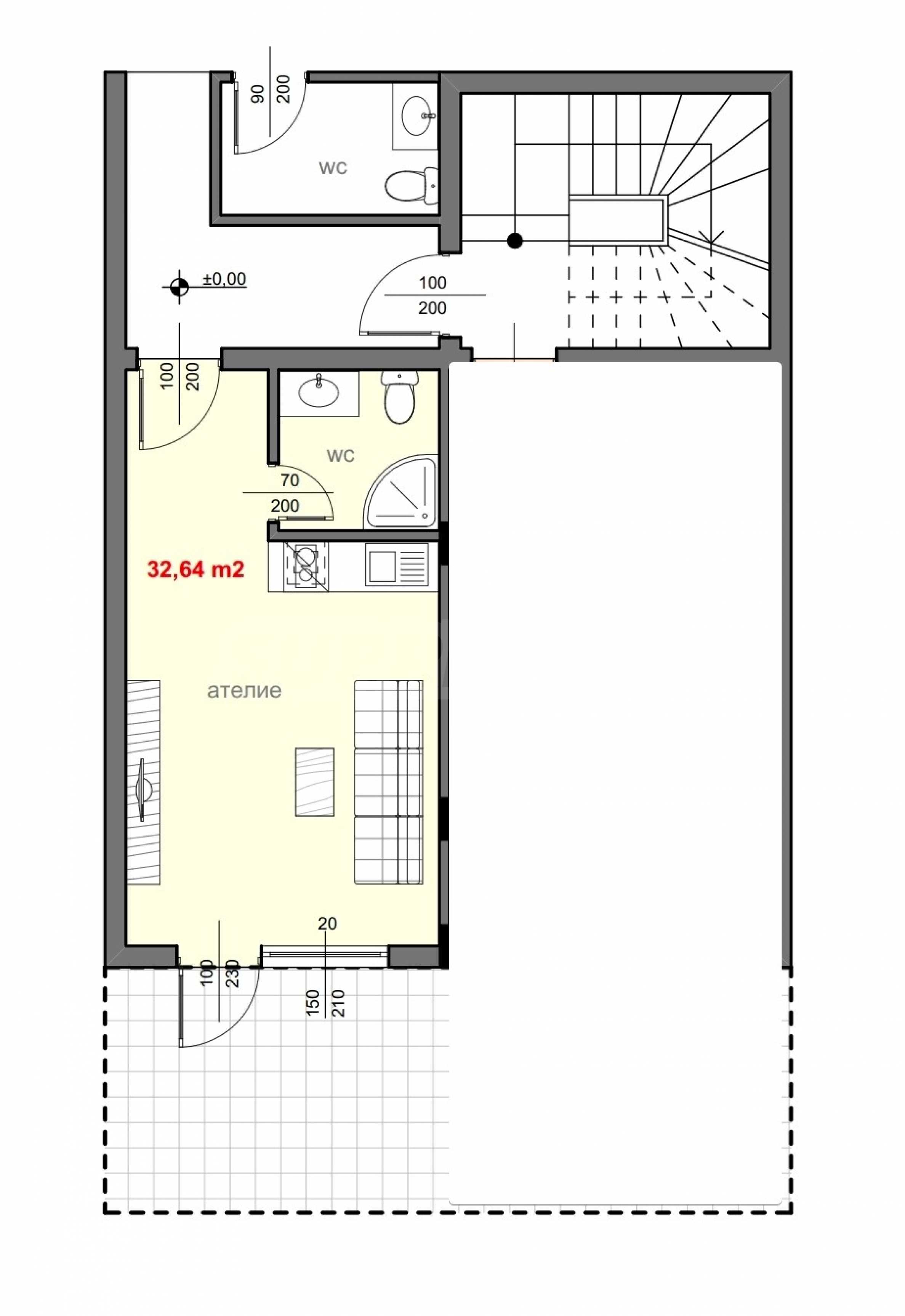
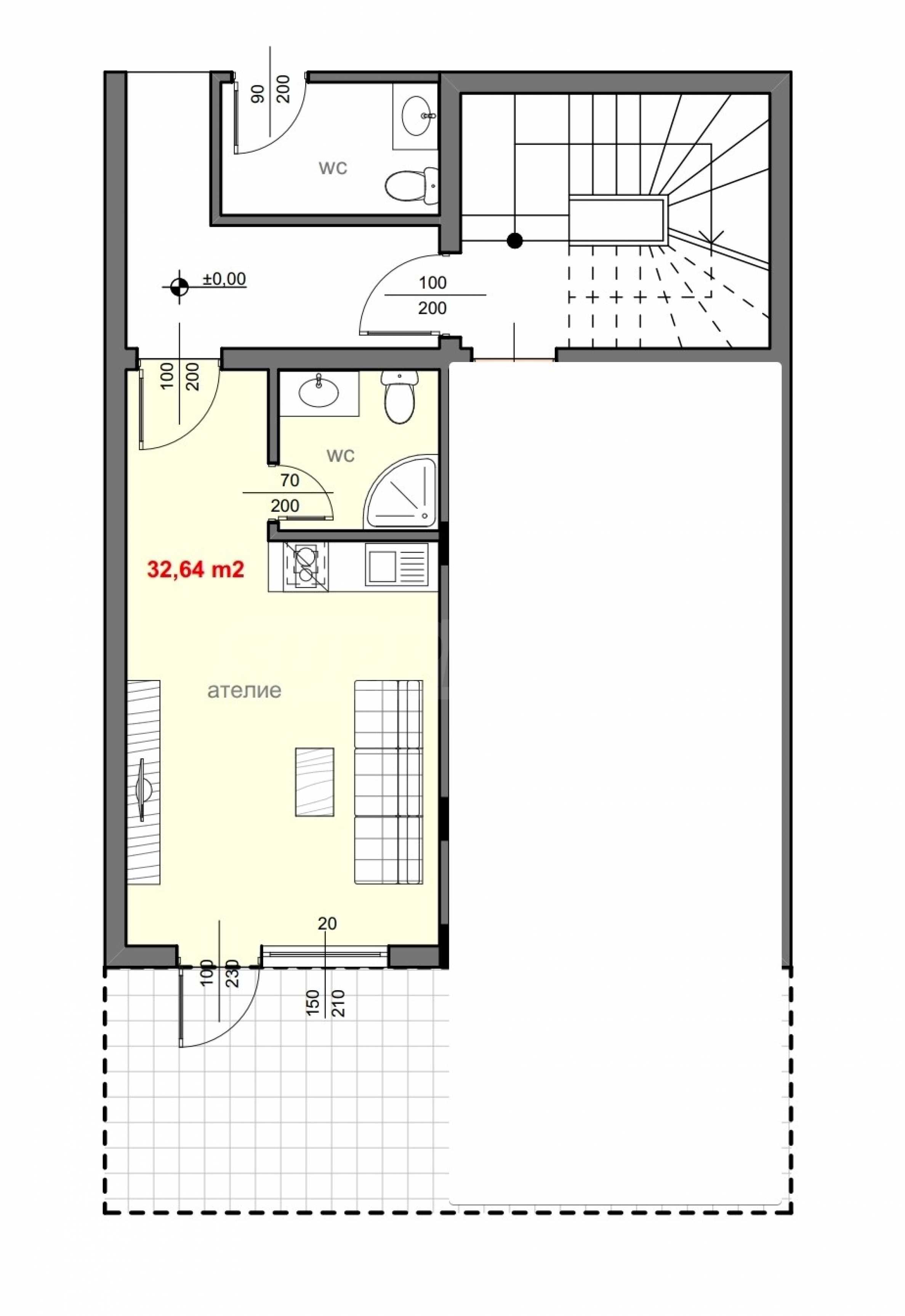
Total area
32.64 sq.m
Common parts
3.87 sq.m
Net area
28.77 sq.m
Price 56,000 €
1,716 €/sq.m
Request more information or viewing
Lawyer Petya Chernaeva
Consultant / Office Nessebar
Consultant / Office Nessebar
Info pack
Finishing
key-ready (unfurnished)
Furnishings
Unfurnished
Distance
Distance from the property to major attractions
- Sea: 750 m
- Town centre: 800 m
- Airport : 26 km
Views from the property
- Sea views
- Town views
Construction
- Brick-built
The text has been translated into English by automatic software and may contain inaccuracies. You can view the text in the original language or translated into other languages:
We present for sale a one-bedroom apartment in a new residential building, without maintenance fee, in the ''Cherno more'' district, Nessebar.
Location
The building is located 800 meters from the city center, close to a bus stop, kindergarten, school, playground, sports field, pharmacy, church and other amenities. The neighborhood has a peaceful atmosphere, green areas and parking spaces, which makes it a preferred place for both year-round living and investment.
There is Act 14. Expected Act 16 - April 2026.
The property has a total area of 32.64 sq m, located on the ground floor with its own yard.
The apartment is being rented out in a "turnkey" state of completion, ready for furniture.
The building houses 10 one- and two-bedroom apartments, with an area of 32.64 sq m to 80.18 sq m and 2 shops on the ground floor.
We look forward to your inquiry.
If you would like to arrange a viewing of a property that interests you, or to visit one of our offices, please contact us. To arrange a day and time for a meeting or viewing, you can call the phone number listed in the ad or send an inquiry via e-mail. Our consultant will assist you with all the necessary details and will arrange a time convenient for you.
Are you looking for the right property for you?
Do not hesitate to contact us and tell us about your needs and preferences. Our team will conduct a thorough market research to offer you properties that exactly meet your criteria. We have an exceptional portfolio of high-quality and exclusive homes that are available only to our clients. To be the first to receive information about them – contact us.
Additional services
As a valued client of our company, you will have the privilege of using the services of our experienced legal team completely free of charge. In addition, we offer comprehensive solutions, including property insurance, free financial advice, as well as favorable financing conditions. Our services also extend to the field of resale, rental and property management. We provide high-quality renovation and furniture through specialized companies that are part of our corporate group and are our long-standing professional partners.
Viewings
We are ready to organize a viewing of this property at a time convenient for you. Please contact the responsible estate agent and inform them when you would like to have viewings arranged. We can also help you with flight tickets and hotel booking, as well as with travel insurance.
Property reservation
You can reserve this property with a non-refundable deposit of 2,000 Euro, payable by credit card or by bank transfer to our company bank account. After receiving the deposit the property will be marked as reserved, no further viewings will be carried out with other potential buyers, and we will start the preparation of the necessary documents for completion of the deal. Please contact the responsible estate agent for more information about the purchase procedure and the payment methods.
After sale services
We are a reputable company with many years of experience in the real estate business. Thus, we will be with you not only during the purchase process, but also after the deal is completed, providing you with a wide range of additional services tailored to your requirements and needs, so that you can fully enjoy your property in Bulgaria. The after sale services we offer include property insurance, construction and repair works, furniture, accounting and legal assistance, renewal of contracts for electricity, water, telephone and many more.
Location
The building is located 800 meters from the city center, close to a bus stop, kindergarten, school, playground, sports field, pharmacy, church and other amenities. The neighborhood has a peaceful atmosphere, green areas and parking spaces, which makes it a preferred place for both year-round living and investment.
There is Act 14. Expected Act 16 - April 2026.
The property has a total area of 32.64 sq m, located on the ground floor with its own yard.
The apartment is being rented out in a "turnkey" state of completion, ready for furniture.
The building houses 10 one- and two-bedroom apartments, with an area of 32.64 sq m to 80.18 sq m and 2 shops on the ground floor.
We look forward to your inquiry.
If you would like to arrange a viewing of a property that interests you, or to visit one of our offices, please contact us. To arrange a day and time for a meeting or viewing, you can call the phone number listed in the ad or send an inquiry via e-mail. Our consultant will assist you with all the necessary details and will arrange a time convenient for you.
Are you looking for the right property for you?
Do not hesitate to contact us and tell us about your needs and preferences. Our team will conduct a thorough market research to offer you properties that exactly meet your criteria. We have an exceptional portfolio of high-quality and exclusive homes that are available only to our clients. To be the first to receive information about them – contact us.
Additional services
As a valued client of our company, you will have the privilege of using the services of our experienced legal team completely free of charge. In addition, we offer comprehensive solutions, including property insurance, free financial advice, as well as favorable financing conditions. Our services also extend to the field of resale, rental and property management. We provide high-quality renovation and furniture through specialized companies that are part of our corporate group and are our long-standing professional partners.
Viewings
We are ready to organize a viewing of this property at a time convenient for you. Please contact the responsible estate agent and inform them when you would like to have viewings arranged. We can also help you with flight tickets and hotel booking, as well as with travel insurance.
Property reservation
You can reserve this property with a non-refundable deposit of 2,000 Euro, payable by credit card or by bank transfer to our company bank account. After receiving the deposit the property will be marked as reserved, no further viewings will be carried out with other potential buyers, and we will start the preparation of the necessary documents for completion of the deal. Please contact the responsible estate agent for more information about the purchase procedure and the payment methods.
After sale services
We are a reputable company with many years of experience in the real estate business. Thus, we will be with you not only during the purchase process, but also after the deal is completed, providing you with a wide range of additional services tailored to your requirements and needs, so that you can fully enjoy your property in Bulgaria. The after sale services we offer include property insurance, construction and repair works, furniture, accounting and legal assistance, renewal of contracts for electricity, water, telephone and many more.
View the text in other languages (automatic translation)
Location
This is the approximate location of the property. Please get in contact with us to learn its exact location.
Our top offers for sale in Nessebar, Bulgaria


ORIGINAL: