Property type - All
Studio
Location
Nessebar / Bulgaria
Number of floors
6
Floor
4
Elevator
yes
Bathrooms
1
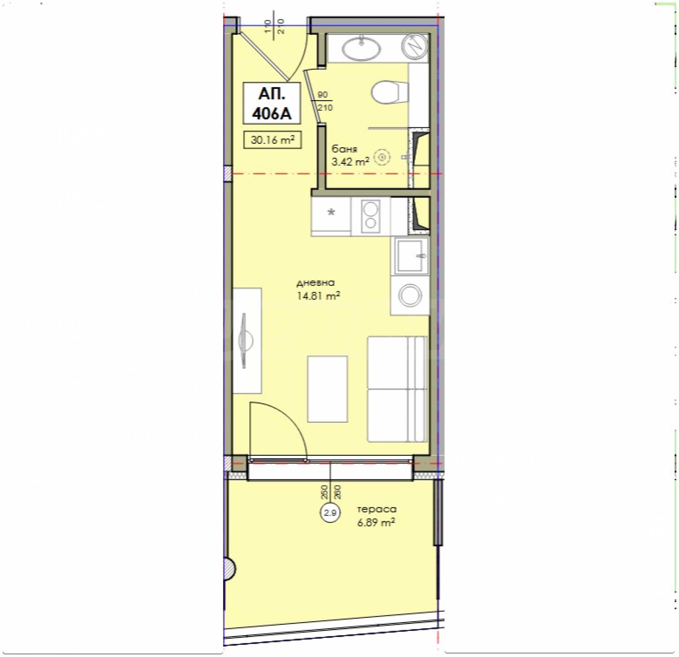
Total area
34.57 sq.m
Common parts
4.41 sq.m
Net area
30.16 sq.m
Price 73,500 €
2,126 €/sq.m
Request more information or viewing
Lawyer Petya Chernaeva
Consultant / Office Nessebar
Consultant / Office Nessebar
Info pack
Finishing
key-ready (unfurnished)
Furnishings
Unfurnished
Bathrooms
Laminate flooring
Internal Walls
Painted walls
Distance
Distance from the property to major attractions
- Airport : 25 km
Construction
- Brick-built
Heating
- Air-conditioners
The text has been translated into English by automatic software and may contain inaccuracies. You can view the text in the original language or translated into other languages:
We present for sale a one-bedroom apartment with an area of 34.57 sq m, part of a new, modern residential complex, located on the first line to the South Beach in Nessebar.
The location is exceptional – in the heart of the New Town, just a 5-minute walk from Old Nessebar and 2 minutes from the school. Here you will find a combination of silence, a unique sea view and the amenities of the city infrastructure.
Under construction. Expected Act 16 - 12.2027.
The complex impresses with its contemporary architecture and spacious terraces with breathtaking views. All apartments have panoramic sea views and are finished to the highest standards in construction.
First-class amenities:
• 6 floors with functional layouts;
• Underground garage on 2 levels;
• 3 outdoor pools with frontal sea views;
• Children's playground and outdoor sports area;
• Fitness center with modern equipment.
• Supermarket;
• Restaurant;
• Commercial establishments.
Choice of apartment types:
• one-room;
• two-room;
• three-room;
• four-room apartments.
The properties are offered complete "turnkey":
• painted walls and ceilings;
• laid flooring – laminate and granite tiles;
• interior doors, switches and sockets;
• fully finished bathrooms.
Why choose this complex?
• First line to the sea – just a step away from the South Beach;
• Strategic location in Nessebar;
• Luxurious common areas and high-quality construction;
• Modern architecture and spacious terraces;
• Rich infrastructure within the complex itself;
• High investment value and future returns.
Payment plan
• Initial deposit: ˆ5,000;
• Upon commencement of construction: 40% of the value;
• For Act 14: 30% of the value;
• For Act 15: 20% of the value;
• For Act 16: 10% of the value, minus the deposit.
Annual maintenance fee: ˆ10 (19.56 BGN)/m2 excluding VAT.
We look forward to your inquiry.
If you would like to arrange a viewing of a property that interests you, or to visit one of our offices, please contact us. To arrange a day and time for a meeting or viewing, you can call the phone number listed in the ad or send an inquiry via e-mail. Our consultant will assist you with all the necessary details and will arrange a time convenient for you.
Are you looking for the right property for you?
Do not hesitate to contact us and tell us about your needs and preferences. Our team will conduct a thorough market research to offer you properties that exactly meet your criteria. We have an exceptional portfolio of high-quality and exclusive homes that are available only to our clients. To be the first to receive information about them – contact us.
Additional services
As a valued client of our company, you will have the privilege of using the services of our experienced legal team completely free of charge. In addition, we offer comprehensive solutions, including property insurance, free financial advice, as well as favorable financing conditions. Our services also extend to the field of resale, rental and property management. We provide high-quality renovation and furniture through specialized companies that are part of our corporate group and are our long-standing professional partners.
Viewings
We are ready to organize a viewing of this property at a time convenient for you. Please contact the responsible estate agent and inform them when you would like to have viewings arranged. We can also help you with flight tickets and hotel booking, as well as with travel insurance.
Property reservation
You can reserve this property with a non-refundable deposit of 2,000 Euro, payable by credit card or by bank transfer to our company bank account. After receiving the deposit the property will be marked as reserved, no further viewings will be carried out with other potential buyers, and we will start the preparation of the necessary documents for completion of the deal. Please contact the responsible estate agent for more information about the purchase procedure and the payment methods.
After sale services
We are a reputable company with many years of experience in the real estate business. Thus, we will be with you not only during the purchase process, but also after the deal is completed, providing you with a wide range of additional services tailored to your requirements and needs, so that you can fully enjoy your property in Bulgaria. The after sale services we offer include property insurance, construction and repair works, furnishing, accounting and legal assistance, renewal of contracts for electricity, water, telephone and many more.
The location is exceptional – in the heart of the New Town, just a 5-minute walk from Old Nessebar and 2 minutes from the school. Here you will find a combination of silence, a unique sea view and the amenities of the city infrastructure.
Under construction. Expected Act 16 - 12.2027.
The complex impresses with its contemporary architecture and spacious terraces with breathtaking views. All apartments have panoramic sea views and are finished to the highest standards in construction.
First-class amenities:
• 6 floors with functional layouts;
• Underground garage on 2 levels;
• 3 outdoor pools with frontal sea views;
• Children's playground and outdoor sports area;
• Fitness center with modern equipment.
• Supermarket;
• Restaurant;
• Commercial establishments.
Choice of apartment types:
• one-room;
• two-room;
• three-room;
• four-room apartments.
The properties are offered complete "turnkey":
• painted walls and ceilings;
• laid flooring – laminate and granite tiles;
• interior doors, switches and sockets;
• fully finished bathrooms.
Why choose this complex?
• First line to the sea – just a step away from the South Beach;
• Strategic location in Nessebar;
• Luxurious common areas and high-quality construction;
• Modern architecture and spacious terraces;
• Rich infrastructure within the complex itself;
• High investment value and future returns.
Payment plan
• Initial deposit: ˆ5,000;
• Upon commencement of construction: 40% of the value;
• For Act 14: 30% of the value;
• For Act 15: 20% of the value;
• For Act 16: 10% of the value, minus the deposit.
Annual maintenance fee: ˆ10 (19.56 BGN)/m2 excluding VAT.
We look forward to your inquiry.
If you would like to arrange a viewing of a property that interests you, or to visit one of our offices, please contact us. To arrange a day and time for a meeting or viewing, you can call the phone number listed in the ad or send an inquiry via e-mail. Our consultant will assist you with all the necessary details and will arrange a time convenient for you.
Are you looking for the right property for you?
Do not hesitate to contact us and tell us about your needs and preferences. Our team will conduct a thorough market research to offer you properties that exactly meet your criteria. We have an exceptional portfolio of high-quality and exclusive homes that are available only to our clients. To be the first to receive information about them – contact us.
Additional services
As a valued client of our company, you will have the privilege of using the services of our experienced legal team completely free of charge. In addition, we offer comprehensive solutions, including property insurance, free financial advice, as well as favorable financing conditions. Our services also extend to the field of resale, rental and property management. We provide high-quality renovation and furniture through specialized companies that are part of our corporate group and are our long-standing professional partners.
Viewings
We are ready to organize a viewing of this property at a time convenient for you. Please contact the responsible estate agent and inform them when you would like to have viewings arranged. We can also help you with flight tickets and hotel booking, as well as with travel insurance.
Property reservation
You can reserve this property with a non-refundable deposit of 2,000 Euro, payable by credit card or by bank transfer to our company bank account. After receiving the deposit the property will be marked as reserved, no further viewings will be carried out with other potential buyers, and we will start the preparation of the necessary documents for completion of the deal. Please contact the responsible estate agent for more information about the purchase procedure and the payment methods.
After sale services
We are a reputable company with many years of experience in the real estate business. Thus, we will be with you not only during the purchase process, but also after the deal is completed, providing you with a wide range of additional services tailored to your requirements and needs, so that you can fully enjoy your property in Bulgaria. The after sale services we offer include property insurance, construction and repair works, furnishing, accounting and legal assistance, renewal of contracts for electricity, water, telephone and many more.
View the text in other languages (automatic translation)
Location
This is the approximate location of the property. Please get in contact with us to learn its exact location.
Our top offers for sale in Nessebar, Bulgaria


ORIGINAL: