REF#VAR-130341 / House / district m-t Zelenika / Varna / Varna region / Bulgaria / For sale On the map
Property type - All
House
Location
district m-t Zelenika / Varna / Bulgaria
Number of floors
3
Floor
1
Elevator
no
Bedrooms
4
Bathrooms
4
Parking spaces
2
yes
7.48 sq.m
yes
9.59 sq.m
Building area
277 sq.m
Plot area
380 sq.m
Price 400,000 €
No commission
Request more information or viewing
Zhulieta Bagdasarova
Senior Consultant / Office Varna
Senior Consultant / Office Varna
Info pack
Finishing
unfinished internally
Furnishings
Unfurnished
Internal Walls
Internal insulation
Heating
Air-conditioners / Heat pump
Distance
Distance from the property to major attractions
- Airport : 19.7 km
Views from the property
- Sea views
- Town views
- Views to inner garden
Construction
- Brick-built
- Reinforced concrete structure
Heating
- Air-conditioners
- Heat pump
The text has been translated into English by automatic software and may contain inaccuracies. You can view the text in the original language or translated into other languages:
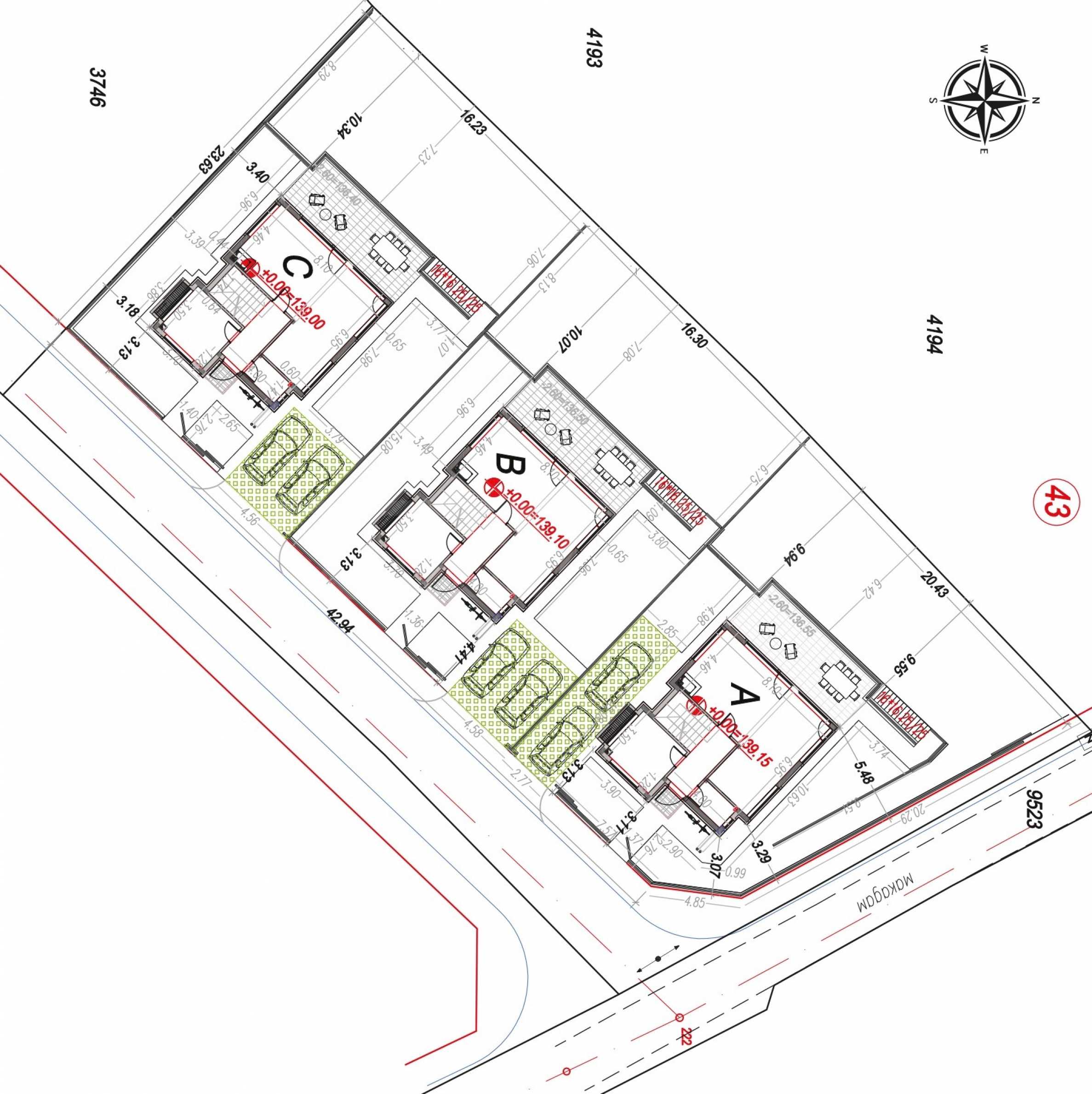
We present a new project of three single-family houses, located in a green and quiet area just 10 minutes by car from the center of Varna.
With building permit and open construction site.
Designed with attention to detail and in line with the most modern requirements for energy efficiency and comfort, the homes combine functional layout, spaciousness and high ceilings with a clean look, natural materials and integration into the natural environment.
Main facilities:
Level 1:
If you would like to arrange a viewing of a property that interests you, or to visit one of our offices, please contact us. To arrange a day and time for a meeting or viewing, you can call the phone number listed in the ad or send an inquiry via e-mail. Our consultant will assist you with all the necessary details and will arrange a time convenient for you.
Are you looking for the right property for you?
Do not hesitate to contact us and tell us about your needs and preferences. Our team will conduct a thorough market research to offer you properties that exactly meet your criteria. We have an exceptional portfolio of high-quality and exclusive homes that are available only to our clients. To be the first to receive information about them – contact us.
Additional services
As a valued client of our company, you will have the privilege of using the services of our experienced legal team completely free of charge. In addition, we offer comprehensive solutions, including property insurance, free financial consulting, as well as favorable financing conditions. Our services also extend to the field of resale, rental and property management. We provide high-quality renovation and furniture through specialized companies that are part of our corporate group and are our long-standing professional partners.
Viewings
We are ready to organize a viewing of this property at a time convenient for you. Please contact the responsible estate agent and inform them when you would like to have viewings arranged. We can also help you with flight tickets and hotel booking, as well as with travel insurance.
Property reservation
You can reserve this property with a non-refundable deposit of 2,000 Euro, payable by credit card or by bank transfer to our company bank account. After receiving the deposit the property will be marked as reserved, no further viewings will be carried out with other potential buyers, and we will start the preparation of the necessary documents for completion of the deal. Please contact the responsible estate agent for more information about the purchase procedure and the payment methods.
After sale services
We are a reputable company with many years of experience in the real estate business. Thus, we will be with you not only during the purchase process, but also after the deal is completed, providing you with a wide range of additional services tailored to your requirements and needs, so that you can fully enjoy your property in Bulgaria. The after sale services we offer include property insurance, construction and repair works, furnishing, accounting and legal assistance, renewal of contracts for electricity, water, telephone and many more.
With building permit and open construction site.
Designed with attention to detail and in line with the most modern requirements for energy efficiency and comfort, the homes combine functional layout, spaciousness and high ceilings with a clean look, natural materials and integration into the natural environment.
Main facilities:
- Total area: 277 sq m;
- Plot for each house: 380 m2., divided into two levels with retaining walls and a veranda;
- Floor height: up to 3.40 m;
- Degree of completion: according to Bulgarian Construction Standards, with the option to choose finishing works.
Level 1:
- separate floor with separate entrance: suitable for a second household or entertainment area (fitness, cinema, tavern);
- Living area: 91 sq m;
- Living area with access to the yard – 54 sq m;
- Bedroom with English courtyard;
- Additional room – for storage, sauna or other;
- Sanitary unit, engine room.
- Main residential floor with access to the upper level yard;
- Spacious living room with kitchen and possibility of a fireplace – 38 sq m;
- Study/bedroom, bathroom with toilet;
- Veranda – 27 m2.;
- Parking for two cars with the possibility of covering.
- Two south-facing children's rooms with a shared terrace;
- Spacious master bedroom with walk-in closet, private bathroom and covered terrace;
- Bathroom with toilet, laundry room, hallway with natural light from a VELUX roof window.
- Monolithic reinforced concrete structure;
- Preparation for underfloor heating, solar panels, heat pump and fireplace;
- High-quality REHAU joinery, triple glazing;
- Facades made of natural stone and silicate-silicone plaster;
- Latest generation thermal and waterproofing;
- Hormann entrance door;
- Fences, paths, facade lighting and preparation for video surveillance and an automated irrigation system have been built.
- Beach: 1 km;
- Supermarket: 500 m;
- Public transport: 300 m;
- School and hospital: 2 km;
- Center of Varna: 10 min by car;
- Varna Airport: 16 km.
If you would like to arrange a viewing of a property that interests you, or to visit one of our offices, please contact us. To arrange a day and time for a meeting or viewing, you can call the phone number listed in the ad or send an inquiry via e-mail. Our consultant will assist you with all the necessary details and will arrange a time convenient for you.
Are you looking for the right property for you?
Do not hesitate to contact us and tell us about your needs and preferences. Our team will conduct a thorough market research to offer you properties that exactly meet your criteria. We have an exceptional portfolio of high-quality and exclusive homes that are available only to our clients. To be the first to receive information about them – contact us.
Additional services
As a valued client of our company, you will have the privilege of using the services of our experienced legal team completely free of charge. In addition, we offer comprehensive solutions, including property insurance, free financial consulting, as well as favorable financing conditions. Our services also extend to the field of resale, rental and property management. We provide high-quality renovation and furniture through specialized companies that are part of our corporate group and are our long-standing professional partners.
Viewings
We are ready to organize a viewing of this property at a time convenient for you. Please contact the responsible estate agent and inform them when you would like to have viewings arranged. We can also help you with flight tickets and hotel booking, as well as with travel insurance.
Property reservation
You can reserve this property with a non-refundable deposit of 2,000 Euro, payable by credit card or by bank transfer to our company bank account. After receiving the deposit the property will be marked as reserved, no further viewings will be carried out with other potential buyers, and we will start the preparation of the necessary documents for completion of the deal. Please contact the responsible estate agent for more information about the purchase procedure and the payment methods.
After sale services
We are a reputable company with many years of experience in the real estate business. Thus, we will be with you not only during the purchase process, but also after the deal is completed, providing you with a wide range of additional services tailored to your requirements and needs, so that you can fully enjoy your property in Bulgaria. The after sale services we offer include property insurance, construction and repair works, furnishing, accounting and legal assistance, renewal of contracts for electricity, water, telephone and many more.
View the text in other languages (automatic translation)
Location
This is the approximate location of the property. Please get in contact with us to learn its exact location.
Our top offers for sale in Varna, Bulgaria


ORIGINAL: