Property type - All
House
Location
Novi Iskar / Bulgaria
Number of floors
2
Bedrooms
3
Bathrooms
2
Parking spaces
2
Building area
183 sq.m
Plot area
315 sq.m
Price -9%
No commission
Buyer pays all transaction costs and notary expenses
Request more information or viewing
Consultant / Office SUPRIMMO Headquarters, Sofia
Distance from the property to major attractions
- Airport : 25 km
Views from the property
- Town views
Construction
- Brick-built
The text has been translated into English by automatic software and may contain inaccuracies. You can view the text in the original language or translated into other languages:
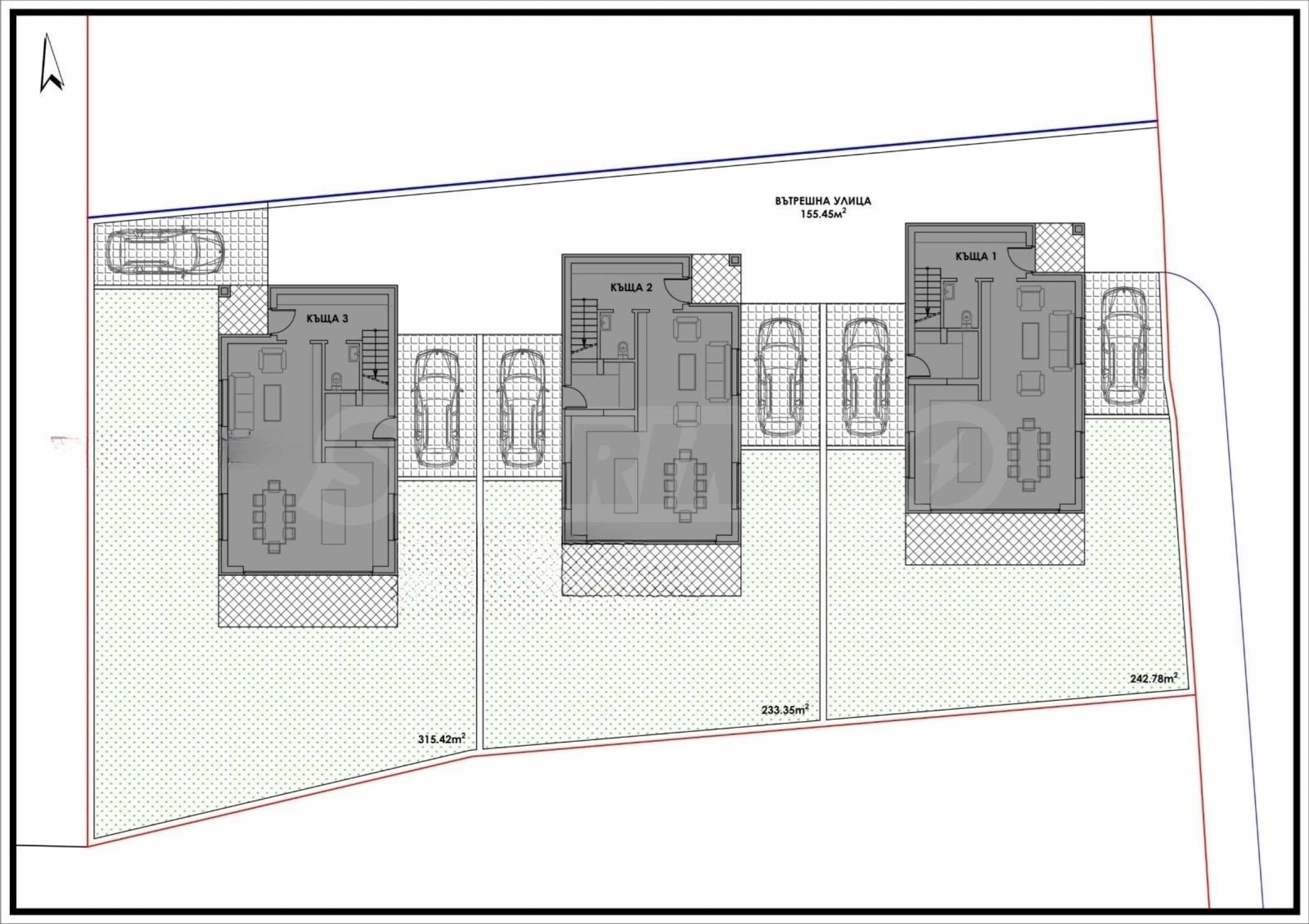
Each home has two parking spaces and its own yard with an area of 315 sq m, which provides a sense of privacy, space for relaxation, children's play or gardening. Access to the properties is facilitated by a shared internal road.
Location
The houses are located in a convenient location, in close proximity to a school, public transport stops and convenient road connections, which provide easy access to the central parts of Sofia. The area offers a peaceful and pleasant atmosphere, close to nature, but at the same time with all the necessary amenities for an urban lifestyle.
Features
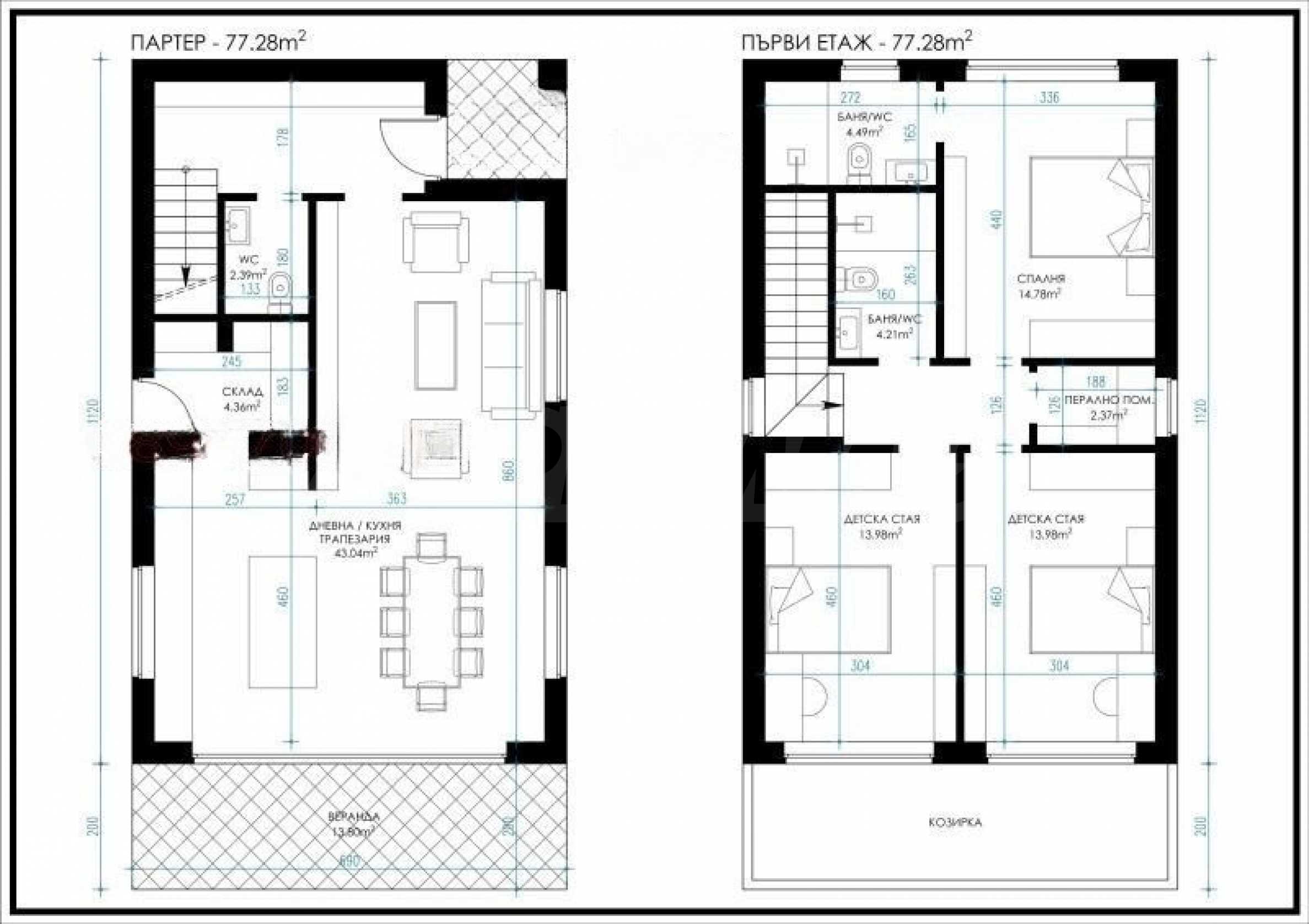
Each property has a total area of 183 sq m, designed with a functional distribution of spaces, providing maximum comfort and convenience:
- floor 1: entrance hall, living room with kitchen and dining room, bathroom, storage room;
- Floor 2: master bedroom with private bathroom with toilet, two bedrooms, laundry room, bathroom with toilet.
They are issued in degrees of completion according to the Bulgarian Civil Code.
Flexible payment plans are offered, tailored to the individual preferences of customers.
We look forward to your inquiry.
If you would like to arrange a viewing of a property that interests you, or to visit one of our offices, please contact us. To arrange a day and time for a meeting or viewing, you can call the phone number listed in the ad or send an inquiry via e-mail. Our consultant will assist you with all the necessary details and will arrange a time convenient for you.
Are you looking for the right property for you?
Do not hesitate to contact us and tell us about your needs and preferences. Our team will conduct a thorough market research to offer you properties that exactly meet your criteria. We have an exceptional portfolio of high-quality and exclusive homes that are available only to our clients. To be the first to receive information about them – contact us.
Additional services
As a valued client of our company, you will have the privilege of using the services of our experienced legal team completely free of charge. In addition, we offer comprehensive solutions, including property insurance, free financial consulting, as well as favorable financing conditions. Our services also extend to the field of resale, rental and property management. We provide high-quality renovation and furniture through specialized companies that are part of our corporate group and are our long-standing professional partners.
Viewings
We are ready to organize a viewing of this property at a time convenient for you. Please contact the responsible estate agent and inform them when you would like to have viewings arranged. We can also help you with flight tickets and hotel booking, as well as with travel insurance.
Property reservation
You can reserve this property with a non-refundable deposit of 2,000 Euro, payable by credit card or by bank transfer to our company bank account. After receiving the deposit the property will be marked as reserved, no further viewings will be carried out with other potential buyers, and we will start the preparation of the necessary documents for completion of the deal. Please contact the responsible estate agent for more information about the purchase procedure and the payment methods.
After sale services
We are a reputable company with many years of experience in the real estate business. Thus, we will be with you not only during the purchase process, but also after the deal is completed, providing you with a wide range of additional services tailored to your requirements and needs, so that you can fully enjoy your property in Bulgaria. The after sale services we offer include property insurance, construction and repair works, furniture, accounting and legal assistance, renewal of contracts for electricity, water, telephone and many more.
This is the approximate location of the property. Please get in contact with us to learn its exact location.


ORIGINAL: