Вид недвижимости
Двухкомнатная квартира
МЕСТОПОЛОЖЕНИЕ
Несебр / Болгария
Класс здания/комплекса
Бизнес плюс
Этажность
5
Этаж
3
Лифт
да
Спальни
1
Ванные комнаты
1
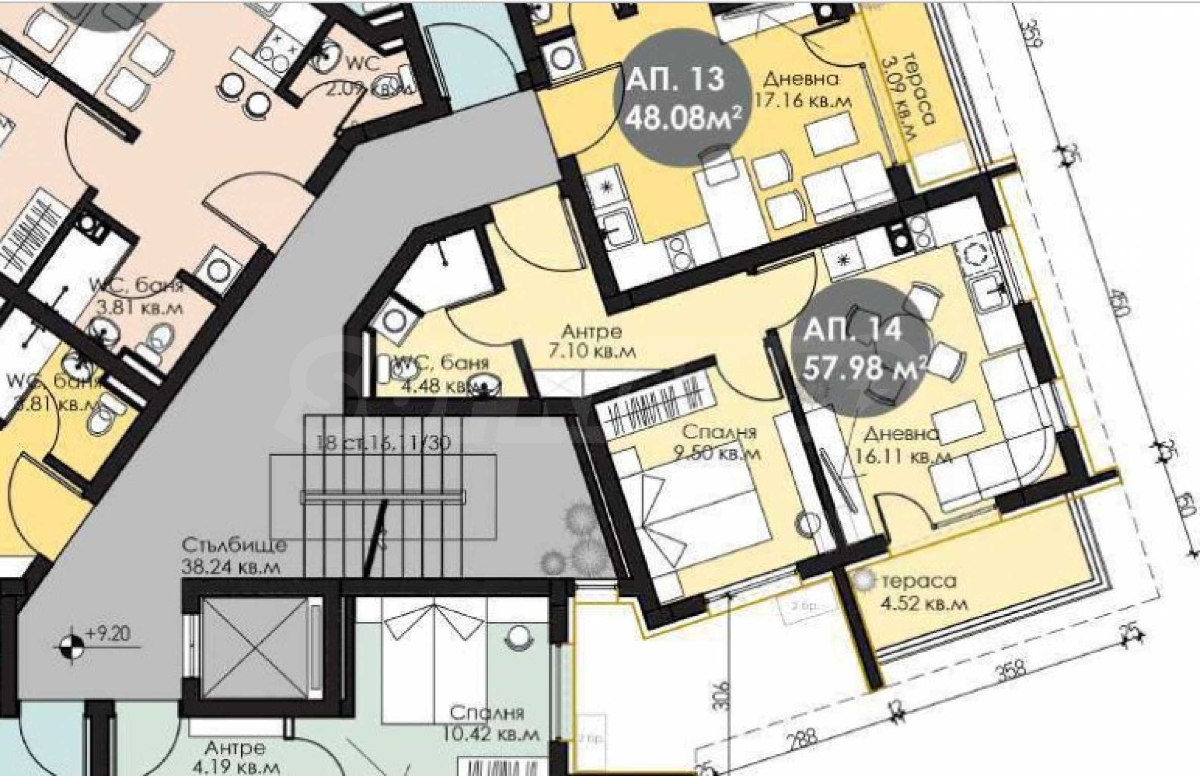
Площадь
57.98 м2
7.24 м2
50.74 м2
Цена 92 765 €
1 600 €/м2
Запрос более подробной информации или осмотра
Сара Ароу
Консультант / Офис Центральный SUPRIMMO, София
Консультант / Офис Центральный SUPRIMMO, София
Инфо пакет
Состояние
болгарский государственный стандарт
Меблировка
Немеблированная
Расстояния
Расстояние от объекта до других важных точек
- Море: 850м
- Аэропорт : 18 км
Виды, открывающиеся из недвижимости
- Виды на город
Этот текст переведен с помощью автоматического программного обеспечения, поэтому в нем не исключаются неточности. Вы можете ознакомиться с текстом на его оригинальном языке или в переводе на другие языки:
Мы эксклюзивно представляем на продажу однокомнатную квартиру в новом элитном жилом комплексе с оригинальным дизайном в престижном районе «Черно Море» города Несебр.
ДО 15-ГО АКТА. 16-Й АКТ – осень 2026 года.
Приобретая квартиру в этом здании, инвестор дарит 5 ночей отдыха на море!
Комплекс состоит из двух секций по пять этажей, отличающихся современной архитектурой и лаконичным дизайном. Четыре этажа отведены под жилые помещения, а первый этаж предназначен для коммерческих и офисных площадей.
Квартира расположена на 3-м этаже и имеет общую площадь 57,98 кв. м, полезная площадь 50,74 кв. м. Квартира спроектирована с учетом комфортного проживания и подходит как для личного пользования, так и для инвестиций.
Распределение:
• гостиная с мини-кухней;
• спальня;
• ванная комната;
• Просторная терраса.
Преимущества проекта:
• Впечатляющий фасад с подвесной клинкерной системой и современным дизайном;
• Большие окна от пола до потолка;
• Декоративное освещение фасада;
• Высококачественные материалы – R?fix, Terazit, Ceresit и Etalbond;
• Роскошные общие зоны с отделкой из натурального камня — травертина и мрамора;
• Лифт «Орона» с индивидуальной кабиной.
Схемы оплаты:
• Предварительный контракт на 30%;
• 50% Закон 14;
• 10% Закон 15;
• 10% Закон 16.
*В зависимости от потребностей клиента также предлагаются индивидуальные планы оплаты.
Мы с нетерпением ждём вашего запроса.
Если вы хотите договориться о просмотре интересующего вас объекта недвижимости или посетить один из наших офисов, пожалуйста, свяжитесь с нами. Чтобы согласовать день и время встречи или просмотра, вы можете позвонить по номеру телефона, указанному в объявлении, или отправить запрос по электронной почте. Наш консультант поможет вам со всеми необходимыми деталями и согласует удобное для вас время.
Вы ищете подходящую недвижимость?
Не стесняйтесь обращаться к нам и рассказывать о ваших потребностях и предпочтениях. Наша команда проведет тщательное исследование рынка, чтобы предложить вам объекты недвижимости, точно соответствующие вашим критериям. У нас есть исключительное портфолио высококачественных и эксклюзивных домов, доступных только нашим клиентам. Чтобы первыми получать информацию о них – свяжитесь с нами.
Дополнительные услуги
Как ценный клиент нашей компании, вы получите привилегию пользоваться услугами нашей опытной юридической команды совершенно бесплатно. Кроме того, мы предлагаем комплексные решения, включая страхование недвижимости, бесплатные финансовые консультации, а также выгодные условия финансирования. Наши услуги также распространяются на сферу перепродажи, аренды и управления недвижимостью. Мы предоставляем высококачественные услуги по ремонту и меблировке через специализированные компании, входящие в нашу корпоративную группу и являющиеся нашими давними профессиональными партнерами.
Смотр недвижимости
Мы готовы организовать смотр недвижимости в удобное для вас время. Обратитесь к ответственному менеджеру по продажам и проинформируйте его, когда бы Вы хотели приехать на смотровой тур. Мы можем помочь Вам забронировать авиабилет и отель, а также помочь Вам оформить визу и необходимую страховку.
Бронирование недвижимости
Вы можете забронировать недвижимость, заплатив невозмещаемый задаток в размере 2 000 евро наличным платежом, кредитной картой или банковским переводом на фирменный счет компании. После получения задатка недвижимость бронируется, осмотры с другими потенциальными покупателями производиться не будут, и начнется изготовление необходимых документов по оформлению сделки. Пожалуйста, обратитесь к ответственному за данный объект менеджеру по продажам для получения подробной информации относительно процедуры покупки и способов оплаты.
Послепродажное обслуживание
Мы уважаемая компания, за плечами которой многолетний опыт работы в сфере недвижимости. Мы будем сопровождать Вас не только во время покупки, но и после приобретения недвижимости, обеспечивая Вам дополнительный набор услуг с учетом Ваших требовании, для того, чтобы Вы могли насладиться полноценным и спокойным времяпровождением в Болгарии. Услуги, которые мы можем предложить, включают страхование, строительство и ремонт, услуги по меблировке, бухгалтерские и юридическиe услуги, переоформление договоров на электричество, воду, телефон и многое другое.
ДО 15-ГО АКТА. 16-Й АКТ – осень 2026 года.
Приобретая квартиру в этом здании, инвестор дарит 5 ночей отдыха на море!
Комплекс состоит из двух секций по пять этажей, отличающихся современной архитектурой и лаконичным дизайном. Четыре этажа отведены под жилые помещения, а первый этаж предназначен для коммерческих и офисных площадей.
Квартира расположена на 3-м этаже и имеет общую площадь 57,98 кв. м, полезная площадь 50,74 кв. м. Квартира спроектирована с учетом комфортного проживания и подходит как для личного пользования, так и для инвестиций.
Распределение:
• гостиная с мини-кухней;
• спальня;
• ванная комната;
• Просторная терраса.
Преимущества проекта:
• Впечатляющий фасад с подвесной клинкерной системой и современным дизайном;
• Большие окна от пола до потолка;
• Декоративное освещение фасада;
• Высококачественные материалы – R?fix, Terazit, Ceresit и Etalbond;
• Роскошные общие зоны с отделкой из натурального камня — травертина и мрамора;
• Лифт «Орона» с индивидуальной кабиной.
Схемы оплаты:
• Предварительный контракт на 30%;
• 50% Закон 14;
• 10% Закон 15;
• 10% Закон 16.
*В зависимости от потребностей клиента также предлагаются индивидуальные планы оплаты.
Мы с нетерпением ждём вашего запроса.
Если вы хотите договориться о просмотре интересующего вас объекта недвижимости или посетить один из наших офисов, пожалуйста, свяжитесь с нами. Чтобы согласовать день и время встречи или просмотра, вы можете позвонить по номеру телефона, указанному в объявлении, или отправить запрос по электронной почте. Наш консультант поможет вам со всеми необходимыми деталями и согласует удобное для вас время.
Вы ищете подходящую недвижимость?
Не стесняйтесь обращаться к нам и рассказывать о ваших потребностях и предпочтениях. Наша команда проведет тщательное исследование рынка, чтобы предложить вам объекты недвижимости, точно соответствующие вашим критериям. У нас есть исключительное портфолио высококачественных и эксклюзивных домов, доступных только нашим клиентам. Чтобы первыми получать информацию о них – свяжитесь с нами.
Дополнительные услуги
Как ценный клиент нашей компании, вы получите привилегию пользоваться услугами нашей опытной юридической команды совершенно бесплатно. Кроме того, мы предлагаем комплексные решения, включая страхование недвижимости, бесплатные финансовые консультации, а также выгодные условия финансирования. Наши услуги также распространяются на сферу перепродажи, аренды и управления недвижимостью. Мы предоставляем высококачественные услуги по ремонту и меблировке через специализированные компании, входящие в нашу корпоративную группу и являющиеся нашими давними профессиональными партнерами.
Смотр недвижимости
Мы готовы организовать смотр недвижимости в удобное для вас время. Обратитесь к ответственному менеджеру по продажам и проинформируйте его, когда бы Вы хотели приехать на смотровой тур. Мы можем помочь Вам забронировать авиабилет и отель, а также помочь Вам оформить визу и необходимую страховку.
Бронирование недвижимости
Вы можете забронировать недвижимость, заплатив невозмещаемый задаток в размере 2 000 евро наличным платежом, кредитной картой или банковским переводом на фирменный счет компании. После получения задатка недвижимость бронируется, осмотры с другими потенциальными покупателями производиться не будут, и начнется изготовление необходимых документов по оформлению сделки. Пожалуйста, обратитесь к ответственному за данный объект менеджеру по продажам для получения подробной информации относительно процедуры покупки и способов оплаты.
Послепродажное обслуживание
Мы уважаемая компания, за плечами которой многолетний опыт работы в сфере недвижимости. Мы будем сопровождать Вас не только во время покупки, но и после приобретения недвижимости, обеспечивая Вам дополнительный набор услуг с учетом Ваших требовании, для того, чтобы Вы могли насладиться полноценным и спокойным времяпровождением в Болгарии. Услуги, которые мы можем предложить, включают страхование, строительство и ремонт, услуги по меблировке, бухгалтерские и юридическиe услуги, переоформление договоров на электричество, воду, телефон и многое другое.
Прочтите текст на других языках (автоматический перевод)
МЕСТОПОЛОЖЕНИЕ
На карте с красным маркером указано приблизительное месторасположение этой недвижимости/комплекса.
Наши лучшие предложения по продажа Несебр, Болгария


ORIGINAL: