Вид недвижимости
Двухкомнатная квартира
МЕСТОПОЛОЖЕНИЕ
квартал Центр / Солнечный берег / Болгария
Этажность
7
Этаж
5
Спальни
1
Ванные комнаты
1
Площадь
54 м2
Получен Акт 16
Цена 145 300 €
2 691 €/м2
Запрос более подробной информации или осмотра
Радослава Маринова
Консультант / Офис Несебр
Консультант / Офис Несебр
Инфо пакет
Состояние
Меблировка
Полностью меблированная
Ванные комнаты
Душевая, Оборудованная ванная комната
Отопление
Отопление кондиционером
Расстояния
Расстояние от объекта до других важных точек
- Море: 500м
- Аэропорт : 30 км
Виды, открывающиеся из недвижимости
- Виды на бассейн
- Виды на внутренний двор
Строительство
- Кирпич
Отопление
- Отопление кондиционером
Кондиционирование
- Инвенторные кондиционеры
Этот текст переведен с помощью автоматического программного обеспечения, поэтому в нем не исключаются неточности. Вы можете ознакомиться с текстом на его оригинальном языке или в переводе на другие языки:
Предлагаем к продаже однокомнатную квартиру в роскошном закрытом жилом комплексе в 500 метрах от пляжа, в центральной части Солнечного Берега.
Есть 16-й акт.
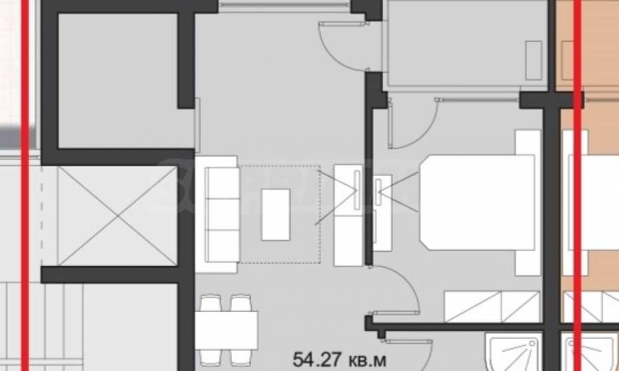
Квартира общей площадью 54 кв. м расположена на 5-м этаже и имеет вид на бассейн.
Распределение:
• вестибюль;
• гостиная с кухней;
• спальня;
• ванная комната с туалетом и подогревом пола;
• гардероб;
• терраса.
Квартира полностью отделана, качественно меблирована и готова к заселению. Мебель подобрана в соответствии с дизайнерским проектом с использованием высококачественного оборудования.
О комплексе
Роскошный комплекс выделяется привлекательным фасадом и балконами, украшенными многочисленными эффектными и красивыми орнаментами. Комплекс огорожен снаружи, имеет красивое озеленение, современные лифты, цветочный сад и ночное освещение, которые подчеркивают элегантный архитектурный стиль здания.
Инфраструктура на территории:
• Круглосуточная охрана – контролируемый доступ и видеонаблюдение;
• круглогодичный прием;
• Открытый бассейн для взрослых и детей;
• мини-бар для отдыха;
• игровая площадка для самых маленьких;
• парковка;
• Круглогодичное техническое обслуживание и управление;
• Зона для барбекю.
Мы с нетерпением ждём вашего запроса.
Если вы хотите договориться о просмотре интересующего вас объекта недвижимости или посетить один из наших офисов, пожалуйста, свяжитесь с нами. Чтобы согласовать день и время встречи или просмотра, вы можете позвонить по номеру телефона, указанному в объявлении, или отправить запрос по электронной почте. Наш консультант поможет вам со всеми необходимыми деталями и согласует удобное для вас время.
Вы ищете подходящую недвижимость?
Не стесняйтесь обращаться к нам и рассказывать о ваших потребностях и предпочтениях. Наша команда проведет тщательное исследование рынка, чтобы предложить вам объекты недвижимости, точно соответствующие вашим критериям. У нас есть исключительное портфолио высококачественных и эксклюзивных домов, доступных только нашим клиентам. Чтобы первыми получать информацию о них – свяжитесь с нами.
Дополнительные услуги
Как ценный клиент нашей компании, вы получите привилегию пользоваться услугами нашей опытной юридической команды совершенно бесплатно. Кроме того, мы предлагаем комплексные решения, включая страхование недвижимости, бесплатные финансовые консультации, а также выгодные условия финансирования. Наши услуги также распространяются на сферу перепродажи, аренды и управления недвижимостью. Мы предоставляем высококачественные услуги по ремонту и меблировке через специализированные компании, входящие в нашу корпоративную группу и являющиеся нашими давними профессиональными партнерами.
Смотр недвижимости
Мы готовы организовать смотр недвижимости в удобное для вас время. Обратитесь к ответственному менеджеру по продажам и проинформируйте его, когда бы Вы хотели приехать на смотровой тур. Мы можем помочь Вам забронировать авиабилет и отель, а также помочь Вам оформить визу и необходимую страховку.
Бронирование недвижимости
Вы можете забронировать недвижимость, заплатив невозмещаемый задаток в размере 2 000 евро наличным платежом, кредитной картой или банковским переводом на фирменный счет компании. После получения задатка недвижимость бронируется, осмотры с другими потенциальными покупателями производиться не будут, и начнется изготовление необходимых документов по оформлению сделки. Пожалуйста, обратитесь к ответственному за данный объект менеджеру по продажам для получения подробной информации относительно процедуры покупки и способов оплаты.
Послепродажное обслуживание
Мы уважаемая компания, за плечами которой многолетний опыт работы в сфере недвижимости. Мы будем сопровождать Вас не только во время покупки, но и после приобретения недвижимости, обеспечивая Вам дополнительный набор услуг с учетом Ваших требовании, для того, чтобы Вы могли насладиться полноценным и спокойным времяпровождением в Болгарии. Услуги, которые мы можем предложить, включают страхование, строительство и ремонт, услуги по меблировке, бухгалтерские и юридическиe услуги, переоформление договоров на электричество, воду, телефон и многое другое.
Есть 16-й акт.
Квартира общей площадью 54 кв. м расположена на 5-м этаже и имеет вид на бассейн.
Распределение:
• вестибюль;
• гостиная с кухней;
• спальня;
• ванная комната с туалетом и подогревом пола;
• гардероб;
• терраса.
Квартира полностью отделана, качественно меблирована и готова к заселению. Мебель подобрана в соответствии с дизайнерским проектом с использованием высококачественного оборудования.
О комплексе
Роскошный комплекс выделяется привлекательным фасадом и балконами, украшенными многочисленными эффектными и красивыми орнаментами. Комплекс огорожен снаружи, имеет красивое озеленение, современные лифты, цветочный сад и ночное освещение, которые подчеркивают элегантный архитектурный стиль здания.
Инфраструктура на территории:
• Круглосуточная охрана – контролируемый доступ и видеонаблюдение;
• круглогодичный прием;
• Открытый бассейн для взрослых и детей;
• мини-бар для отдыха;
• игровая площадка для самых маленьких;
• парковка;
• Круглогодичное техническое обслуживание и управление;
• Зона для барбекю.
Мы с нетерпением ждём вашего запроса.
Если вы хотите договориться о просмотре интересующего вас объекта недвижимости или посетить один из наших офисов, пожалуйста, свяжитесь с нами. Чтобы согласовать день и время встречи или просмотра, вы можете позвонить по номеру телефона, указанному в объявлении, или отправить запрос по электронной почте. Наш консультант поможет вам со всеми необходимыми деталями и согласует удобное для вас время.
Вы ищете подходящую недвижимость?
Не стесняйтесь обращаться к нам и рассказывать о ваших потребностях и предпочтениях. Наша команда проведет тщательное исследование рынка, чтобы предложить вам объекты недвижимости, точно соответствующие вашим критериям. У нас есть исключительное портфолио высококачественных и эксклюзивных домов, доступных только нашим клиентам. Чтобы первыми получать информацию о них – свяжитесь с нами.
Дополнительные услуги
Как ценный клиент нашей компании, вы получите привилегию пользоваться услугами нашей опытной юридической команды совершенно бесплатно. Кроме того, мы предлагаем комплексные решения, включая страхование недвижимости, бесплатные финансовые консультации, а также выгодные условия финансирования. Наши услуги также распространяются на сферу перепродажи, аренды и управления недвижимостью. Мы предоставляем высококачественные услуги по ремонту и меблировке через специализированные компании, входящие в нашу корпоративную группу и являющиеся нашими давними профессиональными партнерами.
Смотр недвижимости
Мы готовы организовать смотр недвижимости в удобное для вас время. Обратитесь к ответственному менеджеру по продажам и проинформируйте его, когда бы Вы хотели приехать на смотровой тур. Мы можем помочь Вам забронировать авиабилет и отель, а также помочь Вам оформить визу и необходимую страховку.
Бронирование недвижимости
Вы можете забронировать недвижимость, заплатив невозмещаемый задаток в размере 2 000 евро наличным платежом, кредитной картой или банковским переводом на фирменный счет компании. После получения задатка недвижимость бронируется, осмотры с другими потенциальными покупателями производиться не будут, и начнется изготовление необходимых документов по оформлению сделки. Пожалуйста, обратитесь к ответственному за данный объект менеджеру по продажам для получения подробной информации относительно процедуры покупки и способов оплаты.
Послепродажное обслуживание
Мы уважаемая компания, за плечами которой многолетний опыт работы в сфере недвижимости. Мы будем сопровождать Вас не только во время покупки, но и после приобретения недвижимости, обеспечивая Вам дополнительный набор услуг с учетом Ваших требовании, для того, чтобы Вы могли насладиться полноценным и спокойным времяпровождением в Болгарии. Услуги, которые мы можем предложить, включают страхование, строительство и ремонт, услуги по меблировке, бухгалтерские и юридическиe услуги, переоформление договоров на электричество, воду, телефон и многое другое.
Прочтите текст на других языках (автоматический перевод)
МЕСТОПОЛОЖЕНИЕ
На карте с красным маркером указано приблизительное месторасположение этой недвижимости/комплекса.
Наши лучшие предложения по продажа Солнечный берег, Болгария


ORIGINAL: