Вид недвижимости
Трехкомнатная квартира
МЕСТОПОЛОЖЕНИЕ
квартал Овча Купел 2 / София / Болгария
Этажность
5
Этаж
1
Лифт
да
Спальни
2
Ванные комнаты
1
Площадь
100.43 м2
10 м2
90.43 м2
Цена 165 000 € (без НДС)
1 643 €/м2 (без НДС)
Без комиссии от покупателя
Все расходы за счет покупателя
Запрос более подробной информации или осмотра
Консультант / Офис BARNES Bulgaria (Ассоциированный партнер)
Расстояние от объекта до других важных точек
Виды, открывающиеся из недвижимости
- Виды на внутренний двор
- Виды на горы
Строительство
- Кирпич
Отопление
- Центральное отопление
Этот текст переведен с помощью автоматического программного обеспечения, поэтому в нем не исключаются неточности. Вы можете ознакомиться с текстом на его оригинальном языке или в переводе на другие языки:
Этот современный закрытый жилой комплекс предлагает высокое качество жизни и безопасность. Он состоит из 7 жилых зданий, построенных в соответствии с современными строительными стандартами. Каждое здание оборудовано лифтом, обеспечивающим доступ на подземные уровни.
Комплекс отличается превосходным расположением: всего в 300 метрах от станции метро «Горна Баня», что обеспечивает быстрое и удобное сообщение с центром города и другими районами. В непосредственной близости находятся такие магазины, как Lidl и Billa, а также больница «Доверие», что способствует комфорту повседневной жизни.
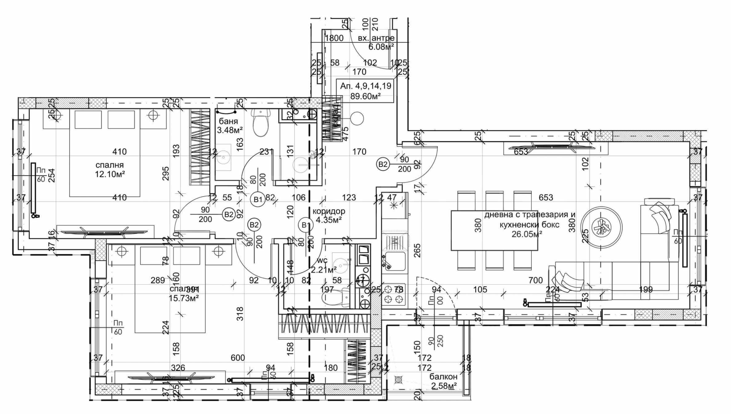
Описание квартиры
Квартира расположена на 1-м этаже над цокольным и имеет общую площадь 100 кв. м, из которых 8 кв. м занимают общие зоны.
Функциональное распределение включает в себя:
• Гостиная с обеденной зоной и мини-кухней;
• Две спальни;
• Ванная комната с туалетом;
• Туалет;
• Коридор;
• Терраса.
Особенности комплекса
Проект ориентирован на обеспечение высокого уровня звуко- и теплоизоляции. В строительстве использованы высококачественные немецкие шестикамерные ПВХ-панели с тройным остеклением. Фасады заполнены 12-сантиметровым слоем теплоизоляции BAUMIT, гарантирующим энергоэффективность.
Планируется использовать систему центрального отопления (ТЭЦ) для подачи тепла.
Двор комплекса занимает площадь в 10 акров и включает в себя игровую площадку для самых маленьких жителей.
Состояние имущества на момент выдачи
Квартиры сдаются в состоянии готовности, соответствующем болгарским строительным стандартам – со штукатуркой и стяжкой, с установленными бронированными входными дверями. Предусмотрена возможность установки кондиционеров, проложены необходимые трубы и электропроводка.
План строительства
Комплекс находится в стадии строительства, и ожидается, что ACT 16 будет сдан в эксплуатацию в 2027 году.
Смотр недвижимости
Мы готовы организовать смотр недвижимости в удобное для вас время. Обратитесь к ответственному менеджеру по продажам и проинформируйте его, когда бы Вы хотели приехать на смотровой тур. Мы можем помочь Вам забронировать авиабилет и отель, а также помочь Вам оформить визу и необходимую страховку.
Бронирование недвижимости
Вы можете забронировать недвижимость, заплатив невозмещаемый задаток в размере 2 000 евро наличным платежом, кредитной картой или банковским переводом на фирменный счет компании. После получения задатка недвижимость бронируется, осмотры с другими потенциальными покупателями производиться не будут, и начнется изготовление необходимых документов по оформлению сделки. Пожалуйста, обратитесь к ответственному за данный объект менеджеру по продажам для получения подробной информации относительно процедуры покупки и способов оплаты.
Послепродажное обслуживание
Мы уважаемая компания, за плечами которой многолетний опыт работы в сфере недвижимости. Мы будем сопровождать Вас не только во время покупки, но и после приобретения недвижимости, обеспечивая Вам дополнительный набор услуг с учетом Ваших требовании, для того, чтобы Вы могли насладиться полноценным и спокойным времяпровождением в Болгарии. Услуги, которые мы можем предложить, включают страхование, строительство и ремонт, услуги по меблировке, бухгалтерские и юридическиe услуги, переоформление договоров на электричество, воду, телефон и многое другое.
На карте с красным маркером указано приблизительное месторасположение этой недвижимости/комплекса.


ORIGINAL: