REF#Kbs 136883 / Дом / с. Долни Лозен / Софийская область / Болгария / Продажа На карте
Вид недвижимости
Дом
МЕСТОПОЛОЖЕНИЕ
Долни Лозен / Болгария
Этажность
2
Лифт
нет
Спальни
4
Ванные комнаты
3
Гаражи
2
да
3 м2
Площадь здания
262 м2
Площадь участка
358 м2
Цена 665 000 €
Без комиссии от покупателя
Запрос более подробной информации или осмотра
Консультант / Офис Восточные, София
Расстояние от объекта до других важных точек
- Центр города: 9 км
- Аэропорт : 22 км
Виды, открывающиеся из недвижимости
- Виды на горы
- Виды на лес
- Виды на село
- Виды на холмы
Отопление
- Газовая система отопления
Этот текст переведен с помощью автоматического программного обеспечения, поэтому в нем не исключаются неточности. Вы можете ознакомиться с текстом на его оригинальном языке или в переводе на другие языки:
Объект недвижимости расположен в центральной части поселка, с прямым доступом для автомобилей и пешеходов, на главной улице, которая обслуживается круглый год.
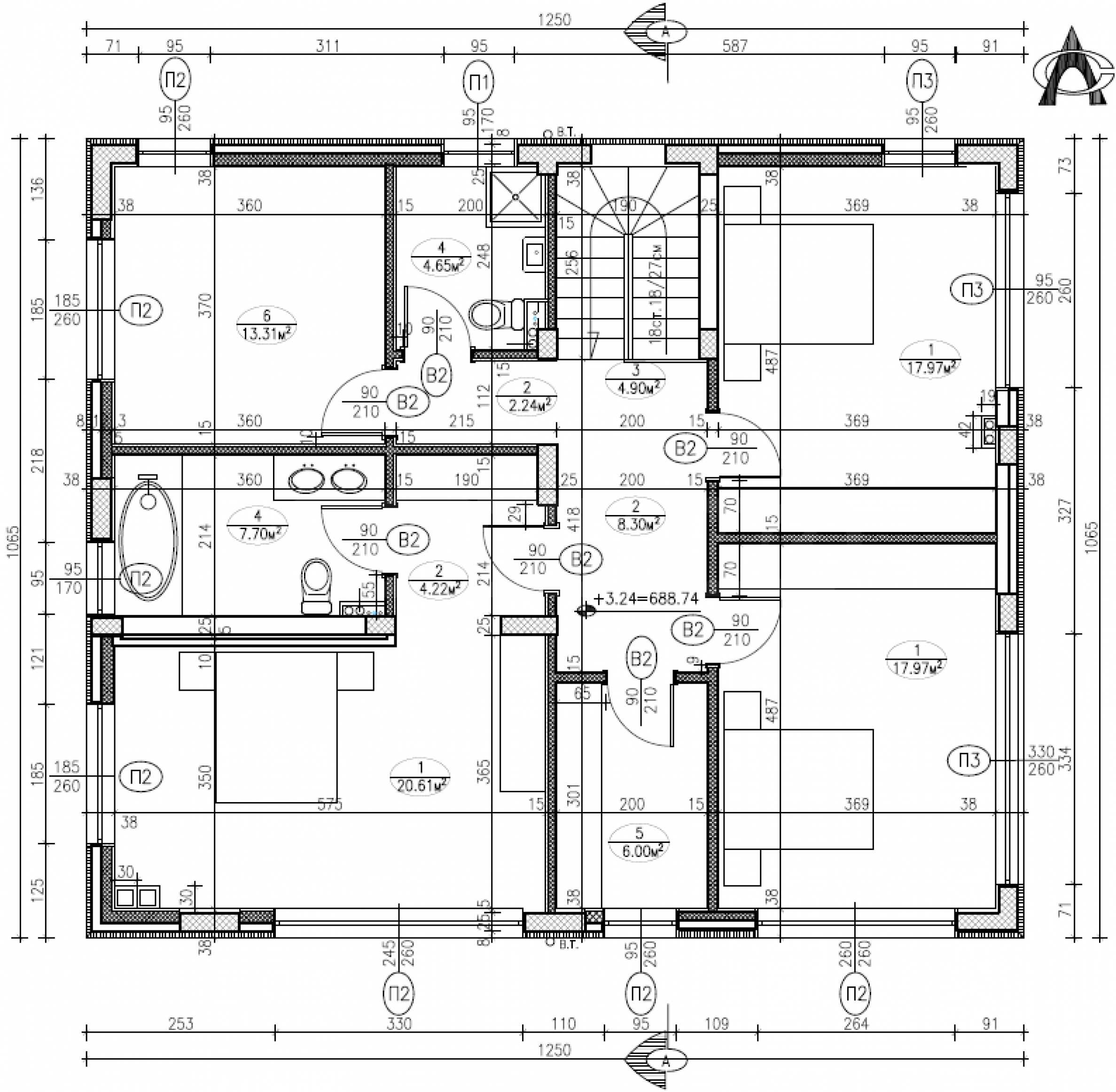
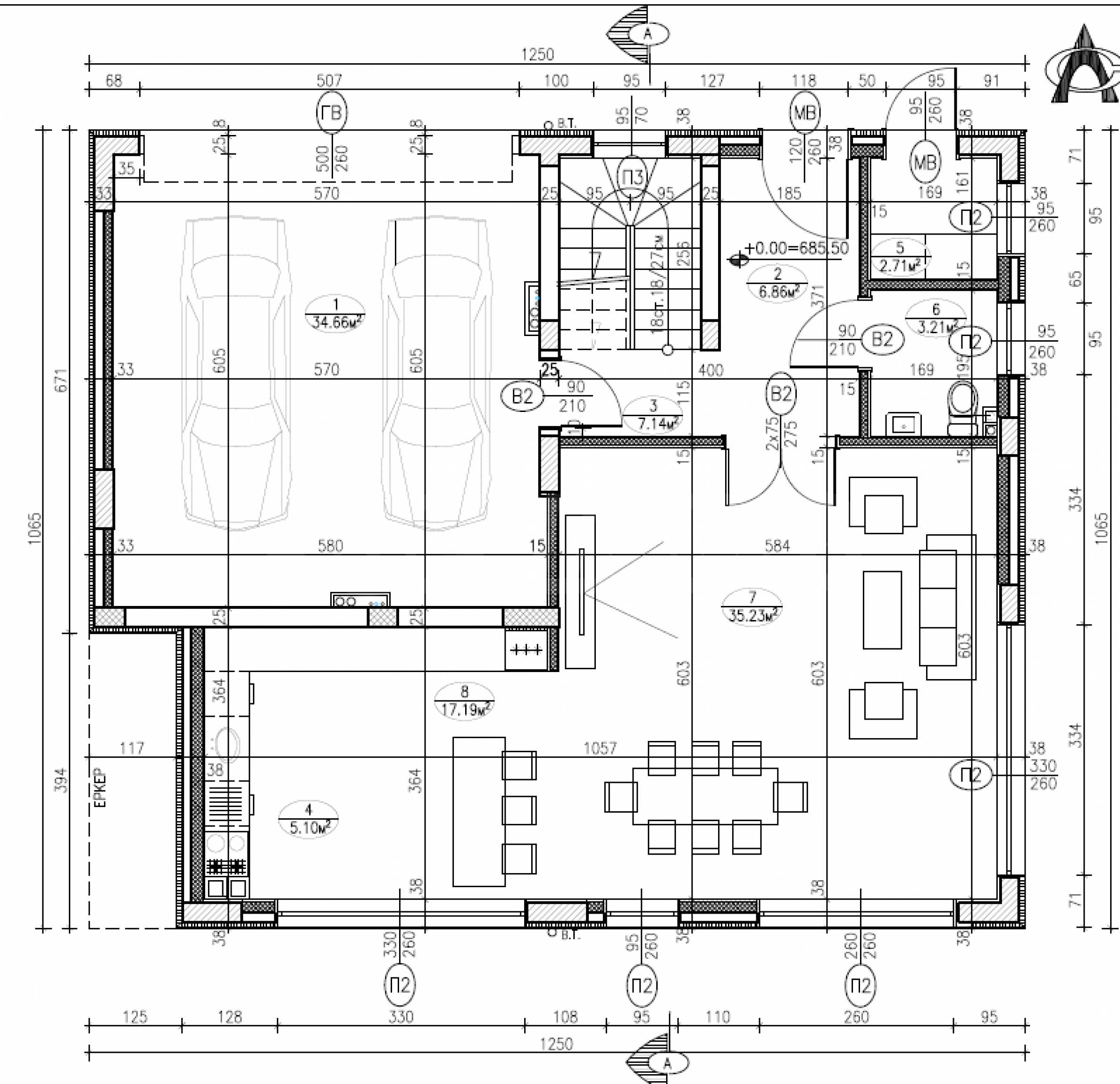
Общая площадь застройки здания составляет 261,64 кв. м, оно спроектировано с четкой функциональной планировкой на двух уровнях. Планируемая дата завершения строительства — ноябрь 2026 года.
Распределение:
• На первом этаже расположены гостиная с кухонным уголком и обеденной зоной, прихожая, ванная комната, техническое помещение, лестница, гараж на две машины с теплым подключением к квартире, а также веранда с прямым выходом во двор. Гостиная ориентирована на юг и запад.
• Второй этаж организован как ночлежная зона и включает три спальни площадью 18 кв. м, 18 кв. м и 25 кв. м, при этом главная спальня имеет отдельную ванную комнату. Кроме того, предусмотрены вторая ванная комната, кабинет площадью 14 кв. м (возможность обустройства гостевой спальни), прачечная, коридор и лестница. Все жилые помещения ориентированы на юг, восток и запад.
Проект представляет собой мини-комплекс из трех независимых одноквартирных домов, расположенных на регулируемом земельном участке площадью 1076 кв. м. Каждый дом имеет собственный двор, отдельный подъезд, парковочное место на открытом воздухе и гараж. Расстояние между зданиями составляет 7,2 м, что обеспечивает отсутствие прямой видимости между основными жилыми помещениями.
Здание спроектировано с использованием железобетонной бесбалочной конструкции, плоской крыши с тепло- и водонепроницаемой изоляцией и фасадной системы, сочетающей теплоизоляцию и алюминиевые композитные панели. Деревянные элементы выполнены из алюминия с разрушенными тепловыми мостиками и тройным остеклением. Внутренние стены и потолки отделаны гипсокартоном с дополнительной тепло- и звукоизоляцией. Отопление осуществляется системой подогрева пола, электропроводка и электрооснащение полностью смонтированы.
Объект полностью охранён, к нему примыкает вся необходимая инфраструктура: электроснабжение, централизованное водоснабжение, газификация и канализация.
Придомовая территория оформлена с использованием мощения, веранды с настилом из древесно-полимерного композита, автоматической системы полива, наружного освещения и ограждения с контролем доступа.
Расположение проекта в деревне Лозен обеспечивает быстрый доступ к Софии, развитой дорожной и коммерческой инфраструктуре, а также полному спектру коммунальных услуг. Местность ровная, с четырьмя открытыми участками и основной южной ориентацией.
Мы с нетерпением ждём вашего запроса.
Если вы хотите договориться о просмотре интересующего вас объекта недвижимости или посетить один из наших офисов, пожалуйста, свяжитесь с нами. Чтобы согласовать день и время встречи или просмотра, вы можете позвонить по номеру телефона, указанному в объявлении, или отправить запрос по электронной почте. Наш консультант поможет вам со всеми необходимыми деталями и согласует удобное для вас время.
Вы ищете подходящую недвижимость?
Не стесняйтесь обращаться к нам и рассказывать о ваших потребностях и предпочтениях. Наша команда проведет тщательное исследование рынка, чтобы предложить вам объекты недвижимости, точно соответствующие вашим критериям. У нас есть исключительное портфолио высококачественных и эксклюзивных домов, доступных только нашим клиентам. Чтобы первыми получать информацию о них – свяжитесь с нами.
Дополнительные услуги
Как ценный клиент нашей компании, вы получите привилегию пользоваться услугами нашей опытной юридической команды совершенно бесплатно. Кроме того, мы предлагаем комплексные решения, включая страхование недвижимости, бесплатные финансовые консультации, а также выгодные условия финансирования. Наши услуги также распространяются на сферу перепродажи, аренды и управления недвижимостью. Мы предоставляем высококачественные услуги по ремонту и меблировке через специализированные компании, входящие в нашу корпоративную группу и являющиеся нашими давними профессиональными партнерами.
Смотр недвижимости
Мы готовы организовать смотр недвижимости в удобное для вас время. Обратитесь к ответственному менеджеру по продажам и проинформируйте его, когда бы Вы хотели приехать на смотровой тур. Мы можем помочь Вам забронировать авиабилет и отель, а также помочь Вам оформить визу и необходимую страховку.
Бронирование недвижимости
Вы можете забронировать недвижимость, заплатив невозмещаемый задаток в размере 2 000 евро наличным платежом, кредитной картой или банковским переводом на фирменный счет компании. После получения задатка недвижимость бронируется, осмотры с другими потенциальными покупателями производиться не будут, и начнется изготовление необходимых документов по оформлению сделки. Пожалуйста, обратитесь к ответственному за данный объект менеджеру по продажам для получения подробной информации относительно процедуры покупки и способов оплаты.
Послепродажное обслуживание
Мы уважаемая компания, за плечами которой многолетний опыт работы в сфере недвижимости. Мы будем сопровождать Вас не только во время покупки, но и после приобретения недвижимости, обеспечивая Вам дополнительный набор услуг с учетом Ваших требовании, для того, чтобы Вы могли насладиться полноценным и спокойным времяпровождением в Болгарии. Услуги, которые мы можем предложить, включают страхование, строительство и ремонт, услуги по меблировке, бухгалтерские и юридическиe услуги, переоформление договоров на электричество, воду, телефон и многое другое.
На карте с красным маркером указано приблизительное месторасположение этой недвижимости/комплекса.


ORIGINAL: