Вид недвижимости
Трехкомнатная квартира
МЕСТОПОЛОЖЕНИЕ
Созополь / Болгария
Этажность
4
Этаж
3
Лифт
да
Спальни
2
Ванные комнаты
1
Площадь
106.12 м2
16.07 м2
90.05 м2
Цена 171 000 €
1 611 €/м2
Все расходы за счет покупателя
Запрос более подробной информации или осмотра
инж. Валентина Ангелова
Консультант / Офис Созополь
Консультант / Офис Созополь
Инфо пакет
Состояние
болгарский государственный стандарт
Меблировка
Немеблированная
Окна
Окна ПВХ
Расстояния
Расстояние от объекта до других важных точек
- Море: 500м
- Аэропорт : 44 км
Строительство
- Кирпич
Этот текст переведен с помощью автоматического программного обеспечения, поэтому в нем не исключаются неточности. Вы можете ознакомиться с текстом на его оригинальном языке или в переводе на другие языки:
Предлагаем к продаже двухкомнатную квартиру с собственным двориком в новом, привлекательном доме с отличным расположением в самом центре нового района Созополя — «Мисария». Квартира находится в 500 метрах от пляжа Хармани и в непосредственной близости от стадиона, будущей больницы, школы, магазинов, ресторанов и других объектов инфраструктуры.
Существует 14-й акт. Ожидается, что 16-й акт выйдет в декабре 2026 года.
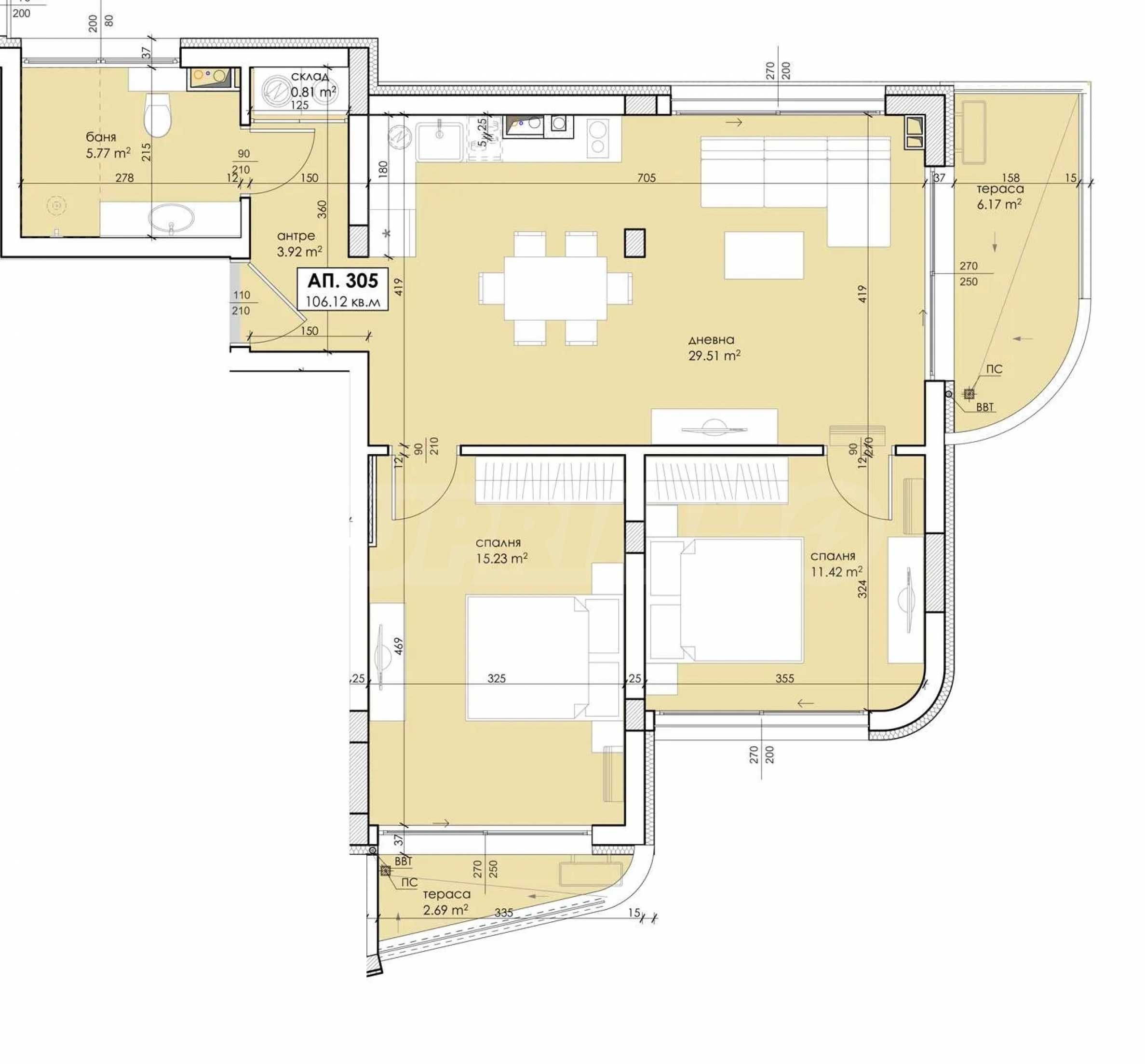
Объект недвижимости расположен на третьем этаже и имеет общую площадь 106,12 кв. м с ориентацией на восток, север и юг.
Распределение:
• вестибюль/коридор;
• гостиная с кухней;
• две спальни;
• ванная комната с туалетом;
• две террасы.
Квартира сдается в аренду в следующей степени готовности в соответствии с Гражданским кодексом Болгарии:
• ПВХ-панели для столярных работ – SALAMANDER 76;
• Подоконники из натурального камня;
• Входные двери в квартиры, защищенные от взлома;
• Стены и потолки: известково-цементная штукатурка с угловыми профилями;
• Полы: цементная стяжка;
• Балкон с оштукатуренным фасадом и установленными осветительными приборами;
• Гидроизоляция битумной плиткой, обожженной на газовом топливе, толщиной 3 мм, плиткой Venus и гранитной плиткой;
• Перила – согласно проекту.
Возможна отделка "под ключ", а также меблировка за дополнительную плату.
Квартира подходит как для круглогодичного проживания, так и для отдыха.
О здании
Здание имеет 4 этажа, отличается привлекательным дизайном, включает двух- и трехкомнатные квартиры, а также 18 парковочных мест на поверхности и под землей. Въезд в подземный гараж оборудован пандусом, ведущим через двор и на улицу.
Технические упомянутых указанных отличительных указанных характеристики:
• Лестницы и общие зоны: гранитная плитка или камень;
• Стены и потолки: штукатурка и латекс;
• Перила – согласно проекту;
• установлены гидравлические подъемники;
• Гидроизоляция кровли: битумная кровля Venus, обжигаемая газом, 3 мм;
• Теплоизоляция – XPS 10 см.
• цементный раствор;
• Пол парковочных мест и гаража - полированный бетон;
• Внешние стены фасада: кирпич 25 см – Wienerberger Thermo;
• Теплоизоляция кирпичных стен с использованием пенополистирола (EPS) толщиной 10 см – Baumit;
• Фасадная сетка, оштукатуренная клеем – Баумит;
• Структурная полимерная штукатурка – Баумит;
• Теплоизоляция бетонных поверхностей – экструдированный пенополистирольный материал (XPS) 10 см;
• Монтаж сантехники - полипропиленовая водопроводная труба с "заглушкой";
• Монтаж сильноточных электроустановок для освещения и розеток;
• Установлены электросчетчики, электрощит в квартире;
• установил выключатели и розетки;
• установили осветительные приборы на балконах;
• Установка дверного звонка и домофона;
• Внутреннее оснащение для подключения к интернету и телевидению.
Мы с нетерпением ждём вашего запроса.
Если вы хотите договориться о просмотре интересующего вас объекта недвижимости или посетить один из наших офисов, пожалуйста, свяжитесь с нами. Чтобы согласовать день и время встречи или просмотра, вы можете позвонить по номеру телефона, указанному в объявлении, или отправить запрос по электронной почте. Наш консультант поможет вам со всеми необходимыми деталями и согласует удобное для вас время.
Вы ищете подходящую недвижимость?
Не стесняйтесь обращаться к нам и рассказывать о ваших потребностях и предпочтениях. Наша команда проведет тщательное исследование рынка, чтобы предложить вам объекты недвижимости, точно соответствующие вашим критериям. У нас есть исключительное портфолио высококачественных и эксклюзивных домов, доступных только нашим клиентам. Чтобы первыми получать информацию о них – свяжитесь с нами.
Дополнительные услуги
Как ценный клиент нашей компании, вы получите привилегию пользоваться услугами нашей опытной юридической команды совершенно бесплатно. Кроме того, мы предлагаем комплексные решения, включая страхование недвижимости, бесплатные финансовые консультации, а также выгодные условия финансирования. Наши услуги также распространяются на сферу перепродажи, аренды и управления недвижимостью. Мы предоставляем высококачественные услуги по ремонту и меблировке через специализированные компании, входящие в нашу корпоративную группу и являющиеся нашими давними профессиональными партнерами.
Смотр недвижимости
Мы готовы организовать смотр недвижимости в удобное для вас время. Обратитесь к ответственному менеджеру по продажам и проинформируйте его, когда бы Вы хотели приехать на смотровой тур. Мы можем помочь Вам забронировать авиабилет и отель, а также помочь Вам оформить визу и необходимую страховку.
Бронирование недвижимости
Вы можете забронировать недвижимость, заплатив невозмещаемый задаток в размере 2 000 евро наличным платежом, кредитной картой или банковским переводом на фирменный счет компании. После получения задатка недвижимость бронируется, осмотры с другими потенциальными покупателями производиться не будут, и начнется изготовление необходимых документов по оформлению сделки. Пожалуйста, обратитесь к ответственному за данный объект менеджеру по продажам для получения подробной информации относительно процедуры покупки и способов оплаты.
Послепродажное обслуживание
Мы уважаемая компания, за плечами которой многолетний опыт работы в сфере недвижимости. Мы будем сопровождать Вас не только во время покупки, но и после приобретения недвижимости, обеспечивая Вам дополнительный набор услуг с учетом Ваших требовании, для того, чтобы Вы могли насладиться полноценным и спокойным времяпровождением в Болгарии. Услуги, которые мы можем предложить, включают страхование, строительство и ремонт, услуги по меблировке, бухгалтерские и юридическиe услуги, переоформление договоров на электричество, воду, телефон и многое другое.
Существует 14-й акт. Ожидается, что 16-й акт выйдет в декабре 2026 года.
Объект недвижимости расположен на третьем этаже и имеет общую площадь 106,12 кв. м с ориентацией на восток, север и юг.
Распределение:
• вестибюль/коридор;
• гостиная с кухней;
• две спальни;
• ванная комната с туалетом;
• две террасы.
Квартира сдается в аренду в следующей степени готовности в соответствии с Гражданским кодексом Болгарии:
• ПВХ-панели для столярных работ – SALAMANDER 76;
• Подоконники из натурального камня;
• Входные двери в квартиры, защищенные от взлома;
• Стены и потолки: известково-цементная штукатурка с угловыми профилями;
• Полы: цементная стяжка;
• Балкон с оштукатуренным фасадом и установленными осветительными приборами;
• Гидроизоляция битумной плиткой, обожженной на газовом топливе, толщиной 3 мм, плиткой Venus и гранитной плиткой;
• Перила – согласно проекту.
Возможна отделка "под ключ", а также меблировка за дополнительную плату.
Квартира подходит как для круглогодичного проживания, так и для отдыха.
О здании
Здание имеет 4 этажа, отличается привлекательным дизайном, включает двух- и трехкомнатные квартиры, а также 18 парковочных мест на поверхности и под землей. Въезд в подземный гараж оборудован пандусом, ведущим через двор и на улицу.
Технические упомянутых указанных отличительных указанных характеристики:
• Лестницы и общие зоны: гранитная плитка или камень;
• Стены и потолки: штукатурка и латекс;
• Перила – согласно проекту;
• установлены гидравлические подъемники;
• Гидроизоляция кровли: битумная кровля Venus, обжигаемая газом, 3 мм;
• Теплоизоляция – XPS 10 см.
• цементный раствор;
• Пол парковочных мест и гаража - полированный бетон;
• Внешние стены фасада: кирпич 25 см – Wienerberger Thermo;
• Теплоизоляция кирпичных стен с использованием пенополистирола (EPS) толщиной 10 см – Baumit;
• Фасадная сетка, оштукатуренная клеем – Баумит;
• Структурная полимерная штукатурка – Баумит;
• Теплоизоляция бетонных поверхностей – экструдированный пенополистирольный материал (XPS) 10 см;
• Монтаж сантехники - полипропиленовая водопроводная труба с "заглушкой";
• Монтаж сильноточных электроустановок для освещения и розеток;
• Установлены электросчетчики, электрощит в квартире;
• установил выключатели и розетки;
• установили осветительные приборы на балконах;
• Установка дверного звонка и домофона;
• Внутреннее оснащение для подключения к интернету и телевидению.
Мы с нетерпением ждём вашего запроса.
Если вы хотите договориться о просмотре интересующего вас объекта недвижимости или посетить один из наших офисов, пожалуйста, свяжитесь с нами. Чтобы согласовать день и время встречи или просмотра, вы можете позвонить по номеру телефона, указанному в объявлении, или отправить запрос по электронной почте. Наш консультант поможет вам со всеми необходимыми деталями и согласует удобное для вас время.
Вы ищете подходящую недвижимость?
Не стесняйтесь обращаться к нам и рассказывать о ваших потребностях и предпочтениях. Наша команда проведет тщательное исследование рынка, чтобы предложить вам объекты недвижимости, точно соответствующие вашим критериям. У нас есть исключительное портфолио высококачественных и эксклюзивных домов, доступных только нашим клиентам. Чтобы первыми получать информацию о них – свяжитесь с нами.
Дополнительные услуги
Как ценный клиент нашей компании, вы получите привилегию пользоваться услугами нашей опытной юридической команды совершенно бесплатно. Кроме того, мы предлагаем комплексные решения, включая страхование недвижимости, бесплатные финансовые консультации, а также выгодные условия финансирования. Наши услуги также распространяются на сферу перепродажи, аренды и управления недвижимостью. Мы предоставляем высококачественные услуги по ремонту и меблировке через специализированные компании, входящие в нашу корпоративную группу и являющиеся нашими давними профессиональными партнерами.
Смотр недвижимости
Мы готовы организовать смотр недвижимости в удобное для вас время. Обратитесь к ответственному менеджеру по продажам и проинформируйте его, когда бы Вы хотели приехать на смотровой тур. Мы можем помочь Вам забронировать авиабилет и отель, а также помочь Вам оформить визу и необходимую страховку.
Бронирование недвижимости
Вы можете забронировать недвижимость, заплатив невозмещаемый задаток в размере 2 000 евро наличным платежом, кредитной картой или банковским переводом на фирменный счет компании. После получения задатка недвижимость бронируется, осмотры с другими потенциальными покупателями производиться не будут, и начнется изготовление необходимых документов по оформлению сделки. Пожалуйста, обратитесь к ответственному за данный объект менеджеру по продажам для получения подробной информации относительно процедуры покупки и способов оплаты.
Послепродажное обслуживание
Мы уважаемая компания, за плечами которой многолетний опыт работы в сфере недвижимости. Мы будем сопровождать Вас не только во время покупки, но и после приобретения недвижимости, обеспечивая Вам дополнительный набор услуг с учетом Ваших требовании, для того, чтобы Вы могли насладиться полноценным и спокойным времяпровождением в Болгарии. Услуги, которые мы можем предложить, включают страхование, строительство и ремонт, услуги по меблировке, бухгалтерские и юридическиe услуги, переоформление договоров на электричество, воду, телефон и многое другое.
Прочтите текст на других языках (автоматический перевод)
МЕСТОПОЛОЖЕНИЕ
На карте с красным маркером указано приблизительное месторасположение этой недвижимости/комплекса.
Наши лучшие предложения по продажа Созополь, Болгария


ORIGINAL: