Вид недвижимости
Дом
(Вилла, Резиденция)
МЕСТОПОЛОЖЕНИЕ
рядом с Солнечный берег / Болгария
Этажность
2
Спальни
4
Ванные комнаты
4
Места на парковке
2
Площадь здания
308 м2
Площадь участка
1007 м2
Цена 797 720 € (без НДС)
Все расходы за счет покупателя
Запрос более подробной информации или осмотра
Христо Вылчев
Директор офиса / Офис Созополь
Директор офиса / Офис Созополь
Инфо пакет
Состояние
болгарский государственный стандарт
Меблировка
Немеблированная
Расстояния
Расстояние от объекта до других важных точек
- Море: 4.2 км
- Аэропорт : 36.6 км
Строительство
- Кирпич
Этот текст переведен с помощью автоматического программного обеспечения, поэтому в нем не исключаются неточности. Вы можете ознакомиться с текстом на его оригинальном языке или в переводе на другие языки:
Предварительная продажа!
Начало строительства - август 2025 г.
Ожидаемый акт 16 - июнь 2026 г.
Мы представляем бутик-резиденцию на продажу, расположенную в экологически чистом районе вилл недалеко от Кошарицы, сочетающую спокойствие и панорамные виды со стратегической близостью к Солнечному Берегу и морю. Район развивается как желанный рай для людей с динамичной городской жизнью, ищущих личное пространство и связь с морем и природой, не жертвуя при этом доступностью.
Концепция и архитектура
Это не просто дом, а выражение личной философии. Приглашение в будущее в форме, неподвластной времени.
Резиденция является работой архитектора с международной репутацией и частью команды, стоящей за некоторыми из самых значимых инфраструктурных проектов, включая аэропорт Абу-Даби.
Спроектированный с предельной точностью, дом предлагает новое видение современного дома – чистого, умного, функционального и впечатляющего. Каждая деталь следует логике пространства и человека, который его населяет.
Недвижимость для тех, кто распознает утонченность в простоте и знает, что истинная роскошь заключается в осознанном выборе – материи, света и энергии. Подходит для владельцев со вкусом, пониманием ценности и эстетики, а также отношением к инвестициям как к форме выражения.
Параметры:
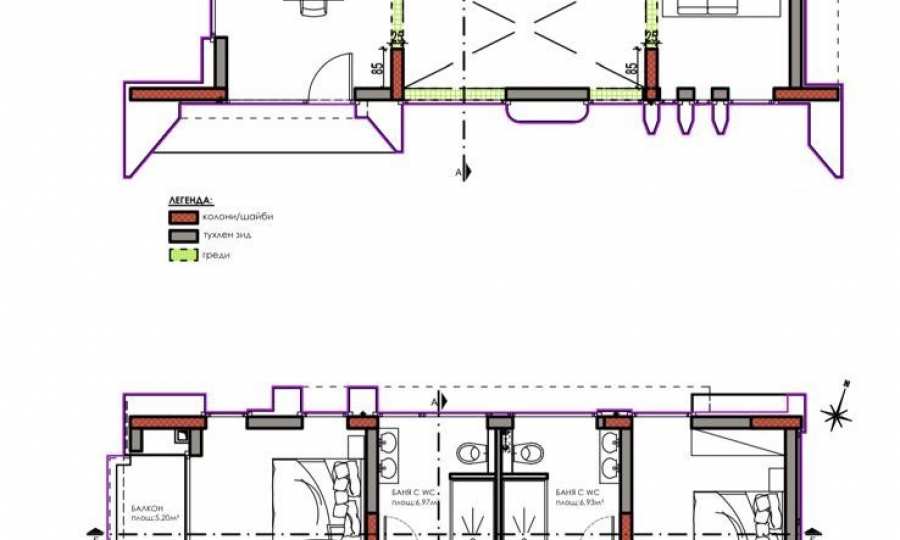
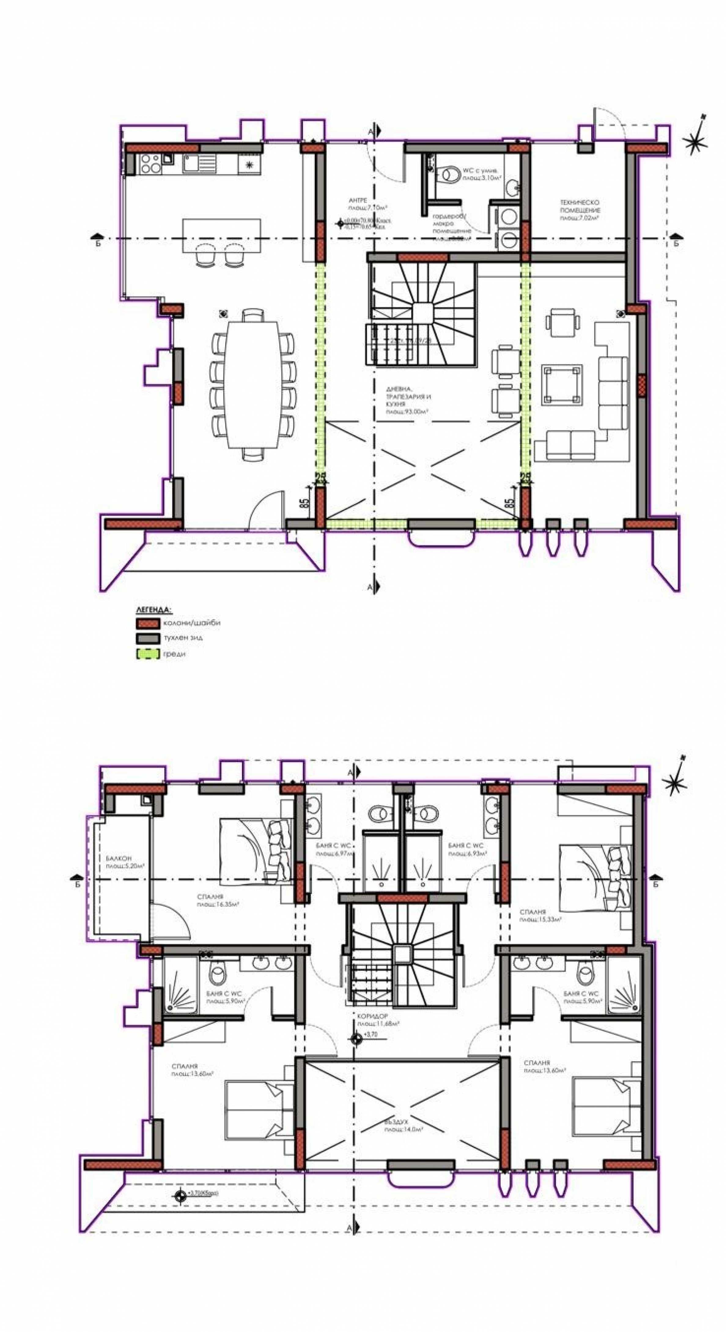
• Общая площадь: 308 кв. метров.
• Двор: 1007 кв. метров.
• Первый этаж: 150 кв. м, из которых 14 кв. м открытого пространства высотой 8,50 м – архитектурный театр света и воздуха;
• Второй этаж: 158 кв. м, включая 4 спальни, каждая с собственной ванной комнатой и туалетом – полная индивидуальность и комфорт.
Акценты интерьера
• Панорамные окна высотой 8,50 м.
• Впечатляющая гостиная с естественным освещением в течение всего дня;
• Дизайнерская лестница, расположенная так, чтобы раскрыть всю вертикальность пространства;
• Светодиодное архитектурное освещение – интеллектуальное выделение структурных линий после захода солнца.
Открытое пространство и удобства
• Бассейн-инфинити, отражающий архитектуру как живую скульптуру;
• Профессионально благоустроенный двор с вечнозелеными туями и избранными декоративными видами;
• Зона барбекю и отдыха для мероприятий на открытом воздухе;
• Просторный подъезд для парковки автомобилей.
Указанная цена не включает НДС.
Мы с нетерпением ждем вашего запроса.
Если вы хотите договориться о просмотре интересующей вас недвижимости или посетить один из наших офисов, свяжитесь с нами. Чтобы договориться о дне и времени встречи или просмотра, вы можете позвонить по указанному в объявлении номеру телефона или отправить запрос по электронной почте. Наш консультант поможет вам со всеми необходимыми деталями и согласует удобное для вас время.
Вы ищете подходящую для себя недвижимость?
Не стесняйтесь обращаться к нам и рассказывать о своих потребностях и предпочтениях. Наша команда проведет тщательное исследование рынка, чтобы предложить вам недвижимость, которая точно соответствует вашим критериям. У нас есть исключительное портфолио высококачественных и эксклюзивных домов, которые доступны только нашим клиентам. Чтобы первыми получать информацию о них – свяжитесь с нами.
Дополнительные услуги
Как ценный клиент нашей компании, вы будете иметь привилегию пользоваться услугами нашей опытной юридической команды совершенно бесплатно. Кроме того, мы предлагаем комплексные решения, включая страхование имущества, бесплатные финансовые консультации, а также выгодные условия финансирования. Наши услуги также распространяются на сферу перепродажи, аренды и управления недвижимостью. Мы предоставляем высококачественный ремонт и меблировку через специализированные компании, которые входят в нашу корпоративную группу и являются нашими давними профессиональными партнерами.
Смотр недвижимости
Мы готовы организовать смотр недвижимости в удобное для вас время. Обратитесь к ответственному менеджеру по продажам и проинформируйте его, когда бы Вы хотели приехать на смотровой тур. Мы можем помочь Вам забронировать авиабилет и отель, а также помочь Вам оформить визу и необходимую страховку.
Бронирование недвижимости
Вы можете забронировать недвижимость, заплатив невозмещаемый задаток в размере 2 000 евро наличным платежом, кредитной картой или банковским переводом на фирменный счет компании. После получения задатка недвижимость бронируется, осмотры с другими потенциальными покупателями производиться не будут, и начнется изготовление необходимых документов по оформлению сделки. Пожалуйста, обратитесь к ответственному за данный объект менеджеру по продажам для получения подробной информации относительно процедуры покупки и способов оплаты.
Послепродажное обслуживание
Мы уважаемая компания, за плечами которой многолетний опыт работы в сфере недвижимости. Мы будем сопровождать Вас не только во время покупки, но и после приобретения недвижимости, обеспечивая Вам дополнительный набор услуг с учетом Ваших требовании, для того, чтобы Вы могли насладиться полноценным и спокойным времяпровождением в Болгарии. Услуги, которые мы можем предложить, включают страхование, строительство и ремонт, услуги по меблировке, бухгалтерские и юридическиe услуги, переоформление договоров на электричество, воду, телефон и многое другое.
Начало строительства - август 2025 г.
Ожидаемый акт 16 - июнь 2026 г.
Мы представляем бутик-резиденцию на продажу, расположенную в экологически чистом районе вилл недалеко от Кошарицы, сочетающую спокойствие и панорамные виды со стратегической близостью к Солнечному Берегу и морю. Район развивается как желанный рай для людей с динамичной городской жизнью, ищущих личное пространство и связь с морем и природой, не жертвуя при этом доступностью.
Концепция и архитектура
Это не просто дом, а выражение личной философии. Приглашение в будущее в форме, неподвластной времени.
Резиденция является работой архитектора с международной репутацией и частью команды, стоящей за некоторыми из самых значимых инфраструктурных проектов, включая аэропорт Абу-Даби.
Спроектированный с предельной точностью, дом предлагает новое видение современного дома – чистого, умного, функционального и впечатляющего. Каждая деталь следует логике пространства и человека, который его населяет.
Недвижимость для тех, кто распознает утонченность в простоте и знает, что истинная роскошь заключается в осознанном выборе – материи, света и энергии. Подходит для владельцев со вкусом, пониманием ценности и эстетики, а также отношением к инвестициям как к форме выражения.
Параметры:
• Общая площадь: 308 кв. метров.
• Двор: 1007 кв. метров.
• Первый этаж: 150 кв. м, из которых 14 кв. м открытого пространства высотой 8,50 м – архитектурный театр света и воздуха;
• Второй этаж: 158 кв. м, включая 4 спальни, каждая с собственной ванной комнатой и туалетом – полная индивидуальность и комфорт.
Акценты интерьера
• Панорамные окна высотой 8,50 м.
• Впечатляющая гостиная с естественным освещением в течение всего дня;
• Дизайнерская лестница, расположенная так, чтобы раскрыть всю вертикальность пространства;
• Светодиодное архитектурное освещение – интеллектуальное выделение структурных линий после захода солнца.
Открытое пространство и удобства
• Бассейн-инфинити, отражающий архитектуру как живую скульптуру;
• Профессионально благоустроенный двор с вечнозелеными туями и избранными декоративными видами;
• Зона барбекю и отдыха для мероприятий на открытом воздухе;
• Просторный подъезд для парковки автомобилей.
Указанная цена не включает НДС.
Мы с нетерпением ждем вашего запроса.
Если вы хотите договориться о просмотре интересующей вас недвижимости или посетить один из наших офисов, свяжитесь с нами. Чтобы договориться о дне и времени встречи или просмотра, вы можете позвонить по указанному в объявлении номеру телефона или отправить запрос по электронной почте. Наш консультант поможет вам со всеми необходимыми деталями и согласует удобное для вас время.
Вы ищете подходящую для себя недвижимость?
Не стесняйтесь обращаться к нам и рассказывать о своих потребностях и предпочтениях. Наша команда проведет тщательное исследование рынка, чтобы предложить вам недвижимость, которая точно соответствует вашим критериям. У нас есть исключительное портфолио высококачественных и эксклюзивных домов, которые доступны только нашим клиентам. Чтобы первыми получать информацию о них – свяжитесь с нами.
Дополнительные услуги
Как ценный клиент нашей компании, вы будете иметь привилегию пользоваться услугами нашей опытной юридической команды совершенно бесплатно. Кроме того, мы предлагаем комплексные решения, включая страхование имущества, бесплатные финансовые консультации, а также выгодные условия финансирования. Наши услуги также распространяются на сферу перепродажи, аренды и управления недвижимостью. Мы предоставляем высококачественный ремонт и меблировку через специализированные компании, которые входят в нашу корпоративную группу и являются нашими давними профессиональными партнерами.
Смотр недвижимости
Мы готовы организовать смотр недвижимости в удобное для вас время. Обратитесь к ответственному менеджеру по продажам и проинформируйте его, когда бы Вы хотели приехать на смотровой тур. Мы можем помочь Вам забронировать авиабилет и отель, а также помочь Вам оформить визу и необходимую страховку.
Бронирование недвижимости
Вы можете забронировать недвижимость, заплатив невозмещаемый задаток в размере 2 000 евро наличным платежом, кредитной картой или банковским переводом на фирменный счет компании. После получения задатка недвижимость бронируется, осмотры с другими потенциальными покупателями производиться не будут, и начнется изготовление необходимых документов по оформлению сделки. Пожалуйста, обратитесь к ответственному за данный объект менеджеру по продажам для получения подробной информации относительно процедуры покупки и способов оплаты.
Послепродажное обслуживание
Мы уважаемая компания, за плечами которой многолетний опыт работы в сфере недвижимости. Мы будем сопровождать Вас не только во время покупки, но и после приобретения недвижимости, обеспечивая Вам дополнительный набор услуг с учетом Ваших требовании, для того, чтобы Вы могли насладиться полноценным и спокойным времяпровождением в Болгарии. Услуги, которые мы можем предложить, включают страхование, строительство и ремонт, услуги по меблировке, бухгалтерские и юридическиe услуги, переоформление договоров на электричество, воду, телефон и многое другое.
Прочтите текст на других языках (автоматический перевод)
МЕСТОПОЛОЖЕНИЕ
На карте с красным маркером указано приблизительное месторасположение этой недвижимости/комплекса.
Наши лучшие предложения по продажа Солнечный берег, Болгария


ORIGINAL: