Вид недвижимости
Четырехкомнатная квартира
(Многокомнатная квартира)
МЕСТОПОЛОЖЕНИЕ
Св. Константин и Елена / Болгария
Этажность
6
Этаж
4
Лифт
да
Спальни
3
Ванные комнаты
2
Места на крытой парковке
2
Площадь
234 м2
Получен Акт 16
Цена 1 000 000 €
4 274 €/м2
Запрос более подробной информации или осмотра
Цветина Дачевска-Вукич
Старший консультант / Офис Варна
Старший консультант / Офис Варна
Инфо пакет
Состояние
Меблировка
Немеблированная
Ванные комнаты
Душевая, Оборудованная ванная комната
Полы
Ламинированный пол
Расстояния
Расстояние от объекта до других важных точек
- Аэропорт : 17.9 км
Виды, открывающиеся из недвижимости
- Виды на бассейн
- Виды на внутренний двор
- Виды на море
Строительство
- Железобетонная конструкция
- Кирпич
Отопление
- Отопление кондиционером
Этот текст переведен с помощью автоматического программного обеспечения, поэтому в нем не исключаются неточности. Вы можете ознакомиться с текстом на его оригинальном языке или в переводе на другие языки:
Представляем вашему вниманию четырехкомнатную квартиру с прекрасным видом на море в закрытом комплексе, на курорте. Св. Св. Константин и Елена. Превосходное расположение в районе с современными удобствами, такими как исключительный пляж протяженностью 3,5 км с водными видами спорта и развлечениями, парковые зоны, аллеи для прогулок и активного отдыха, теннисные корты, поля для гольфа, 7 термальных источников с целебными свойствами и популярные СПА-центры. Рядом находится все необходимое для постоянного проживания: круглогодичный общественный транспорт, школы, детский сад, аптеки, банки, магазины и т. д.
Здание введено в эксплуатацию (Акт 16).
Параметры недвижимости
Квартира общей площадью 234 кв. метров расположена на 4 этаже из 6 и имеет следующую планировку:
Ежегодная плата за обслуживание с двумя парковочными местами составляет 4018 евро, включая НДС.
Прекрасный вид на море, солнечный и уютный дом, тишина и несравненно чистый воздух — вот что получат владельцы квартиры. Инвестор-застройщик комплекса стремится способствовать повышению уровня жизни и поэтому делает ставку на современный дизайн, функциональное жилье, богатую прилегающую инфраструктуру, а также сопутствующие услуги по управлению и обслуживанию здания.
Мы с нетерпением ждем вашего запроса.
Если вы хотите организовать просмотр интересующей вас недвижимости или посетить один из наших офисов, пожалуйста, свяжитесь с нами. Чтобы договориться о дне и времени встречи или просмотра, вы можете позвонить по указанному в объявлении номеру телефона или отправить запрос по электронной почте. Наш консультант поможет Вам со всеми необходимыми деталями и согласует удобное для Вас время.
Вы ищете подходящую для себя недвижимость?
Не стесняйтесь обращаться к нам и рассказывать о своих потребностях и предпочтениях. Наша команда проведет углубленное исследование рынка, чтобы предложить вам объекты недвижимости, которые точно соответствуют вашим критериям. У нас есть исключительное портфолио высококачественных и эксклюзивных домов, доступных только нашим клиентам. Чтобы первыми получать информацию о них – свяжитесь с нами.
Дополнительные услуги
Как уважаемый клиент нашей компании, вы будете иметь привилегию пользоваться услугами нашей опытной юридической команды совершенно бесплатно. Кроме того, мы предлагаем комплексные решения, включая страхование имущества, бесплатные финансовые консультации, а также выгодные условия финансирования. Наши услуги также распространяются на сферы перепродажи, аренды и управления недвижимостью. Мы выполняем высококачественный ремонт и меблировку помещений с помощью специализированных компаний, входящих в нашу корпоративную группу и являющихся нашими давними профессиональными партнерами.
Смотр недвижимости
Мы готовы организовать смотр недвижимости в удобное для вас время. Обратитесь к ответственному менеджеру по продажам и проинформируйте его, когда бы Вы хотели приехать на смотровой тур. Мы можем помочь Вам забронировать авиабилет и отель, а также помочь Вам оформить визу и необходимую страховку.
Бронирование недвижимости
Вы можете забронировать недвижимость, заплатив невозмещаемый задаток в размере 2 000 евро наличным платежом, кредитной картой или банковским переводом на фирменный счет компании. После получения задатка недвижимость бронируется, осмотры с другими потенциальными покупателями производиться не будут, и начнется изготовление необходимых документов по оформлению сделки. Пожалуйста, обратитесь к ответственному за данный объект менеджеру по продажам для получения подробной информации относительно процедуры покупки и способов оплаты.
Послепродажное обслуживание
Мы ответственная компания, за плечами которой многолетний опыт работы в сфере недвижимости. Мы будем сопровождать Вас не только во время покупки, но и после приобретения недвижимости, обеспечивая Вам дополнительный набор услуг с учетом Ваших требовании, для того, чтобы Вы могли насладиться полноценным и спокойным времяпровождением в Болгарии. Услуги, которые мы можем предложить, включают страхование, строительство и ремонт, услуги по меблировке, бухгалтерские и юридическиe услуги, переоформление договоров на электричество, воду, телефон и многое другое.
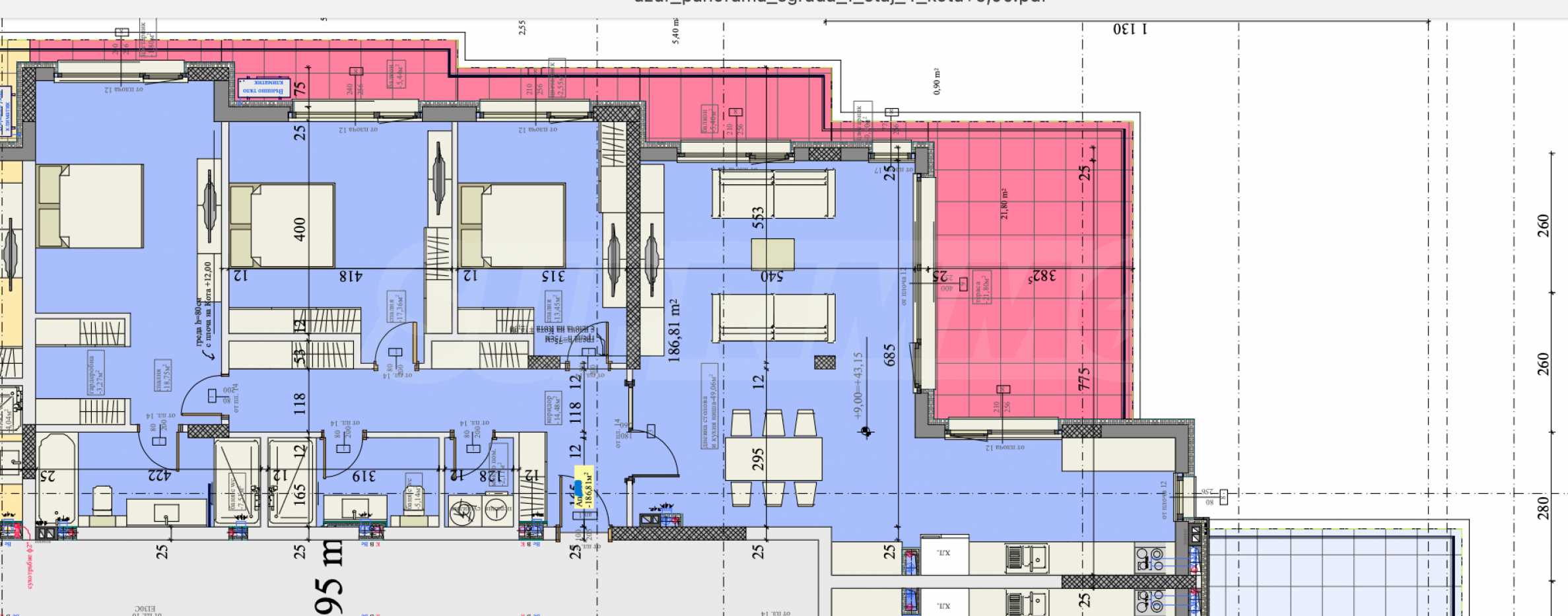
Здание введено в эксплуатацию (Акт 16).
Параметры недвижимости
Квартира общей площадью 234 кв. метров расположена на 4 этаже из 6 и имеет следующую планировку:
- коридор с местом для двух больших шкафов - 14,4 кв. метров;
- гостиная с кухней и столовой - 49 кв. метров;
- детская спальня - 13,45 кв. метров;
- спальня - 17,36 кв. метров;
- главная спальня - 18,75 кв. метров с гардеробной - 3,27 кв. метров и ванной комнатой с туалетом - 7,5 кв. метров;
- прачечная - 2,11 кв. метров;
- вторая ванная комната с туалетом - 5,1 кв. метров;
- три террасы - одна из которых имеет площадь 21,80 кв. метров, а две другие по 5,40 кв. метров каждая.
Ежегодная плата за обслуживание с двумя парковочными местами составляет 4018 евро, включая НДС.
Прекрасный вид на море, солнечный и уютный дом, тишина и несравненно чистый воздух — вот что получат владельцы квартиры. Инвестор-застройщик комплекса стремится способствовать повышению уровня жизни и поэтому делает ставку на современный дизайн, функциональное жилье, богатую прилегающую инфраструктуру, а также сопутствующие услуги по управлению и обслуживанию здания.
Мы с нетерпением ждем вашего запроса.
Если вы хотите организовать просмотр интересующей вас недвижимости или посетить один из наших офисов, пожалуйста, свяжитесь с нами. Чтобы договориться о дне и времени встречи или просмотра, вы можете позвонить по указанному в объявлении номеру телефона или отправить запрос по электронной почте. Наш консультант поможет Вам со всеми необходимыми деталями и согласует удобное для Вас время.
Вы ищете подходящую для себя недвижимость?
Не стесняйтесь обращаться к нам и рассказывать о своих потребностях и предпочтениях. Наша команда проведет углубленное исследование рынка, чтобы предложить вам объекты недвижимости, которые точно соответствуют вашим критериям. У нас есть исключительное портфолио высококачественных и эксклюзивных домов, доступных только нашим клиентам. Чтобы первыми получать информацию о них – свяжитесь с нами.
Дополнительные услуги
Как уважаемый клиент нашей компании, вы будете иметь привилегию пользоваться услугами нашей опытной юридической команды совершенно бесплатно. Кроме того, мы предлагаем комплексные решения, включая страхование имущества, бесплатные финансовые консультации, а также выгодные условия финансирования. Наши услуги также распространяются на сферы перепродажи, аренды и управления недвижимостью. Мы выполняем высококачественный ремонт и меблировку помещений с помощью специализированных компаний, входящих в нашу корпоративную группу и являющихся нашими давними профессиональными партнерами.
Смотр недвижимости
Мы готовы организовать смотр недвижимости в удобное для вас время. Обратитесь к ответственному менеджеру по продажам и проинформируйте его, когда бы Вы хотели приехать на смотровой тур. Мы можем помочь Вам забронировать авиабилет и отель, а также помочь Вам оформить визу и необходимую страховку.
Бронирование недвижимости
Вы можете забронировать недвижимость, заплатив невозмещаемый задаток в размере 2 000 евро наличным платежом, кредитной картой или банковским переводом на фирменный счет компании. После получения задатка недвижимость бронируется, осмотры с другими потенциальными покупателями производиться не будут, и начнется изготовление необходимых документов по оформлению сделки. Пожалуйста, обратитесь к ответственному за данный объект менеджеру по продажам для получения подробной информации относительно процедуры покупки и способов оплаты.
Послепродажное обслуживание
Мы ответственная компания, за плечами которой многолетний опыт работы в сфере недвижимости. Мы будем сопровождать Вас не только во время покупки, но и после приобретения недвижимости, обеспечивая Вам дополнительный набор услуг с учетом Ваших требовании, для того, чтобы Вы могли насладиться полноценным и спокойным времяпровождением в Болгарии. Услуги, которые мы можем предложить, включают страхование, строительство и ремонт, услуги по меблировке, бухгалтерские и юридическиe услуги, переоформление договоров на электричество, воду, телефон и многое другое.
Прочтите текст на других языках (автоматический перевод)
МЕСТОПОЛОЖЕНИЕ
На карте с красным маркером указано приблизительное месторасположение этой недвижимости/комплекса.
Наши лучшие предложения по продажа Св. Константин и Елена, Болгария


ORIGINAL: